查看完整案例

收藏

下载
二楼
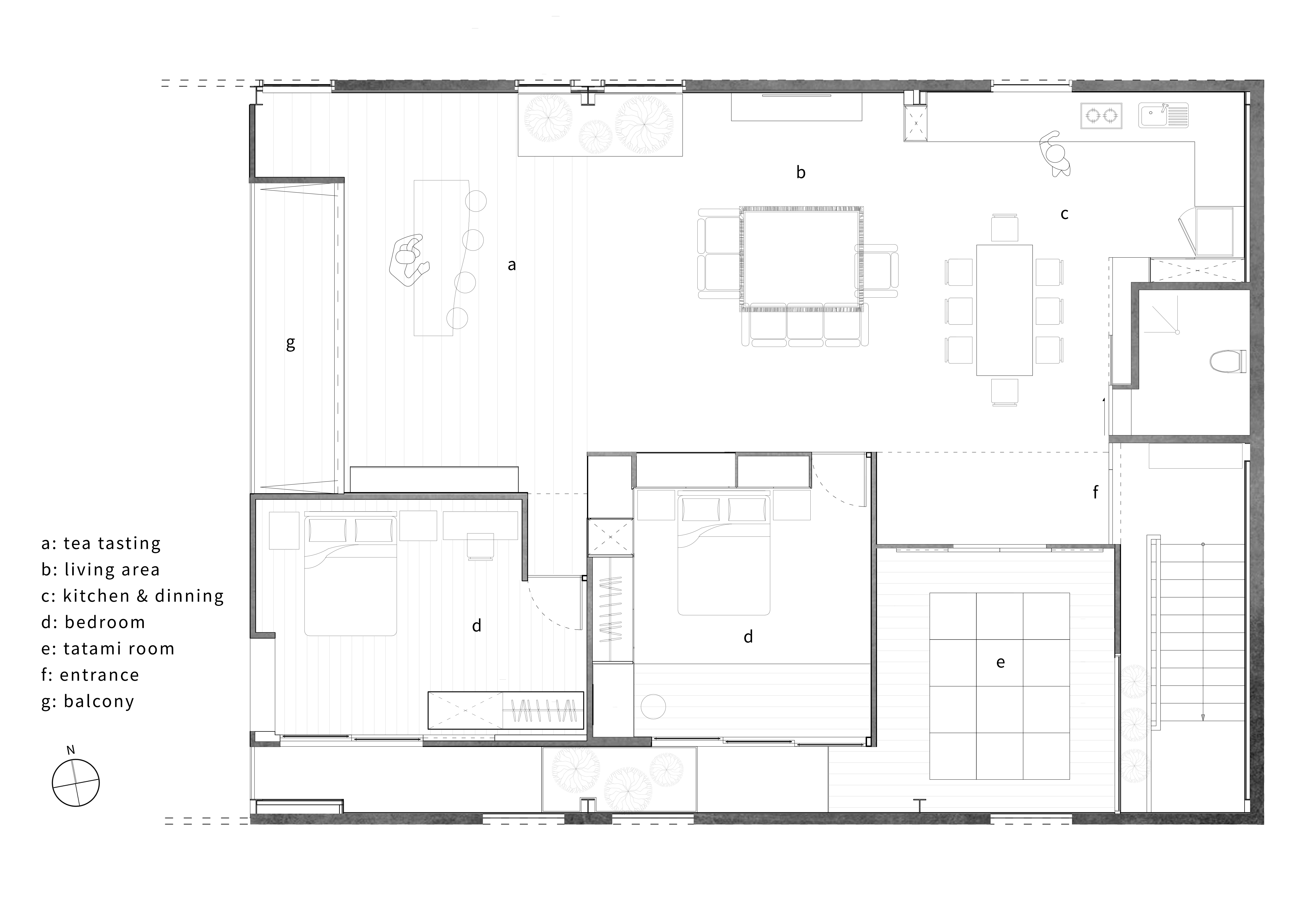
二楼,顾名思义,位于柚木家具展览馆的二楼。它是展览馆主人的住宅,可以俯瞰阳台上的展厅。
该空间旨在强调柚木家具作为住宅,也作为一个平台,展示他们的家具是如何容纳在一个生活空间。用浅色材料作为背景,突出柚木的深褐色。
由于原结构为铁板包覆钢结构,在空间内捕捉不理想的传热,屋面和外墙采用隔热加固,南侧和北侧增加墙体开口,以应对夏季的高温。
第二层的布局允许交叉通风,尽管在南侧有隔断。利用空间的高度,卧室墙壁的高度由于顶部有一个间隙而受到影响,即使关闭了门,也允许南北气流流动。
给出了沿卧室的偏移量,以允许气流在东西方向。它允许一个扩展的半私人空间的卧室,扩大他们的空间物理和视觉。
屋面和墙体材料的选择是根据不同的空间要求进行的。天花板是本地制造的木羊毛水泥板,用于露天用餐/生活/品茶空间,隔音效果很好;纹身室使用硅藻土墙装饰,以调节密闭空间中的湿度;在楼梯上使用OSB板作为墙壁饰面,并配以使其高度具有深度的颜色。
Firm Atelier Boter
Type Commercial › Exhibition Center Showroom
STATUS Built
YEAR 2017
SIZE 1000 sqft - 3000 sqft
BUDGET $10K - 50K
keywords:architecture, architecture news, interiors, interior design, portfolio, spec, brands, marketplace, products The Second Floor
关键词:建筑,建筑新闻,室内设计,组合,规格,品牌,市场,二楼产品
客服
消息
收藏
下载
最近























