查看完整案例

收藏

下载
Современный классицизм в дизайнерском проекте церкви St Moritz от John Pawson, Аугсбург, Германия
Профессиональный архитектор John Pawson (Джона Посона) не так давно разработал и осуществил свой новый проект интерьерного ремоделирования храмового комплекса с утонченным зодческим исполнением и великолепным внутренним помещением.
расположен по адресу – Moritzplatz 5, 86150, город Аугсбург в Германии.
Завершенный в 2013 году, этот очаровательный и впечатляющий шедевр обладает общей площадью 1857 квадратных метров, чем привлекает к себе пристальное внимание и интерес общественной публики. Также стоит отметить, что разработка нового впечатляющего и безмятежного дизайна для епархии St Moritz была проведена на сумму 234 миллиона рублей.
Церковь Сен-Морице прошла через множество изменений с момента своего основания, что было осуществлено почти тысячу лет назад. Разрушительные пожары, новшества в литургической практике в процессе эстетической эволюции и бомбардировки в военное время – все эти исторические события оставили свой след на внешнем облике и экстерьере здания.
Цель этого последнего вмешательства заключалась в перенастройке существующей архитектуры, эстетической, функциональной и литургической перспективы с соображениями священной атмосферы, всегда находящейся в центре проекта. Работы по преображению
дизайна интерьера
включали тщательное сопряжение структуры строения с выбранными деталями церковного комплекса и перемещение некоторых артефактов, что было проведено для того, чтобы добиться четкого визуального облика.
Опираясь на существующие формы и элементы лексики, архитектурный язык заметно эволюционировал, что мы может узнать с помощью тонких способов, как что-то новое, не имеющее резких иностранных аспектов.
Церковь Санкт-Мориц выложена в соответствии с четкими линейными принципами Wegekirche и аутентичным пространственным характером, с его сильным прямым акцентом, сосредоточенным на апсиде. Этот дизайнерский прием сохраняется и усиливается в текущей реконструкции, с прямым взором, целенаправленно проведенным через неф в центр планировки храма, который выполнен в виде освещенной комнаты. Эту область украшает фигура в стилистике барокко от талантливого скульптора
Georg Petel
(Георг Петель) под названием
Christus Salvator.
Ключевой жест вмешательства декораторов и архитекторов был направлен на преобразование уникального
декора окон
в области аспида, которые должны функционировать в качестве замечательного источника света, а именно как выражение порога к трансцендентности. Существующее стекло было заменено в процессе реконструкции тонкими ломтиками оникса. Эффект этого приема состоит в том, чтобы создать оптимальные условия иллюминации, отсеивая прямые солнечные лучи и наполняя внутреннее пространство магнетической дымкой рассеянного свечения.
Преображение оконных блоков в аспиде представляет собой кульминацию более широкой стратегии для привнесения света в пространство, целью которого является достижение четкого распределения сияния в виде ярчайшей области в церковном сооружении. После основного объекта планировки площадь нефа, где совершается литургия, была наполнена особенной яркостью, в то время как боковые проходы наполнены более приглушенной иллюминацией.
Зенитные оконные фонари в стиле барокко были освобождены от своего первоначального функционального предназначения – освещения произведений искусства,
предметов интерьера
и украшений, теперь они служат в качестве косвенных источников света. В соответствии с требованиями второго Ватиканского собора, алтарь был перемещен на вновь созданный остров в нефе, принося литургию ближе к собравшимся прихожанам. К тому же такое решение дает возможность расположить основные литургические памятники — алтаря, амвона и седелии — на одном уровне.
Площадь прохода была оборудована простой и лаконичной меблировкой, выполненной с применением фактурной древесины. Скамейки для расположения во время службы и со специальными устройствами для преклонения коленей в процессе молитвы были окрашены в насыщенный темный коричневый оттенок. Он замечательно контрастирует с общей стилистикой, придавая ему особенное очарование и эстетическую привлекательность.
Дизайнерская мебель
была оборудована небольшими тонкими полочками, на которых расположена библия, предназначенная для каждого прихожанина. Такой элегантный гарнитур создает комфортабельные и удобные условия для размещения посетителей, и к тому же великолепно украшают пространство.
Декор убранства был выдержан в спокойной и размеренной стилистической манере с преобладанием белоснежной цветовой гаммы и удивительных зодческих элементов, что преображает помещение и визуально расширяет его площадь. Интересные оконные проемы в центральном элементе храма были выполнены в арочной овальной форме, что наполняет помещение ослепительным солнечным сиянием и природным теплом, формирующим в атмосфере комфортные и уютные условия.
Эта зона была облицована мраморными плитами бежевого оттенка на полу, что придает
дизайну интерьера
еще большее очарование и эстетическую привлекательность. Эпицентром композиции становится скульптура, выдержанная в ярком бронзовом оттенке, что позволяет привлечь к ней пристальное общественное внимание и интерес.
Основной зал был декорирован аутентичными арочными проемами по сторонам, которые наполняют помещение драматичностью и выразительностью. Они визуально расширяют площадь, наполняют обстановку особенной глубиной и яркостью, а также создают впечатляющий фон для контрастной дизайнерской меблировки.
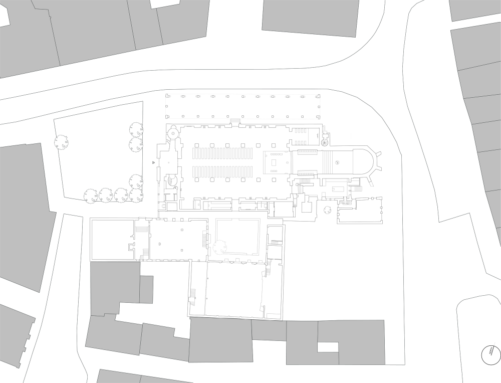
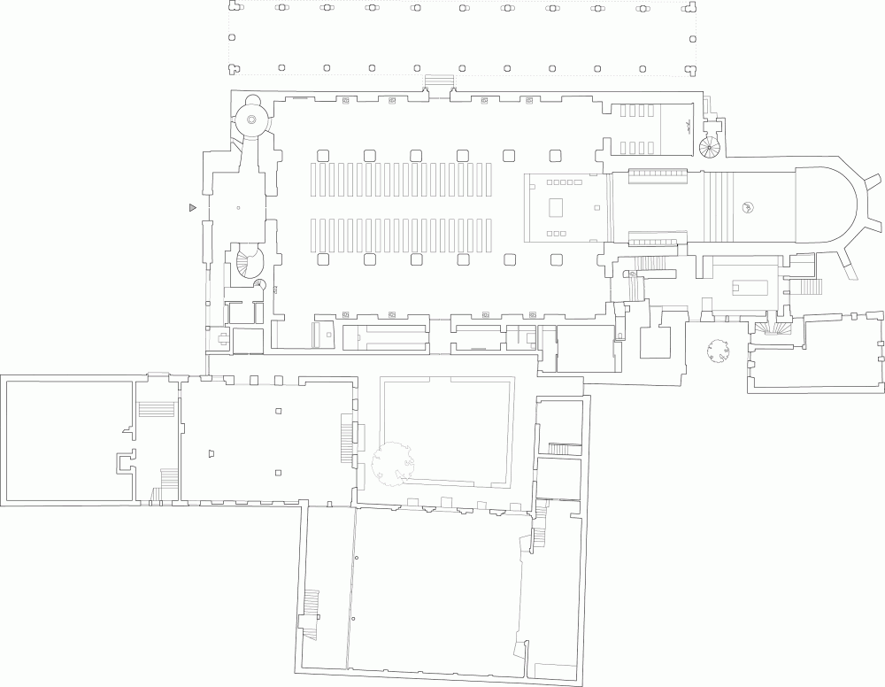
На следующей фотографии продемонстрирована схема комплекса с расположением основных помещений и конструкционных
элементов, общественных и социальных зон.
Пространство храма обладает впечатляющими размерами и вместительностью, что дает возможность посетителям чувствоваться себя комфортно и уютно. Панорамные оконные проемы на стенах и потолке наполняют убранство ослепительным солнечным сиянием и теплотой, привносящей в обстановку теплоту и комфортабельность.
По бокам
необычного дома
храмового комплекса в арочных нишах были размещены скульптуры, которые выражают определенные литургические персонажи. Они придают убранству особенное очарование и аутентичность, что также преображает интерьер и придает ему комфортабельность и теплоту.
На следующих фотографиях представлены чертежи зодческого строения в продольном сечении с основными конструктивными элементами и декоративными деталями фасада.
Оформление церковного храма St Moritz от талантливого архитектора John Pawson в германском городе Аугсбурге представляет собой потрясающий и неординарный творческий проект. Он отличается уникальным зодческим исполнением с высокими потолками и арочными оконными проемами, спокойным и безмятежным убранством, в котором доминирует белоснежная оттеночная палитра с контрастным деревянным мебельным гарнитуром, а также удивительная гармоничная атмосфера, что привлекает к этому религиозному объекту пристальное внимание и интерес.
Интерьерная фотосъемка
выполнена и любезно предоставлена сотрудниками компании Hufton+Crow (Хафтон+Ворона).
客服
消息
收藏
下载
最近



















