查看完整案例

收藏

下载
Casa de Campo / A R D designs
Casa de Campo / A R D designs
Casas
Jarash,
Jordania
Arquitectos:
A R D designs
A R D designs
Área:
180
m²
Año:
2015
Fotografías:
Dina Al Ahmad
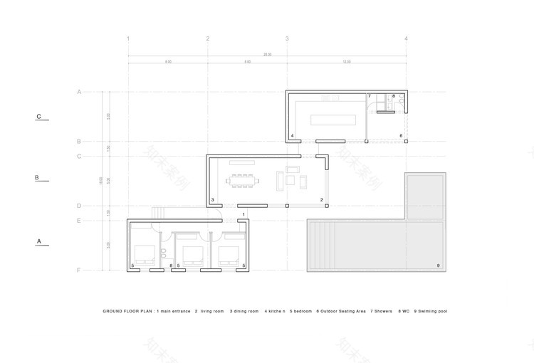
Este proyecto es una casa de campo situada en las afueras de Jerash; una vivienda de fin de semana a 30 minutos de la ciudad de Amman.
El edificio se asienta sobre un terreno montañoso cultivado con olivos. El juego de masas corresponde a las líneas del paisaje natural, a través de una composición fragmentada que se relaciona con la escala de su tejido circundante. La agrupación de los espacios interiores sigue a la configuración de la granja, mientras se conecta con ella a través de pasos transparentes.
Los tres volúmenes están revestidos con una piedra suave y pequeña, de color amarillo, fusionándose con los colores terrosos naturales del contexto. Todos los materiales aplicados son locales, generando un costo mínimo.
A R D designs
Madera
Piedra
Ladrillo
Madera
Piedra
Ladrillo
客服
消息
收藏
下载
最近



















