知末
知末
创作上传
VIP
收藏下载
登录 | 注册有礼

世界书写国家博物馆丨韩国丨SAMOO的建筑师和工程师

2019/08/07 00:00:00
查看完整案例
微信扫一扫
收藏
下载
El Museo Nacional de Escritura Mundial crea una narrativa a partir de la arquitectura
El Museo Nacional de Escritura Mundial crea una narrativa a partir de la arquitectura
世界书写国家博物馆丨韩国丨SAMOO的建筑师和工程师-2
Escribir es un diálogo interminable que ha estado conectando una generación con otra, manteniendo la historia, la cultura y la información. Es por eso que para el
Museo Nacional de Escritura Mundial
, las historias se construyeron en lugar de escribirse.
Así como la escritura trasciende al autor a otros ámbitos, los
arquitectos e ingenieros de SAMOO
han propuesto "PÁGINAS", una estructura de guiones diseñados arquitectónicamente que desconecta a los visitantes del mundo exterior y les presenta una narración arquitectónica excepcional.
世界书写国家博物馆丨韩国丨SAMOO的建筑师和工程师-9
世界书写国家博物馆丨韩国丨SAMOO的建筑师和工程师-10
La propuesta de 16,424 metros cuadrados para el
Museo
Nacional de Escritura Mundial (NMWW) tiene la intención de crear un espacio de mediación que vincule “a las personas entre ellas, a las personas con los museos y a los museos con el sitio, así como la escritura y las páginas han unido el pasado, el presente y futuro".
El proyecto está ubicado en Incheon-si, Corea del Sur, en el borde de una tierra entre el parque central y el paisaje urbano condensado. Las contradicciones visuales y espaciales entre el paisaje horizontal del parque y la verticalidad monolítica de los edificios inspiraron a los arquitectos a desarrollar una estructura que combinara ambas características.
世界书写国家博物馆丨韩国丨SAMOO的建筑师和工程师-15
世界书写国家博物馆丨韩国丨SAMOO的建筑师和工程师-16
La forma curva de la estructura se inspiró en la observación de todo lo que rodea el sitio. Los caminos peatonales, los carriles para bicicletas, así como los senderos que se cruzan y se dispersan dentro y fuera del parque y los edificios, fluyendo rítmicamente como jeroglíficos. Del mismo modo, los senderos fluirán dentro y fuera del NMWW, borrando los límites entre la estructura y el paisaje, y formando espacios flexibles donde los visitantes pueden circular libremente dentro y fuera.
Al ingresar al museo, el visitante se encuentra de pie en un gran salón en lo profundo de las paredes curvas del museo, como si hubiera entrado físicamente en el viaje de la escritura. A lo largo de las paredes curvas del espacio de exhibición interior, se imprimen escenarios secuenciales, cada uno con una narrativa propia.
La intención detrás del diseño es desencadenar una comunicación activa entre los artículos de la exposición y los visitantes, ofreciendo una experiencia interactiva y personal en lugar de un método tradicional de observación.
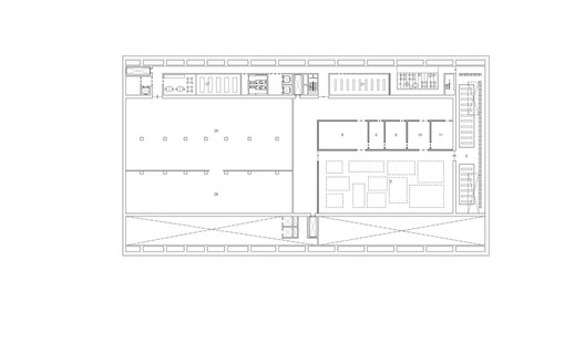
Los programas administrativos de forma rectangular abarcan las áreas principales alrededor de la estructura, contradiciendo la forma curvilínea de los espacios de exhibición. El Salón de Usos Múltiples se encuentra entre el vestíbulo y el área de exhibición como una zona de transición, donde se realizan conferencias y presentaciones. Al Área Educativa, –aunque separada de la circulación principal de la exposición– se puede acceder fácilmente para ofrecer diversos programas educativos. El área de la plataforma de carga está separada del estacionamiento público cerca de un espacio de exhibición especial, para garantizar una circulación de servicio corta y eficiente.
世界书写国家博物馆丨韩国丨SAMOO的建筑师和工程师-21
世界书写国家博物馆丨韩国丨SAMOO的建筑师和工程师-22
El 'Larchvium' (Biblioteca + Archivo + Museo) aparece donde se superponen la biblioteca y el área de almacenamiento. Los arquitectos abrieron el techo del área de almacenamiento, permitiendo la conexión visual con el espacio de exhibición de arriba junto con la biblioteca, convirtiendo todo el espacio en una nueva exposición interactiva.
世界书写国家博物馆丨韩国丨SAMOO的建筑师和工程师-24
La propuesta del
Museo
Nacional de Escritura Mundial ganó el Premio de Plata IDA Design Awards 2018 en Arquitectura, en la categoría de "Diseños conceptuales".
世界书写国家博物馆丨韩国丨SAMOO的建筑师和工程师-28
世界书写国家博物馆丨韩国丨SAMOO的建筑师和工程师-29
世界书写国家博物馆丨韩国丨SAMOO的建筑师和工程师-30
世界书写国家博物馆丨韩国丨SAMOO的建筑师和工程师-31
世界书写国家博物馆丨韩国丨SAMOO的建筑师和工程师-32
世界书写国家博物馆丨韩国丨SAMOO的建筑师和工程师-33
世界书写国家博物馆丨韩国丨SAMOO的建筑师和工程师-34
世界书写国家博物馆丨韩国丨SAMOO的建筑师和工程师-35
世界书写国家博物馆丨韩国丨SAMOO的建筑师和工程师-36
世界书写国家博物馆丨韩国丨SAMOO的建筑师和工程师-37
世界书写国家博物馆丨韩国丨SAMOO的建筑师和工程师-38
世界书写国家博物馆丨韩国丨SAMOO的建筑师和工程师-39
世界书写国家博物馆丨韩国丨SAMOO的建筑师和工程师-40
世界书写国家博物馆丨韩国丨SAMOO的建筑师和工程师-41
世界书写国家博物馆丨韩国丨SAMOO的建筑师和工程师-42
世界书写国家博物馆丨韩国丨SAMOO的建筑师和工程师-43
世界书写国家博物馆丨韩国丨SAMOO的建筑师和工程师-44
世界书写国家博物馆丨韩国丨SAMOO的建筑师和工程师-45
世界书写国家博物馆丨韩国丨SAMOO的建筑师和工程师-46
世界书写国家博物馆丨韩国丨SAMOO的建筑师和工程师-47
世界书写国家博物馆丨韩国丨SAMOO的建筑师和工程师-48
世界书写国家博物馆丨韩国丨SAMOO的建筑师和工程师-49
世界书写国家博物馆丨韩国丨SAMOO的建筑师和工程师-50
世界书写国家博物馆丨韩国丨SAMOO的建筑师和工程师-51
世界书写国家博物馆丨韩国丨SAMOO的建筑师和工程师-52
世界书写国家博物馆丨韩国丨SAMOO的建筑师和工程师-53
世界书写国家博物馆丨韩国丨SAMOO的建筑师和工程师-54
世界书写国家博物馆丨韩国丨SAMOO的建筑师和工程师-55
世界书写国家博物馆丨韩国丨SAMOO的建筑师和工程师-56
世界书写国家博物馆丨韩国丨SAMOO的建筑师和工程师-57
世界书写国家博物馆丨韩国丨SAMOO的建筑师和工程师-58
世界书写国家博物馆丨韩国丨SAMOO的建筑师和工程师-59
世界书写国家博物馆丨韩国丨SAMOO的建筑师和工程师-60
世界书写国家博物馆丨韩国丨SAMOO的建筑师和工程师-61
世界书写国家博物馆丨韩国丨SAMOO的建筑师和工程师-62
世界书写国家博物馆丨韩国丨SAMOO的建筑师和工程师-63
世界书写国家博物馆丨韩国丨SAMOO的建筑师和工程师-64
世界书写国家博物馆丨韩国丨SAMOO的建筑师和工程师-65
南京喵熊网络科技有限公司 苏ICP备18050492号-4知末 © 2018—2020 . All photos and trademark graphics are copyrighted by their owners.增值电信业务经营许可证(ICP)苏B2-20201444苏公网安备 32011302321234号
客服
消息
收藏
下载
最近