查看完整案例

收藏

下载
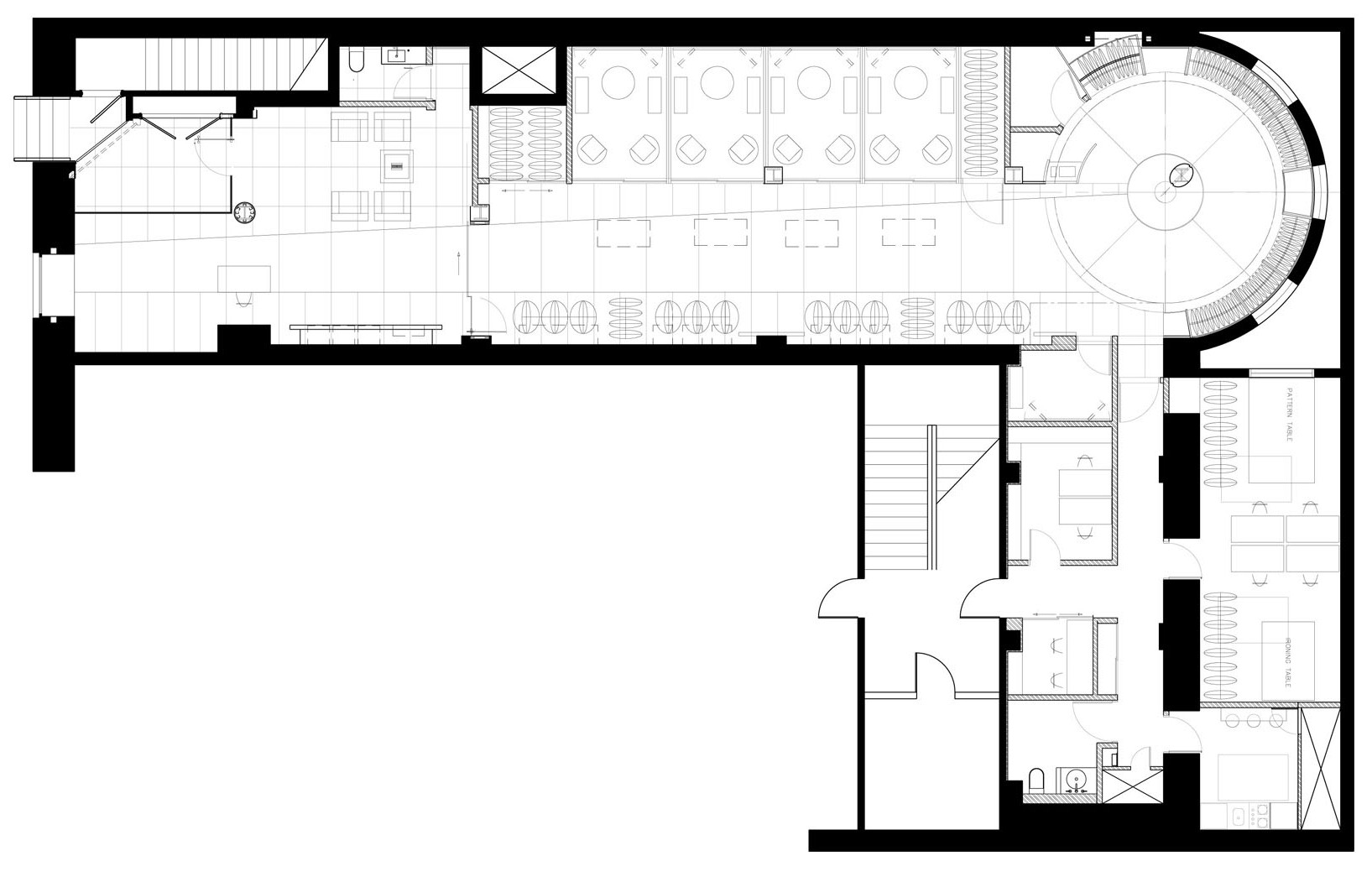
位于E 60街的Reem Acra沙龙于2003年1月开业。这个3000平方英尺的空间占据了1901年一座地标建筑的一层.沙龙的布局是线性的,有四个独特的部分:大堂,画廊,圆形大厅,和支持区,其中容纳办公室和工作室。
这一设计源于一种想法,即对一次非常特殊的活动作出客户的预期反应。到达的客户受到一个特别的,超大的华丽铜门迎接,欢迎他们进入一个亲密的私人内部庭院。大厅内设有一个小喷泉,以增强庭院的感觉。
画廊被蒙住在半透明的铸造滑动门后面,嵌入了一个由ReemAcra设计的华丽的绣花面料。这扇门的设计向人们展示了这一点之后等待顾客的魅力。长袍是展示在漆器面板沿延伸画廊墙壁。半透明的玻璃滑动门将地板对面的织物墙面试衣间隔开。中间通道被设计成一条跑道,通过精品店和连接整个空间来描绘流程。
跑道由金色混凝土制成,周围是浅色石灰石。在时装秀期间,它为模特们提供了一个功能性的走道。
颜色被引入,以提供宁静和柔软。现代的空间态度、高耸的天花板、戏剧性的灯光设置、材料和材料的结合,强调了空间的动态性。
Firm Chelsea Atelier Architect, PC
Type Commercial › Retail
STATUS Built
YEAR 2003
SIZE 1000 sqft - 3000 sqft
BUDGET Unknown
Photos Bjorg, Anna
keywords:architecture, architecture news, interiors, interior design, portfolio, spec, brands, marketplace, products Reem Acra Boutique
关键词:建筑、建筑新闻、室内设计、组合、规格、品牌、市场、产品REEM Acra精品
客服
消息
收藏
下载
最近









