查看完整案例

收藏

下载
main entry
The Gardenia
Our proposal for a new high-rise residential tower and mixed-use facility in Islamabad aims to return a natural dimension to the high-rise living experience: finding pleasure in proximity to nature by creating a private, natural patch of greenery for each unit in the building.
The project was commissioned to appeal to Pakistani expatriates returning home to work by remote and reconnect with their extended families. Our approach to the construction of the building used materials which will withstand the climate, can be locally sourced, and will age gracefully with minimal maintenance.
The project is characterized by its use of raw concrete and bare masonry to reflect a hand-crafted quality, striking a powerful contrast with the presence of leading-edge sustainable technologies: LED lighting, rainwater collection for vegetation support and greywater use, and a robust thermal energy storage system to reduce peak use of power for cooling. In this respect, the building will set a new standard for sustainable residential and commercial design in Islamabad.
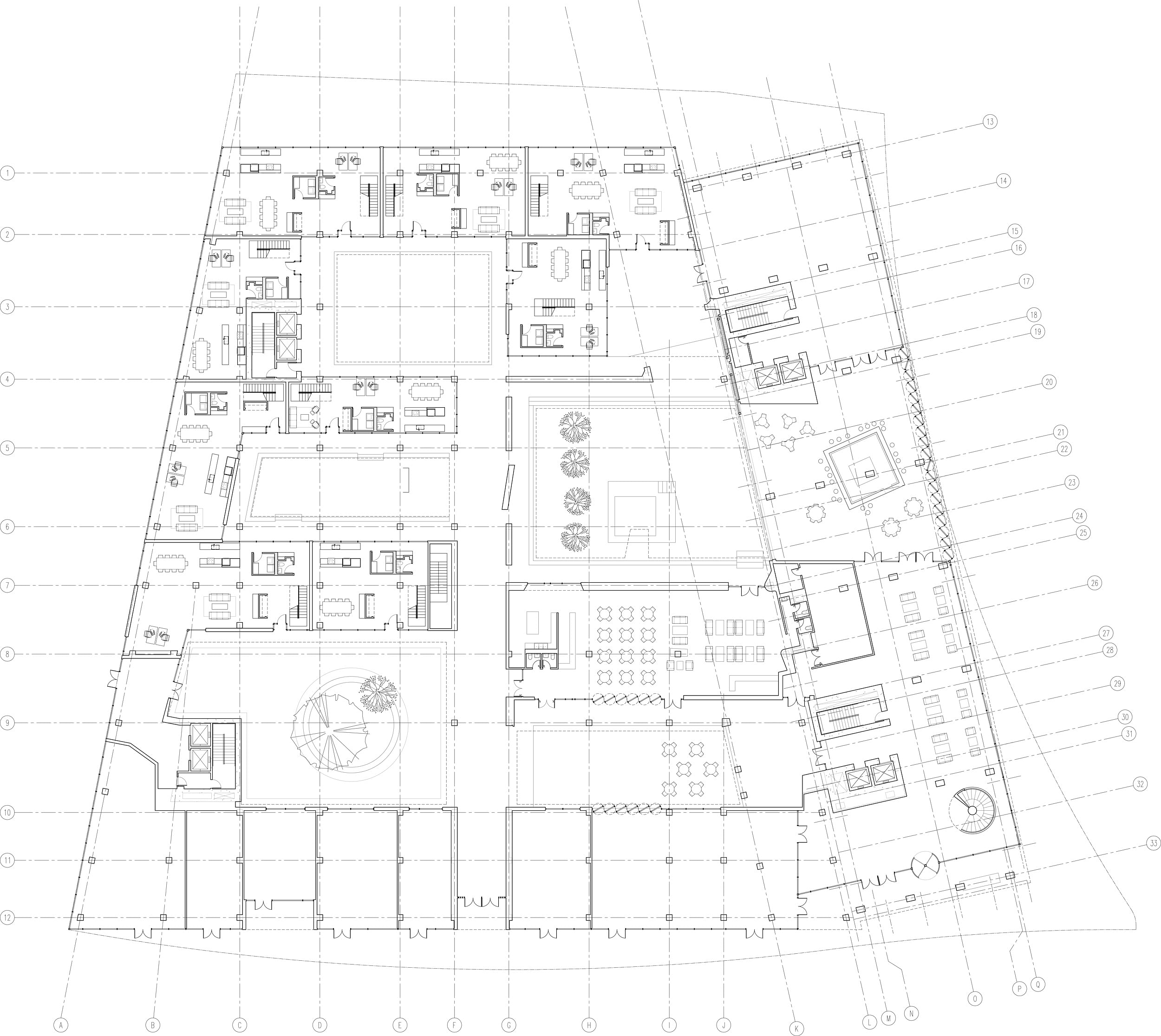
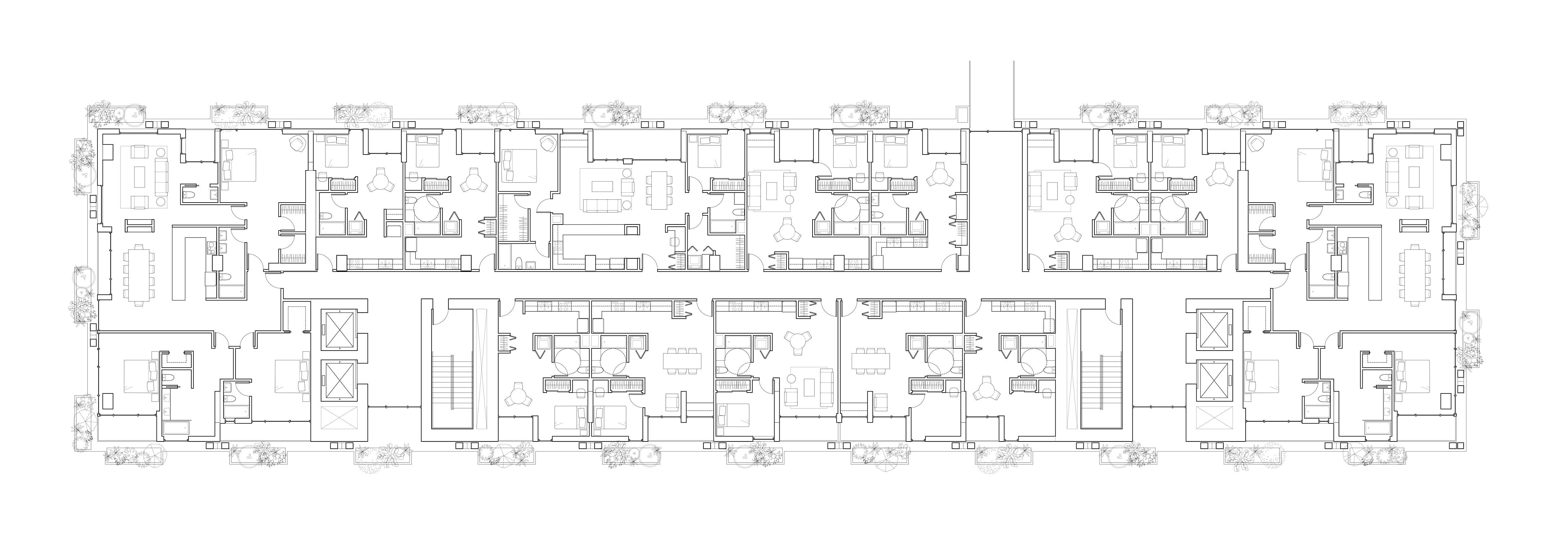
The complex features 434,000 ft2 of residential space distributed among five different residential unit types; community-based domestic amenities such as a pool, gym, private lounges; 17,000 ft2 of retail space; and underground parking for 358 private vehicles.
Status:
Under Construction
Location:
Islamabad, PK
Firm Role:
architect
Additional Credits:
structural Engineering: Ajmad Haneef
interior Design: Outside In Design New York Design Studio
developer: ZEM Builders
visualization: Brooklyn Digital Foundry
side elevation
bridge to vertical park
facade at day
facade at night
main courtyard
aerial
unit interior
pool lounge at night
secondary courtyard 1
terrace park
alley drive
floor plan
residential unit plan
wall section
客服
消息
收藏
下载
最近

















