查看完整案例


收藏

下载
© BoysPlayNice
© BoysPlayNice
架构师提供的文本描述。布拉格市中心的小酒吧提供特别的茶和葡萄酒,但也提供美味的咖啡。单独或以各种甚至令人惊讶的组合。穿越时区的空间概念源于其名称“时差”。在这个意义上,一个人只能沿着整个酒吧的整个长度(15米)“飞越”整个世界。
Text description provided by the architects. This small bar in the centre of Prague offers especially tea and wine but also delicious coffee. Separately or in various even astonishing combinations. The space concept of travelling through time zones has been derived from its name „Jetlag“. Within this meaning one can “fly through” the entire world only along the whole length of the bar (15 metres).
© BoysPlayNice
© BoysPlayNice
在圣乔治广场的茶和酒吧间醒来:
Awaking in the tea and wine bar at St. George Square:
整个世界都挤在那里;24个时区被压缩成几秒钟;一个完全的拥挤和混乱;一个人进入今天,在几步之内就成了昨天。到吧台要花六个小时,到最后一张桌子要花十三小时。葡萄酒来自智利,茶来自锡兰,9小时装在200毫升的玻璃杯中。奥地利,中国,8个小时;一个小时被浪费,另一个小时增加。
The entire world is crammed in there; 24 time zones compressed into a few seconds; An utter huddle and muddle; One enters today and within a few steps now becomes yesterday. It takes six hours to get to the bar end and Additional thirteen hours to reach the last table at a window. Wine comes from Chile, tea from Ceylon; 9 hours in a 200 ml glass. Austria, China 8 hours; An hour is lost, another hour gained.
© BoysPlayNice
© BoysPlayNice
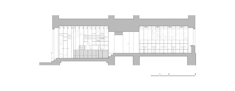
时差栏的空间解决方案的实质在于“将其空间分割成时区”的想法。将实时时区的曲率推广到条形上。每个区域以一条曲线开始和结束,划出所关注的空间部分。曲线的塑造创造了酒吧空间的特定部分-酒吧本身,葡萄酒和茶架,灯具,长凳。这个空间是故意不清楚的,就像模糊一样,就像一个人在足够长的时间和足够频繁的时间内旅行足够长的距离一样。
The substance of the spatial solution to the Jetlag bar consists in the idea of „cutting its space into time zones“. The curvature of real time zones is generalised in the bar morphology. Each zone begins and terminates with a curve delimiting the space part of concern. The shaping of curves creates particular parts of the bar space – the bar itself, wine and tea shelves, light fixtures, benches. The space is intentionally unclear, as if blurred, in the same way as the time in which one travels a sufficient distance for an adequately long time and frequently enough.
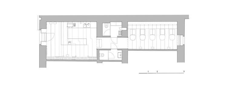
Floor Plan
选用不锈钢作为基材。明亮、微妙和仅建议的钢曲线反映了划定时区的想象线。闪亮的金属将机身与铆接的薄板金属以及当今酿酒厂的不锈钢容器联系在一起。
Stainless steel was chosen as the basic material. The bright, subtle and only suggested steel curves reflect the imaginary lines delimiting the time zones. The shiny metal associates both the fuselages with riveted sheet metals and the stainless vessels of today‘s wineries as well.
© BoysPlayNice
© BoysPlayNice
Architects Mimosa architekti
Location Prague, Czech Republic
Architects in Charge Petr Moráček, Jana Zoubková, Pavel Matyska
Area 55.0 m2
Project Year 2017
Photographs BoysPlayNice
Category Interior Design
客服
消息
收藏
下载
最近































