查看完整案例

收藏

下载
Реновация детской музыкальной школы №2 в Казани
По словам архитекторов, работая с этой модернистской постройкой, они прежде всего старались «не сделать из советского наследия, которое неизбежно стареет, ботоксную звезду 1990-х».
расположение:
Казань, ул. Галимджана Баруди, 25А
фото:
Даниил Шведов
проектирование:
2020-2021
реализация:
2021-2023
общая площадь помещений музыкальной школы:
2500 м
2
этажность:
2
авторы проекта:
АБ ABAU / Руслан Гильманов, Самат Сунгатуллин, Егор Аникин, Наталья Латыпова, Булат Мухаметзянов
ООО «ПРОЕКТСТРОЙ» / Рена Галимова
Информация от архитекторов:
Поиск решений был длительным, отчасти по причине большого желания части заказчиков сделать нечто яркое и впечатляющее. Но мы в в первую очередь исходили из парадигмы «а какой бы была советская архитектура сейчас, если бы советская школа проектирования развивалась дальше».
Красивое старение — это сексуально. Седина — это красиво. Поэтому мы хотели минимально вмешиваться в первоначальную пластику и интерьеры, чтобы создать интеллигентное архитектурно-пространственное решение.
С одной стороны, вход в здание является входом в музыкальную школу, с другой — в городскую библиотеку. Эти два входа объединены зубчатым эркерным фасадом, где перемежаются окна с глухими стенами.
Три глухих стены с каждого входа — три великих композитора для музыкальной школы — и три великих писателя для библиотеки. Моцарт, Чайковский и Яхин (автор гимна Республики Татарстан). Галимжан Баруди (татарский писатель и богослов), Габдулла Тукай (татарский поэт и писатель) и Александр Сергеевич Пушкин.
Галимжан Баруди
Вольфганг Амадей Моцарт
Александр Пушкин
Петр Чайковский
Габдулла Тукай
Рустем Яхин
Портреты выполнены из металла в пластике советских панно и роботов-андроидов в современной научной фантастики про киберпанк (нарисованы архитекторами бюро). Портреты объединены рассыпающимися линиями нотной тетради, которая взрывается (эффект сродни эффекту Допплера), проносясь через весь фасад слева-направо.
Два элемента-«пасхалки», скрытых в панно, — это беспроводной наушник в ухе у композитора Яхина (современный способ прослушивания музыки) и флоппи-дискета в нагрудном кармане Галимжана Баруди — как еще относительно недавно актуальный способ цифрового хранения текста.
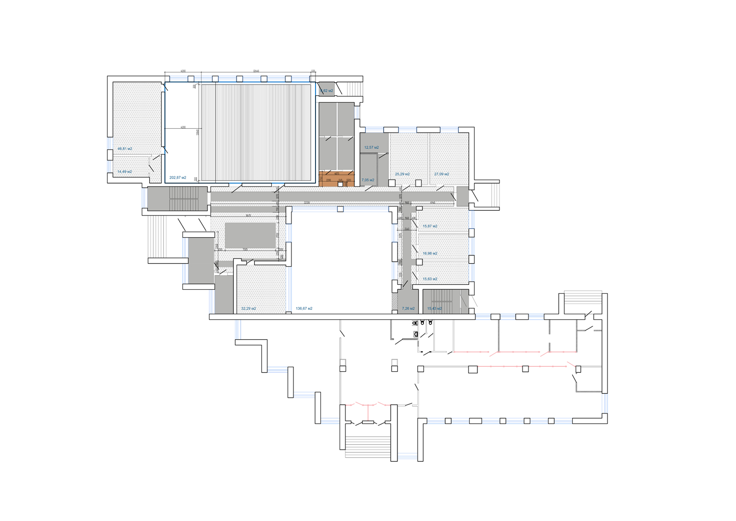
Общий план школы
Сечения актового зала
Туалет
客服
消息
收藏
下载
最近






























