查看完整案例

收藏

下载
A Return to the Age of Railway: Moynihan Train Hall in New York
Manhattan
New York
New York City
railway architecture
schlaich bergermann partner
SOM
station
„We will probably be judged not by the monuments we build but by those we have destroyed“ schrieb Ada Louise Huxtable, die große Architekturkritikerin der New York Times, Anfang der 1960er-Jahre. Ihr Protest galt dem Abriss des wohl größten Beaux-Arts-Gebäudes in Manhattan, der 1910 errichteten Bahnhofshalle der Pennsylvania Station von McKim, Mead & White. An ihre Stelle setzte ein Konsortium aus der Stadt New York und privaten Investoren damals den Neubau des Madison Square Garden. In den Untergeschossen der Veranstaltungshalle fristete New Yorks zweitgrößer Bahnhof fortan ein lichtloses Dasein.
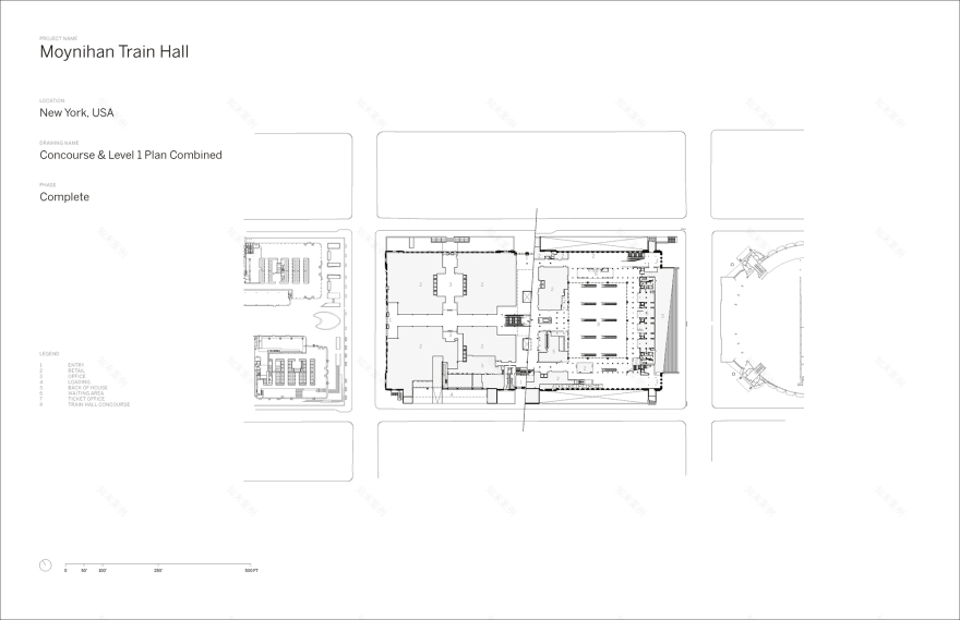
50 Jahre später hat ein ähnliches „Public Private Partnership“ unter Mitwirkung von SOM der Penn Station ihr repräsentatives Entree zurückgegeben – und zwar nicht am Originalstandort, sondern auf dem benachbarten Straßenblock. Dort stand schon seit langem das James A. Farley Post Office leer, das 1913 ebenfalls nach Plänen von McKim, Mead & White über den Bahnhofsgleisen errichtet worden war. Erste Pläne zu seiner Umnutzung entstanden bereits in den 90er-Jahren; zum Jahresbeginn 2021 konnte das alt-neue Eingangsgebäude nun eingeweiht werden. Auf zwei Etagen umgeben Wartelounges, Informations- und Fahrkartenbüros und eine „Food Hall“ das von oben belichtete Herzstück des Gebäudekomplexes: In der ehemaligen Postsortierhalle ließen die Architekten die zuvor verkleideten, großen Stahlfachwerkbinder freilegen und engagierten die Stuttgarter Tragwerksplaner Schlaich Bergermann Partner, um dazwischen eine leichtgewichtige Dachkonstruktion aus Stahl und Glas zu entwerfen. Das transparente Dach hat eine Grundfläche von 60 x 45 m und besteht aus vier tonnenförmigen Freiform-Gitterschalen, die zum einen auf den Dachrändern rund um die Halle und zum anderen auf den historischen Fachwerkträgern aufliegen. Die Rippen der Gitterschalen sind aus T-Stahlprofilen verschweißt, deren Steghöhe zur Dachmitte hin immer weiter abnimmt. Gleichzeitig werden die Glaspaneele in der Mitte des Dachs größer. Das im Grundriss rechtwinklige Stabnetz ist mit dünnen Diagonalseilen ausgekreuzt und in der Vertikalen mit vorgespannten Seilbindern gegen einseitige Lasten versteift.
Weitere Informationen:
Denkmalpflege: Building Conservation Associates, Inc.
TGA-Planung: Jaros Baum & Bolles
Bauingenieure, Geotechnik: Langan Engineering & Environmental Services, Inc.
Lichtplanung: Domingo Gonzales Associates
客服
消息
收藏
下载
最近

























