查看完整案例

收藏

下载
Casa Macetero / Formzero
Casa Macetero / Formzero
Casas
Sustentabilidad
Kuala Lumpur,
Malasia
Arquitectos:
Formzero
Formzero
Área:
340
m²
Año:
2017
Fotografías:
Ameen Deen
Proveedores:
Feruni
Johnson Suisse
Jotun
Wong Lighting
structure system
Esta vivienda está diseñada para una pareja de jubilados apasionados por el cultivo de alimentos. Las plantas que cubren Casa Macetero no se encuentran definidas, haciendo que su apariencia varíe entre jardín, cultivos y casa, anticipando una redefinición de la casa tropical contemporánea.
Plantas
La casa con sus maceteros de concreto en cascada, ocupados con más de 40 tipos de plantas comestibles en cada piso, crea un fuerte contraste visual con las construcciones vecinas. Su fachada empotrada proporciona espacios públicos adicionales para la interacción entre vecinos. Esto puede verse en la primera maceta que se construye alrededor de un árbol de jazmín existente, que sirve como mobiliario urbano proporcionando una conexión entre la pareja y su vecindario.
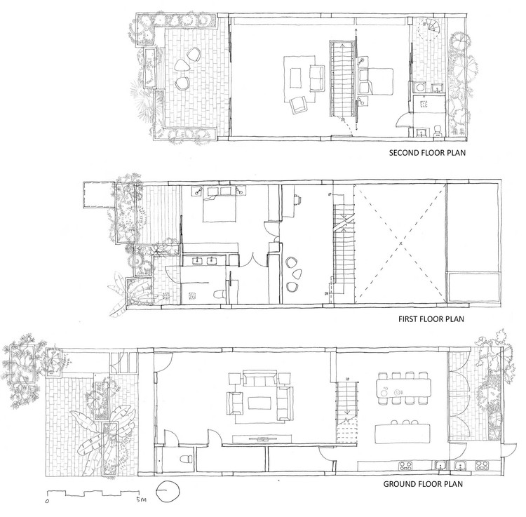
Los espacios internos están impregnados de un fuerte sentido de hospitalidad y de la actitud del propietario hacia la vida y la agricultura de las tropicales comunidades urbanas que trabajan con métodos sostenibles. Al abrir la puerta, inmediatamente se percibe la luz y la ventilación cruzada, y a la vez, se logra ver la totalidad de la planta baja que solo tiene una separación de vidrio entre la parte delantera y trasera. En la parte posterior de la casa, luego de pasar por la sala de estar y la escalera central, se encuentra una cocina y un comedor de doble altura, separado de la terraza con muro verde por un gran ventanal.
Inspirándose en la casa tropical vernácula, el bambú partido, producido por los indígenas llamados Temuan de Negeri Sembilan, se utiliza como encofrado para los maceteros de concreto. Si bien esta textura de bambú significa una forma orgánica abstracta de la casa, también es una solución sostenible para acabados de bajo mantenimiento que lo más probable es que envejezcan bien con la lluvia y la contaminación urbana.
Corte
Casa Macetero es una representación física del estilo de vida del propietario. También es una plataforma de conocimiento en la que la pareja casada improvisa constantemente el sistema de riego y plantación. Dicho sistema de riego, hecho a medida, está interconectado entre las macetas que almacenan y reciclan los nutrientes y el agua de lluvia dentro de la tierra. También permite una manipulación completa y precisa de los maceteros, desde la composición del suelo hasta el nivel de agua que se suministra a cada maceta individual.
Este proyecto sirve como una oportunidad y experiencia valiosa, no solo para que el cliente aprenda sobre la agricultura en entornos tropicales, sino también para la comunidad circundante. Se espera que la vida del edificio mejore continuamente, se desarrolle y crezca orgánicamente junto con la pareja casada.
FORMZERO
Oficina
Materiales
Vidrio
Acero
Concreto
客服
消息
收藏
下载
最近




























