查看完整案例

收藏

下载
Omuli horse museum,
Pavel Makarchenkov+Nikita Morenov+Polina Vasina
ste proyecto es una propuesta estratégica para renovar y adaptar un edificio antiguo repensando sus límites originales y sus relaciones con el paisaje.
El concepto se originó como respuesta al resumen de un concurso internacional para el rediseño y la reinvención de una pequeña escuela rural en el área de Omuli en el norte de Letonia. La estructura histórica, originalmente construida en 1936, fue planeada para convertirse en un museo de la cría local de caballos. El edificio también tenía que funcionar como una casa de huéspedes y un espacio de trabajo y vivienda para artistas en residencia.
La escuela Omuli está ubicada dentro del pintoresco paisaje de la Reserva de la Biosfera de North Vidzeme, donde las áreas agrícolas se intercambian con bosques mixtos y praderas de pastoreo. La naturaleza y la historia de las razas de caballos locales es inseparable de este terreno. Por lo tanto, un replanteamiento de las relaciones entre el edificio de la antigua escuela y el paisaje es esencial para la apariencia de un nuevo museo del caballo.
La propuesta parte de la idea de transformar los espacios interiores del edificio hacia la confluencia con el terreno y la atmósfera de la reserva. Un análisis del plan de la estructura y su ubicación en el paisaje llevó a la conclusión de que tal transformación debería comenzar en el lado sur del edificio, donde el antiguo auditorio da a vastos prados. Aquí, uno puede imaginar fácilmente caballos pastando.
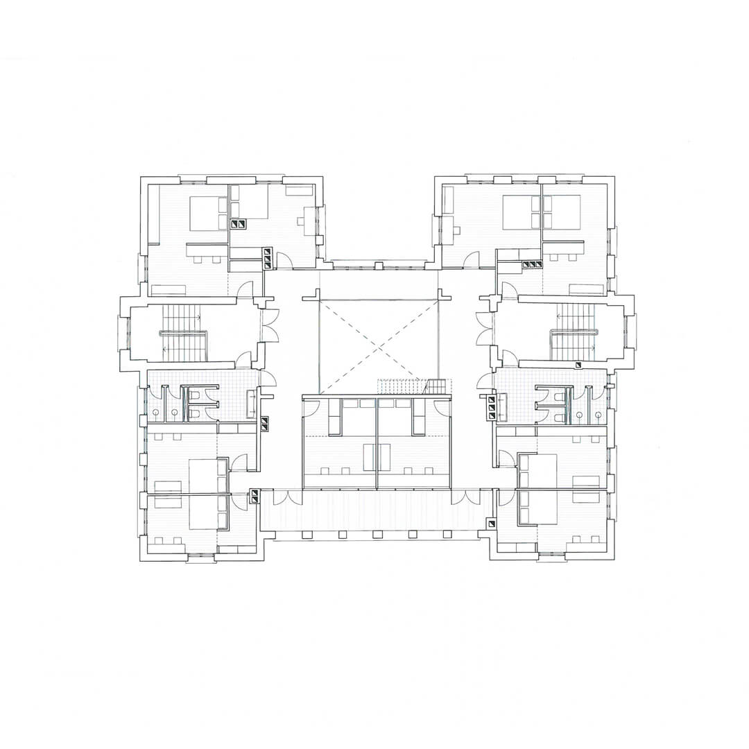
El borde existente del contorno térmico del edificio se desplaza más allá del muro de la fachada sur. Se eliminan todos los marcos de las ventanas de la parte central de la fachada, dejando vacíos los vanos, a través de los cuales se concibe una nueva entrada al museo: adquiere calidad de pórtico. Los fragmentos de piso y techo adyacentes a la pared se desmantelan con la preservación de los elementos estructurales necesarios. Se está erigiendo un nuevo muro de vidrio detrás del histórico muro sur, que se conserva en su estado actual y se convierte en una ruina habitable. Como resultado, se forma un espacio intermedio entre los muros en ruinas y los nuevos, perteneciente tanto al edificio como al paisaje.
La planta baja se convierte en una extensión natural del parque paisajístico. Aquí, el espacio intermedio produce un patio-jardín interior, alrededor del cual se agrupan las salas públicas del museo: un auditorio de conferencias, talleres y una sala principal. En el lado norte de la planta baja se encuentra la zona de servicio, que incluye los apartamentos del jardinero del museo. El espacio de doble altura del salón principal conecta la planta baja con la primera. Este último está reservado para las diez habitaciones. Aquí, el desplazamiento del muro de la fachada forma una logia, que ofrece una excelente vista de los campos rurales. El archivo del museo y el espacio expositivo se encuentran ambos en el ático. El acristalamiento de la nueva fachada permite iluminar las exhibiciones aquí reunidas.
La estrategia de transformación del edificio considera las capacidades de la estructura existente. Las paredes y los tabiques se mantienen en la medida de lo posible en las condiciones del nuevo diseño. Las viejas chimeneas de ladrillo se reutilizan para nuevas estufas o como lugar de ventilación. Respecto a la historia del edificio original, se conservan todos los vestigios de elementos y construcciones removidos.
Autores:
Pavel Makarchenkov
+Nikita Morenov+Polina Vasina.
Ubicación:
Omuli, Letonia.
Año:
2021
Concurso:
Omuli Museum of the Horse
Premio:
Shortlisted project.
客服
消息
收藏
下载
最近












