查看完整案例


收藏

下载
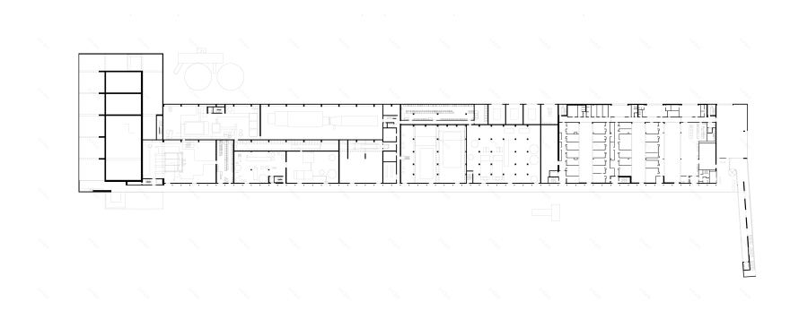
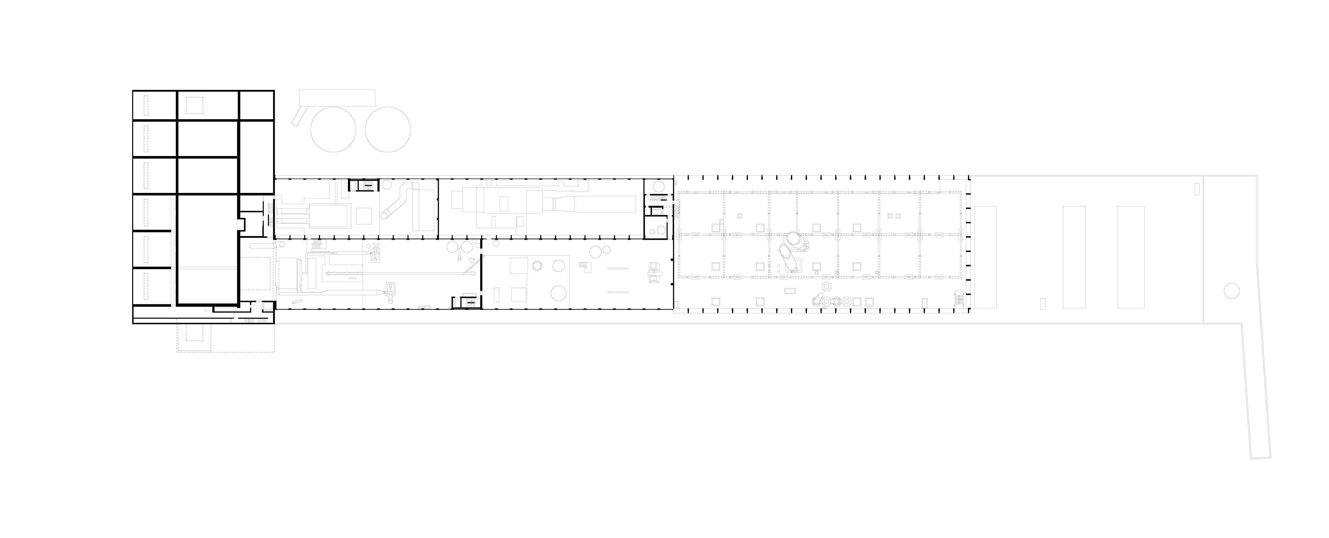
与停泊在港口的集装箱船类似,EZF的新建筑位于伯尔尼郊外,以适应未来工艺技术的变化,建筑物的建造需要耐久,同时需要灵活的基础和废料掩体由现场混凝土制成,加工工艺的大厅被建造成一个构造外壳。预制混凝土构件/300米长的公共长廊沿着建筑物的一侧/通过让精确的视图进入工艺技术和它对周围森林的慷慨开口,长廊建立了“机器”和自然之间的关系。
Firm Graber Pulver Architekten
Type Industrial › Power Plant
STATUS Built
YEAR 2013
keywordsarchitecture, architecture news, interiors, interior design, portfolio, spec, brands, marketplace, products Waste Incineration Facility and Powerstation Forsthaus
关键词-建筑、建筑新闻、室内设计、组合、规格、品牌、市场、产品垃圾焚化设施和PowerStation Forsthauss
客服
消息
收藏
下载
最近





















