查看完整案例

收藏

下载
La Paz总体规划
Masterplan La Paz
拉巴斯总体规划是由 CCA | Bernardo Quinzaños 为墨西哥南下加利福尼亚州的拉巴斯市提出的一项全面城市更新方案,旨在通过改造被称为“El Cajoncito”的区域——该市水利基础设施的关键节点,改善城市环境并提升居民的生活质量。该区域为一条干涸的河床,在雨季期间用作雨水排放通道。
The Masterplan La Paz is a comprehensive urban regeneration proposal designed by CCA | Bernardo Quinzaños for the city of La Paz, Baja California Sur. Its aim is to revitalize the urban environment and enhance the quality of life for its residents through the transformation of an area known as El Cajoncito, a key site in the city’s water infrastructure. This dry riverbed functions as a stormwater runoff channel during the rainy season.
▼项目鸟瞰,aerial view of the project©Jaime Navarro
该项目将这一长期被忽视的空间重新构想为绿色基础设施,连接富裕地区与面临更多社会和空间挑战的社区。通过打造一座大型城市公园,总体规划不仅增强了城市的防洪能力,也将拉巴斯标志性的滨海大道与最脆弱的城市区域相连接。
▼场地平面,site plan©CCA
The project reimagines this previously neglected space as green infrastructure that connects more affluent areas with neighborhoods facing greater social and spatial challenges. Through the creation of a large public park, the masterplan not only protects the city from flooding but also links La Paz’s iconic malecón with its most vulnerable urban fabric.
▼打造一座大型城市公园,the creation of a large public park©Jaime Navarro
▼将被忽视的空间重新构想为绿色基础设施,reimagines this previously neglected space as green infrastructure©Jaime Navarro
▼连接主城区和滨海地区,reconnect the urban area and the beach©Jaime Navarro
该提案包含多项关键设施,包括步行与自行车道、一座桥梁和一处体育综合体,以提升连通性并推动城市发展。该规划以弹性基础设施为基础,与技术专家协作设计,确保其在日常使用与紧急情况下的有效运行。
The proposal includes the creation of a Pedestrian and Cycleway, a Bridge, and a Sports Complex, key interventions designed to enhance connectivity and drive urban development. The proposal is grounded in resilient infrastructure, designed in collaboration with technical specialists to ensure its performance both in daily use and in emergency scenarios.
▼包括自行车道、步行道在内的基础设施建设,infrastructure intervention including cycleway and pedestrian ©Jaime Navarro
▼包括自行车道、步行道在内的基础设施建设,infrastructure intervention including cycleway and pedestrian ©Jaime Navarro
目前,“El Cajoncito”的干河床严重阻碍区域通行,将两大社区沿约8公里的长度隔开。雨季来临时,河道泛滥使跨越更为困难。尽管两个点之间的实际直线距离仅为200米,居民却常常需要绕行4至8公里,甚至在很多情况下无法通过。
The area currently faces severe accessibility challenges due to the dry riverbed of El Cajoncito, which divides two neighborhoods along an approximate stretch of eight kilometers. The problem is exacerbated during the rainy season when the river floods, making crossings even more difficult. Today, residents are forced to walk or drive between four and eight kilometers to bypass it, despite the fact that the actual distance between points is just 200 meters. In many cases, crossing becomes impossible.
▼场地鸟瞰,aerial view of the site©Jaime Navarro
为解决这一问题,总体规划中特别设立了一座桥梁,不仅改善交通连接,还显著缩短通行时间。桥梁设计融合排水系统,能够有效防止洪水,并具备应对强降雨与地震的结构稳定性。▼桥梁平面图,bridge plan©CCA
To address this issue, the Masterplan includes a Bridge that will not only improve connectivity but significantly reduce travel times. Its design incorporates drainage systems to prevent flooding and ensures structural stability during heavy rains and seismic events.
▼改善交通连接的桥梁,the bridge that improves connectivity©Jaime Navarro
步行与自行车道从码头延伸至体育综合体,倡导可持续出行方式,鼓励居民步行与骑行。该设施不仅改善连通性,还作为天然的防洪屏障,并在沿线设置有遮阳公交站和休息区,便利公共交通用户。
The Pedestrian and Cycleway stretches from the marina to the Sports Complex and promotes sustainable mobility by accommodating pedestrians and cyclists. Beyond enhancing connectivity, it acts as a natural flood barrier and includes shaded bus stops for public transit users, along with rest areas.
▼体育综合体鸟瞰,aerial view of the Sports Complex©Jaime Navarro
▼遮阳公交站和休息区,shaded bus stops for public transit users, along with rest areas©Jaime Navarro
▼遮阳公交站和休息区,shaded bus stops for public transit users, along with rest areas©Jaime Navarro
规划中还设想了新的娱乐与体育设施。体育综合体包括棒球、足球、网球和篮球场地,以及舞蹈、音乐课等文化活动空间与图书馆。该基础设施建设还带动了就业并提振当地经济。截至目前,总体规划已完成40%,其中步行与自行车道完成一半的工程量,体育综合体则已全部建成。
The Masterplan also envisions new recreational and athletic facilities. The Sports Complex includes fields for baseball, soccer, tennis, and basketball, as well as spaces for cultural activities such as dance and music classes, and a library.The development of this infrastructure has generated employment opportunities and boosted the local economy. To date, 40% of the Masterplan has been completed, with the Pedestrian and Cycleway completed along half of its planned project, and the Sports Complex fully delivered.
▼面向体育场的休息区,rest areas facing the playground©Jaime Navarro
体育综合体
Sports Complex
体育综合体回应了城市对体育设施日益增长的需求,打造了一个专为运动、健身与社区文化活动设立的公共空间。
The Sports Complex addresses the city’s growing need for athletic infrastructure, offering a public space dedicated to sports, physical activity, and community-based cultural programming.
▼专为运动、健身与社区文化活动设立的公共空间,a public space dedicated to sports, physical activity, and community-based cultural programming©Jaime Navarro
综合体坐落于“El Cajoncito”区域,该地原为非正式的体育活动场所,项目在原有使用基础上提供了更为完善和可达的基础设施。设计过程中积极引入社区参与,确保整体方案贴合本地需求,体现包容性与实用性。自行车道与人行道的结合作为更大“步行与骑行系统”的一部分,推动城市流动性发展,并增强居民的归属感与日常使用率。
Located in the “El Cajoncito” area, previously an informal site for sports activities, the complex reinforces this use with adequate and accessible infrastructure. The design was developed with active community participation, ensuring it responds to local needs with an inclusive and functional approach. The integration of a bike lane and pedestrian path, part of the broader Pedestrian and Cycleway, promotes urban mobility and encourages a stronger sense of ownership and daily use by residents.
▼提供更为完善和可达的基础设施,reinforces this use with adequate and accessible infrastructure©Jaime Navarro
一个重要的社区与体育空间
A Vital Space for Sports and Community
棒球在拉巴斯拥有悠久传统,尽管当地已有多个球场,但现有设施难以满足当前质量与安全标准。该项目的重点是对这些场地进行正式化与优化,优先建设高质量的棒球与垒球场,同时配套其他运动场地与设施。目标是为网球、滑板、健身、足球、篮球与空手道等多种运动提供良好的空间环境,激发社区活力与运动成就。
Baseball has a long-standing tradition in La Paz. While the city does have several playing fields, the existing infrastructure does not meet current standards of quality and safety. This project focuses on formalizing and improving those facilities, prioritizing the creation of high-quality baseball and softball fields, along with additional courts and athletic spaces. The goal is to provide a well-equipped environment for a range of disciplines, including tennis, skateboarding, fitness, soccer, basketball, and karate, encouraging active community engagement and athletic success.
▼高质量的棒球与垒球场,high-quality baseball and softball fields©Jaime Navarro
该市政体育中心旨在促进所有年龄层的运动参与。通过合理的注册费用,向社区开放高质量设施。除了承办训练与比赛,该综合体也向公众开放,供步行、慢跑和休闲活动使用。
This municipal sports center aims to foster athletic participation across all age groups. With affordable registration fees, it offers the community access to first-rate facilities. Beyond serving as a venue for training and competitions, the complex is open to the public for recreational activities such as walking, jogging, and leisure outings.
▼高质量的棒球与垒球场,high-quality baseball and softball fields©Jaime Navarro
建筑方案
Architectural Program
体育综合体覆盖广泛的娱乐与运动需求。其中,棒球馆采用模块化策略,设置四座结构相同的建筑单元,提升建设效率与标准化程度。色彩分区系统作为导视策略,便于使用者识别不同场地。虽然外观统一,但棒球与垒球场地在规模与复杂度上各有差异,满足不同年龄阶段、技能水平的用户需求,支持从初学到专业的渐进式发展。
The Sports Complex meets a broad spectrum of recreational and athletic needs. For the baseball pavilions specifically, the design employs a modular strategy of four identical structures to facilitate efficient, standardized construction. Color coding was introduced as a wayfinding strategy to help users distinguish between the different fields. Although the pavilions share a unified design, the fields, dedicated to both baseball and softball, differ in scale and level of complexity. This variety accommodates a wide range of users, from young children in beginner stages to teenagers and adults at intermediate and professional levels, supporting progressive athletic development for each age group.
▼遮阳看台,shaded seating areas©Jaime Navarro
除棒球馆外,综合体还包括足球场、篮球场、网球场、滑板公园,以及跑步与骑行跑道,构建包容性强、通达性好的体育基础设施网络。
In addition to the pavilions, the complex includes soccer fields, basketball and tennis courts, a skate park, and running and cycling tracks, creating an inclusive and accessible network of sports infrastructure.
▼构建包容性强、通达性好的体育基础设施网络,creating an inclusive and accessible network of sports infrastructure©Jaime Navarro
建筑设计充分考虑当地气候,设置有遮阳看台和一体化家具,为观众、陪同人员与运动员提供舒适的休息空间。这些遮阳区域在炎热环境中尤为重要,既提升了舒适度,也丰富了空间体验。在部分区域,这些遮阳构筑采用有机几何造型,柔化建筑线条,营造更具流动性的视觉语言。
The architectural proposal responds carefully to the region’s climate conditions by incorporating shaded seating areas and integrated furniture for spectators, companions, and athletes between games. These shaded zones are essential in a hot environment and are designed not only for comfort but also to enhance the spatial experience. In some cases, they take on organic geometries to soften the rigidity of the complex and contribute a more fluid visual language.
▼遮阳构筑采用有机几何造型,shaded zones take on organic geometries©Jaime Navarro
多功能建筑
Multipurpose Building
多功能建筑由两个错落高度的双坡屋顶体量构成,采用统一结构体系,并可实现空间的独立、同步使用。结构采用模块化钢结构以提升施工效率,立面为开放式设计,并设有屋脊通风系统,促进自然通风。
▼模型,model©CCA
The multipurpose building consists of two gabled volumes at staggered heights, sharing a single structural system while allowing for independent, simultaneous use of the spaces. A modular steel structure was selected for its construction efficiency, and the design features open façades and a ridge vent to promote cross-ventilation.
▼错落高度的双坡屋顶体量,two gabled volumes at staggered heights©Jaime Navarro
▼结构采用模块化钢结构,A modular steel structure was selected©Jaime Navarro
首层设有一处双层高的户外遮阴空间,作为社区集会与多功能活动场地,适合开展空手道、舞蹈、瑜伽及文化表演等活动。建筑内部设置行政办公室、音乐教室、咖啡厅与图书馆。
On the ground floor, a double-height, shaded outdoor area serves as a community gathering space and flexible venue for activities such as karate, dance, yoga, and cultural performances. The building’s program includes administrative offices, classrooms for music instruction, a café, and a library.
▼适合开展空手道、舞蹈、瑜伽及文化表演等活动,flexible venue for activities such as karate, dance, yoga, and cultural performances©Jaime Navarro
▼双层高的户外遮阴空间,a double-height, shaded outdoor area©Jaime Navarro
建筑空间布局灵活,可同时开展多种活动,增强市民参与感与社交交流。
Its spatial and programmatic flexibility allows for multiple activities to take place simultaneously, fostering civic engagement and social exchange.
▼屋顶细节,roof detail©Jaime Navarro
积极的社区影响
A Positive Impact on the Community
该项目旨在打破拉巴斯市政基础设施集中于滨海大道的格局,在社区内提供课外与休闲空间,尤其是在下午时段,为青少年与成年人创造有意义的休闲与成长机会,促进社区连结。
The project seeks to decentralize La Paz’s public infrastructure, which was previously concentrated along the boardwalk. By offering a space for extracurricular and recreational activities, particularly in the afternoons, it provides young people and adults in the area with meaningful opportunities for leisure, personal growth, and connection.
▼为青少年及成年人提供休闲运动的机会,provides young people and adults with meaningful opportunities for leisure©Jaime Navarro
迈向更活跃与文化繁荣的未来
Toward a More Active and Culturally Vibrant Future
自投入使用以来,该中心受到了社区的广泛欢迎,成为一个充满活力的公共交流场所。除了体育设施,它还为各类文化与体育活动提供平台,举办比赛、节庆与节目,吸引不同社区群体参与。
Since its inauguration, the center has been enthusiastically embraced by the community, becoming an active meeting point. In addition to its sports facilities, it serves as a versatile venue for cultural and athletic events, enabling the organization of tournaments, festivals, and programs that bring together a wide range of community members.
▼充满活力的公共交流场所,an active meeting point©Jaime Navarro
▼充满活力的公共交流场所,an active meeting point©Jaime Navarro
拥有正式棒球场对于拉巴斯居民而言意义重大。无论是专业训练、日常娱乐还是专项活动,体育综合体已成为一个包容且高效的空间,借由体育与文化连接人群,增强社会凝聚力。
The availability of official baseball fields presents a significant opportunity for residents of La Paz. Whether for professional training, casual games, or special events, the Sports Complex has established itself as an inclusive and functional space, designed to strengthen the social fabric through sports and culture.
▼借由体育与文化连接人群,strengthen the social fabric through sports and culture©Jaime Navarro
凭借其丰富的活动与服务,拉巴斯体育综合体有望成为城市公共体育设施的标杆,成为社区融合的关键节点,助力建设更有韧性、更具活力、适宜未来世代生活的城市。
With its wide range of activities and programs, the La Paz Sports Complex aspires to become a benchmark in public sports infrastructure and a key point of convergence for the community, contributing to a more resilient, vibrant, and livable city for future generations.
▼夜景鸟瞰,aerial view at night©Jaime Navarro
▼桥梁模型,bridge model©CCA
▼建筑模型,building model©CCA
▼看台模型,seating area model©CCA
▼场地区位,site location©CCA
▼体育综合体平面图,sports complex plan©CCA
▼桥梁立面图,bridge elevation©CCA
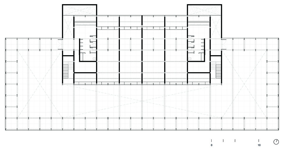
▼多功能建筑一层平面图,Mixed Use Building Ground Floor plan©CCA
▼多功能建筑夹层平面图,Mixed-use building Upper Floor plan©CCA
▼多功能建筑屋顶平面图,Mixed-use building Roof Floor plan©CCA
▼多功能建筑立面图,Mixed-use building Elevation©CCA
▼多功能建筑剖面图,Mixed-use building Section©CCA
▼棒球展亭一层平面图,Baseball Pavilion Ground Floor plan©CCA
▼棒球展亭屋顶平面图,Baseball Pavilion Roof Floor plan©CCA
▼棒球展亭立面图,Baseball Pavilion Elevation©CCA
▼棒球展亭剖面图,Baseball Pavilion Section©CCA
Name:Masterplan & Sports Complex La Paz
Use: Public, Sports, Cultural
Area: 22,727 m²
Location: La Paz, Baja California Sur, México
Status : Built
Year: 2025
Office CCA | Bernardo Quinzaños
Architect: Bernardo Quinzaños
Team: Santiago Vélez, Begoña Manzano, Andrés Suárez, Carlos Molina, Cristian Nieves, Miguel Izaguirre, Sara de la Cabada, André Torres, Abigaíl Zavaleta, Víctor Zúñiga, Pablo Ruiz, Scarlett Díaz
Client: SEDATU, Municipio de La Paz
Builder: HABA, Alan Haro
Photographer: Jaime Navarro
客服
消息
收藏
下载
最近





















































































