查看完整案例

收藏

下载
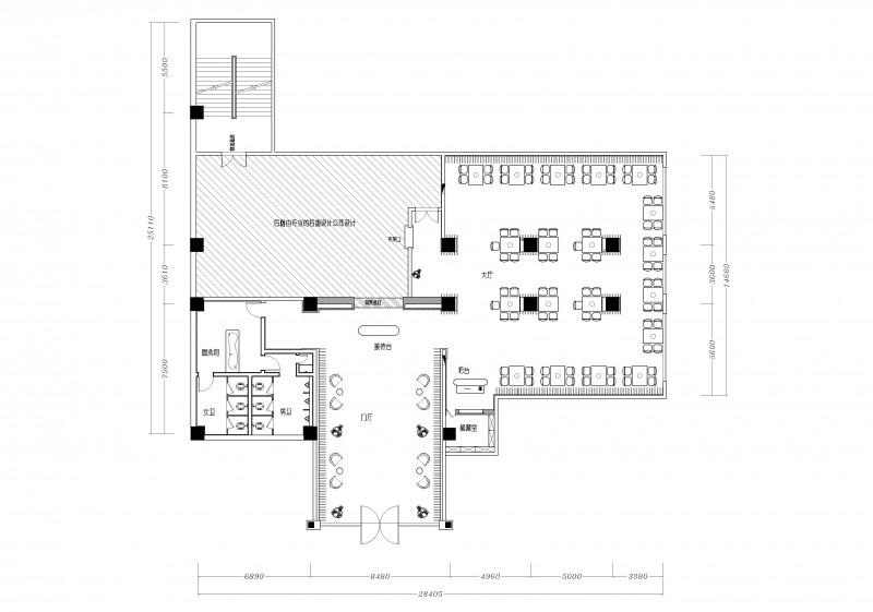
项目名称:攀枝花西餐厅
风格:现代
面积:550平米
项目所在城市:四川» 攀枝花市
主要材料品牌:白玉纹石材中国黑石材木屑集成板不锈钢钢乳胶漆
本案坐落于钢铁之都的攀枝花,面积不大只有500多平米,但最有利的条件是层高有米高。设计师抛弃目前设计中纷繁复杂的元素,造型夸张、简练、用材单纯、色调协调统一。从门厅到就餐大厅的弧形造型采用非常环保的、可回收再利用的木屑集成板,表面压木皮。这些工序均在工厂一次完成,现场安装,没有二次污染,非常环保。而且弧形造型从顶棚自然延伸到墙面,层层叠叠又跌宕起伏,一气呵成。地面采用白玉纹石材铺贴显得干净利落,没有一点拖泥带水的感觉。整个餐厅给人以时尚、优雅、恢宏大气的感觉。
客服
消息
收藏
下载
最近












