查看完整案例

收藏

下载

翻译
Architects:Costa Matoso Arquitetura e Engenharia
Area:85m²
Year:2024
Photographs:Janaína Santoandréa
Manufacturers:ART Barro Socorro,CR Soluções em Esquadrias,Casa Armani Soluções Construtivas,Construtora Modelo - Estruturas Metálicas,DNC Revestimentos e Decoração,Fortin Lajes Bragança Paulista,Madeireira Casarão,Madeireira Ouro Verde,Marcenaria Help Mobily,Marmoraria Pompéia,Marson Lar e Construção,Móveis Redentor,Ouro Verde Comércio de Portas e Janelas,TUBRAX,Tatu Pré-moldados
Lead Architect:Pedro Henrique da Costa Matoso
Category:Houses
Design Team:Millena Vaz de Lima Zanesco, Amanda de Souza Pinto
Engineering:Francine Pereira de Almeida, Andressa de Oliveira Alves, Romeu Ribeiro Zulian, Sheila Maria Cavalari, João Eduardo da Costa Matoso
Construction Assistant:Richard Marques Caboclo
Manager:Poliana Angélica de Souza
Finances:Caroline Valota Mischtschenko
Supplies:Luiz Guilherme Rovesta Del Buono
Structural Engineering:Galtier Fernandes de Paula
Electrical And Hydraulic:Willian da Silva Gregório
Country:Brazil
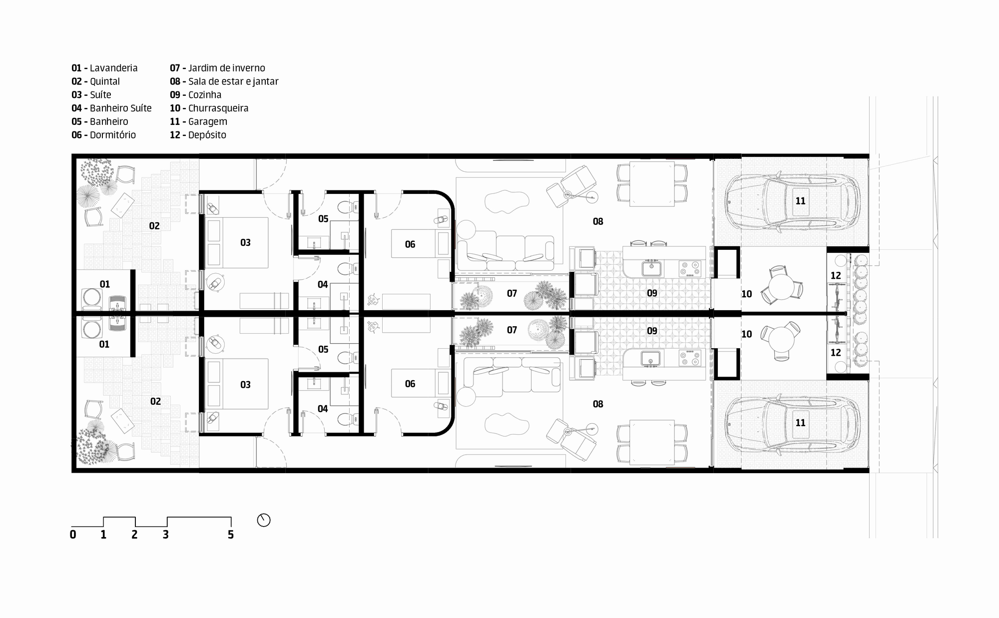
Text description provided by the architects. The Casas Boêmia are semi-detached homes born from the idea that a small house can also provide a comfortable space for family and friends to gather. Since these homes are built on a half-lot—measuring 5 x 25 meters—we focused on enhancing common areas. With a total built area of 85m², we managed to create a spacious living room integrated with the dining area and kitchen. We opted to include a single parking space, which allowed for the creation of a wooden deck with an outdoor barbecue area. The key feature of the project was placing the barbecue adjacent to the kitchen counter, separated by a sliding door that disappears into the side of the structure, eliminating the need for duplicate sinks and freezers.
Another important feature was the inclusion of a storage area beneath the front setback’s overhang, designed to hold a bicycle and other equipment. Since the gas supply was also placed in this space, the perforated brick cobogó reappears on the façade, ensuring proper ventilation.
Finally, we utilized the backyard to position a covered laundry area. The space includes an open area for drying clothes on sunny days and a grassy section, ideal for those who want a pet.
Our goal was to create an industrial-style architecture with the warmth of a family home. We incorporated colors throughout the project, from furniture to walls and flooring. The kitchen floor is a mosaic in shades of blue and white, just like its block wall, which was painted blue. This same blue appears again in the first bedroom, while the master suite features a terracotta tone. In this project, we combined two types of masonry: exposed structural concrete blocks and solid ceramic bricks. We chose a trellised panel slab, whose installation practicality and aesthetics were key factors. This choice also allowed most of the house to be delivered without a ceiling. All windows and doors are black aluminum, with upper pivoting transoms to promote cross-ventilation. Additionally, the entire slab was waterproofed and designed with a slight slope to direct drainage toward the embedded gutters.
To enhance the sense of space, we cut out a 3.60 x 3.60m section of the slab in front of the winter garden, raising the ceiling height and applying ceramic tiles with a wooden lining. Two triangular windows were added to this section, allowing abundant natural light to enter the home’s interior.
Finally, we utilized the backyard to position a covered laundry area. The space includes an open area for drying clothes on sunny days and a grassy section, ideal for those who want a pet.
Project gallery
客服
消息
收藏
下载
最近











































