查看完整案例

收藏

下载

翻译
Project: Family Kitchen | Private VillaLocation: Dubai, United Arab EmiratesSoftware used: 3dsmax | Corona renderer | Photoshop | AutoCAD______________________________________________________________________________________________
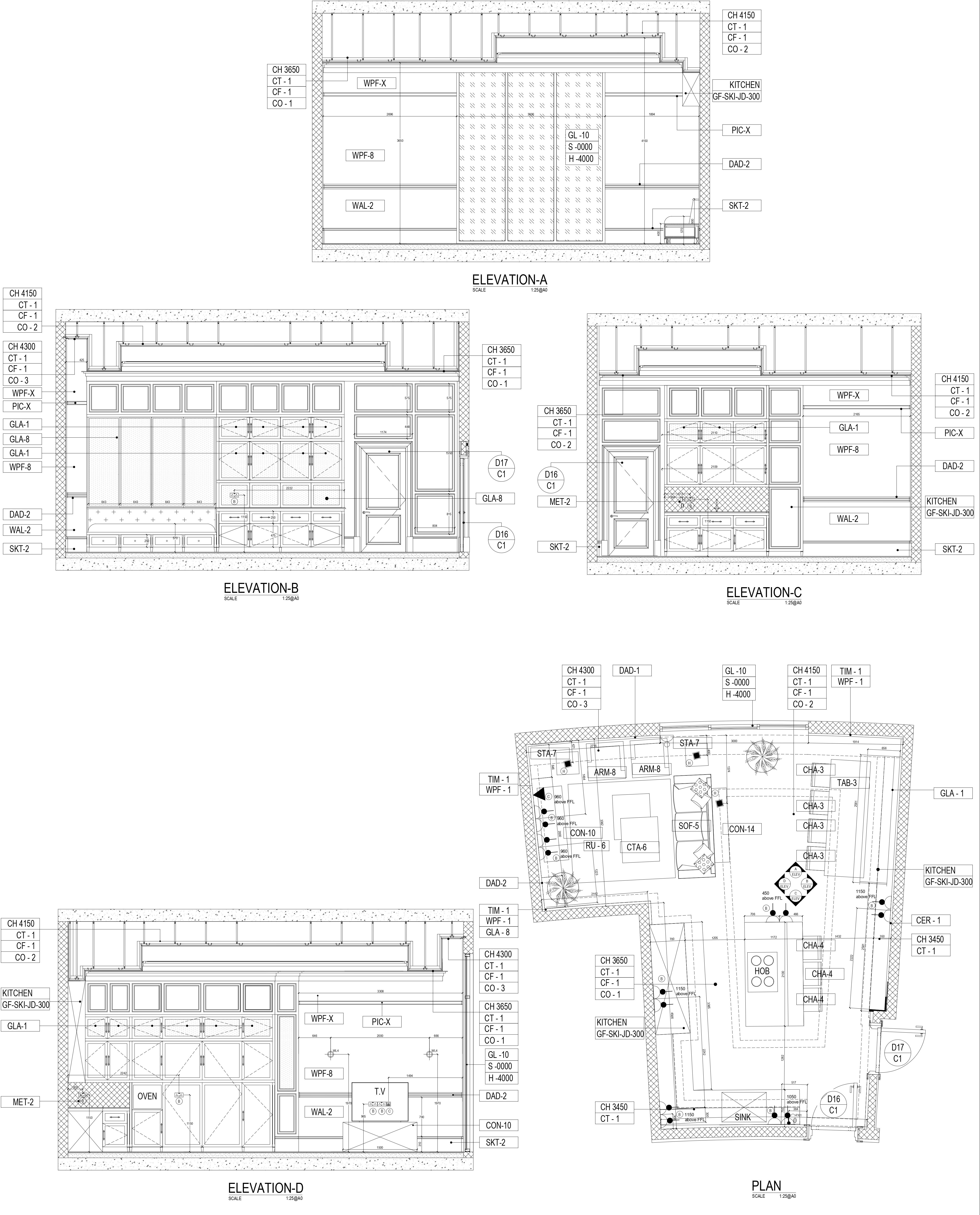
Design Style:The villa should reflect 70% of the Contemporary Arabesque show villa style contemporary with classic detailing and neutral tones. The client likes the kitchen’s functionality and bench seating with storage. Cabinets should be light gray, with an island for seating and storage (no sink). Double sinks are required. The hood should be exposed, decorative, copper, and rounded rectangle in shape. The atmosphere should feel relaxed with natural light, mirrored walls, plants, and neutral furnishings accented with warm cushions.
Finishes:Client prefers the olive green used outside and neutral, muted tones throughout. Corridors and formal areas should have detailed paneling and ceilings like the show villa. Upper levels can have simplified detailing.
Floors:Neutral marble with contrasting borders is preferred. Carpets are disliked. Client prefers timber parquet in rich tones and varied patterns.
Walls:Classic wall detailing with timber/gypsum paneling, marble openings, and carved Mouldings in bathrooms. Doors should match wall paneling. Client is open to subtle Islamic/Arabic/Indian influences. Prefers textured wallpapers in neutral tones (e.g., suede, linen) and dislikes busy patterns like damask. Shallow arches are favored over square ones.
Ceilings:Detailed ceilings with coffered designs, Mouldings, and beams are preferred. Client likes room-to-room ceiling variation, especially barrel-vaulted corridors and gold/brass leaf detailing in the lounge. Formal areas should have maximized ceiling heights.
CONCEPT MOOD BOARD
PERSPECTIVE VIEWS
PLAN AND ELEVATIONS
CABINET DETAIL DRAWINGS
客服
消息
收藏
下载
最近








