查看完整案例

收藏

下载
SEARCHING FOR POETIC LIFE AND EXPERIENCING THE ELEGANCE OF THIS PLACE C H O N G Q I N G J I N M A O P U Y I N J I N K A I
“空间与光线的形态,最终是为了服务于空间中的人。”——贝聿铭
一切空间序列的铺陈、材质肌理的对话、光影氛围的营造,其终极指向,是居住者的感官体验与心灵共鸣。
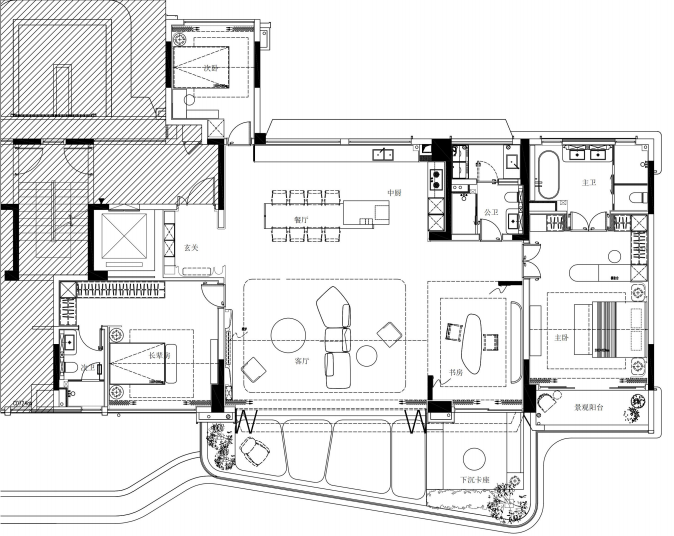
240㎡
写意东方雅 FREEHAND ORIENTAL ELEGANCE
空间以东方美学中“留白与意境”为魂,摒弃繁复雕饰,取法书画的空灵与雅意,以抽象化、艺术化的手法重构生活的形意。设计不止于形,更以“山水入魂,光影成诗”的叙事,让传统雅艺在现代生活中轻盈重生。
此间风雅·境中藏
推门而入,展卷一幅东方雅意。温润的木质与现代的金属相互交织,轻盈的笔触与粗犷的框架对话,启幕空间里的诗情画意,缀以沉稳的铜色背景与跳动的火焰,让归家成为一场从喧嚣到静谧的过渡。
空间似一张温柔的宣纸铺展开来,金属与皮革、石材与绿植,刚与柔、曲与直,写意空间里的诗意山水,极致简化的线条与体块共筑一处静谧场域。
嶙峋的骨架宛如山体,淡雅的印花流动其间,亦刚亦柔完美融合,与后方阳台自然造景相呼应。于此坐拥山水,俯仰间皆是东方雅士的逍遥。
展卷宴席·花鸟间
传统与现代的诗意碰撞,在空间中随处可见,精致与古朴写就当代风雅,在空间中无界流动。茶室以月白色为基调,浅木色格栅如舟楫骨架,一壶茶沸,半窗云流。整个空间洋溢着温馨与艺术气息,墙上的画作和书架上的藏书彰显着品味与修养。
重庆的江湖气韵与唐宋茶禅的侘寂美学,在此煮成一片流动的光阴。
鎏金舒雅·谧境里
设计的美在于以留白盛放细节处的浓墨重彩。
主卧以米色为基调,奢雅中透露出一种气定神闲的闲适。从雅致的绒面到丝绸的光泽,从奢雅的金属到温润的云石,一器一物,一桌一椅,光影之下尽显材质本真之美。
次卧空间是老年人的岁月收藏馆,淡雅的瓷片画浸润着岁月的时光,此间无贵重器物,最珍稀的收藏,是俯仰皆自在的暮年从容。
女孩房的整体色调以粉紫色为主,营造出一种梦幻而甜美氛围。在这里,女孩可以尽情地发挥自己的想象力和创造力,享受属于自己的快乐时光。
240㎡空间平面布置图
205㎡ 艺术会客厅 ART PECEPTION ROOM
以极致简约的黑白为舞台背景,通过精炼的几何线条、先锋的艺术装置、考究的材质对比塑造强烈的现代艺术氛围。紫色作为唯一跳色,如同点睛之笔,贯穿空间,既象征艺术的不羁与神秘,又为冷静的空间注入活力与社交温度,激发居住者的交流欲望与艺术共鸣。
流动与静止,自然与艺术,于此完美融合,开启室内静雅的艺术氛围,精致奢雅的器物变为可感知的生活美艺,书写着生活的韵脚,这不是栖所,是艺术现场的第一章。
艺术沙龙·香榭时光
在圆弧形的天花之下,设计师以艺术为幕,聚焦家庭社交,让空间化身流动的时尚沙龙。双面黑色丝绒沙发围合出对话岛屿,打造品酒威士忌及精致下午茶双模式生活场景氛围。
茶几与边几高低错落,两把紫色单椅如音符跃动其间,丝绒、大理石、藤编等不同材质在空间中完美融合。于此,对望窗外苍翠绿意,品一杯红酒,伴着优雅的轻音乐,艺术与酒杯触发一场诗意的对话。
闻香工作室弥漫着优雅与宁静,点点烛光与淡淡香气交织,在这香氛萦绕的私人空间中,她专注于调香创作、沉思冥想,享受生活的精致与美好,同时与挚友分享那份独特的芳香艺术与灵感。
复古餐椅依次排开,清浅花枝点缀其间,金属烛台烘托出雅艺氛围。宾客落座,中西双厨开启缤纷日常,享受一餐一食的美味,更享受一场艺术盛宴。
私享艺室·美好和鸣
主卧床头曲线纹理自由生长,倒挂的艺术灯像一颗颗种子悬于素色软包之上,艺术品杯盏倏然点破静谧。温馨舒适的私密空间中,享受着难得的闲暇时光,当艺术退为背景,身体方是空间主角。
梳妆台延续书房调香主题,睡前挑选一瓶心仪的香薰进入美好的睡梦。
柔和的光影、清雅的配色,温润包容的材质与色彩,为长者营造绝对放松、安然入梦的休憩空间。每一处设计,皆是对岁月静好的温柔注解,让日常起居成为颐养身心的美好仪式。
潮玩之家的男孩房里,跳跃的色彩、充满童趣的潮玩艺术品,每一个细节都展现出了对现代艺术和科技的热爱与追求,让空间充满了无限的可能和魅力。
205㎡空间平面布置图
项目名称 | 金茂璞印金开样板间
特别鸣谢 | 金茂成渝
项目地点 | 重庆渝北区金开大道
项目面积 | 240㎡、205㎡
软装设计 | SRD DESIGN 赛瑞迪普
设计团队 | 盛永娜、李玥
艺术机构 | SRD-TAWO 他物
摄影机构 | 麒文摄影
客服
消息
收藏
下载
最近














































