查看完整案例

收藏

下载
让设计回归本质,将居者的理想、情怀与意识融于一体,提炼出自由、舒适与柔和的诗性,
用极简的设计语言与材质,赋予空间更加鲜明的性格,连接内与外、人与自然、人与人,突破界限,巧妙融合生境。
不同于传统意义的“起居”功能,客厅更像一个融合万象、突破界限的精神剧场。
不对称的茶几块面、低座沙发,在体块和肌理中重塑生活的感官张力。
一个有设计思考的家,能够从细枝末节感受到艺术的情怀,不必过多的点缀,品质简约的现代艺术感油然而生。
如何让空间彰显艺术感?器物是最好的答案。理性对位情感,秩序回响共鸣;物件与空间皆有温度,在日常三餐间缓缓酝酿生活的尊重与仪式。
餐厨空间有序的布局中,以清晰的色彩为界。红色营造烟火浪漫气息,葱茏绿植则赋予空间以轻盈感。
生活的哲学蕴藏着审美气度,在不规则与规则的线条中,空间情绪起伏不定,自然与艺术融合进居家的生活日常中。
晨光间飞鸟轻啼脆鸣,夜幕下酒盏微碰的叮铃……
主卧内放置的诗意之物,让整个空间萦绕着悠然的气氛。沉溺于床品细腻柔顺的触感,感知生活意趣。
床搭、画作、花艺构成层层递进的关系,色彩上延续温润米白,材质上追求肌理冲突,是柔与刚,是藏与显。
温润的家具线条优雅,彰显着不艺术凡品味。柔和光线酒落,交织出静谧而富有格调的氛围,
宛如时光在此放慢脚步,光韵轻漾,如岁月低语,沉稳而内敛,舒展艺术绮梦。
时光慢淌,静享惬意酣眠
童真不饰雕琢,自由构建幻想世界
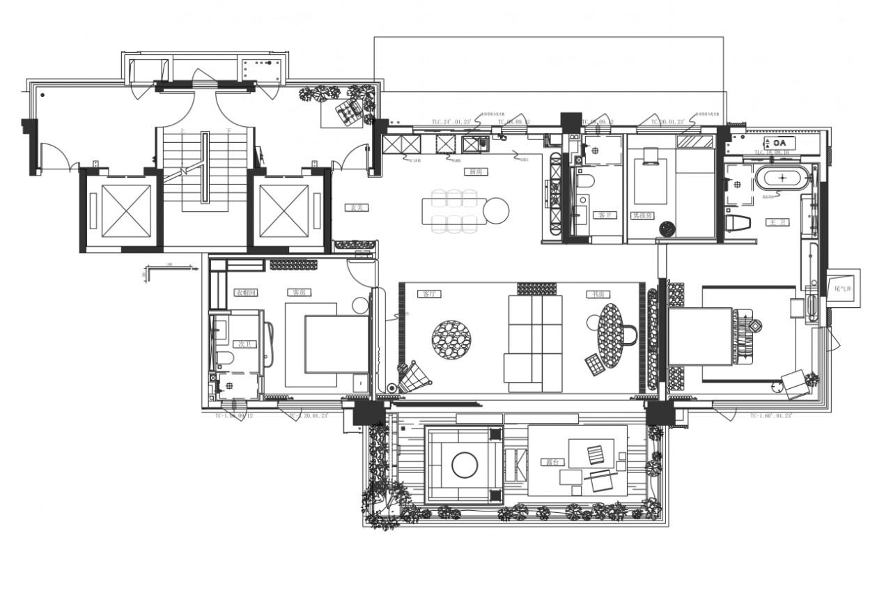
项目全名:龙湖 · 凤栖湖畔
项目地址:中国 重庆
软装设计:元禾大千
硬装设计:大森设计
空间面积:143㎡
甲方单位:重庆科学城高新置业有限公司
代建单位:成都须弥云图建筑设计有限公司
代建团队:侯佳男、邓旭、李南楠、邱月
摄影团队:冷風。
客服
消息
收藏
下载
最近
























