查看完整案例

收藏

下载
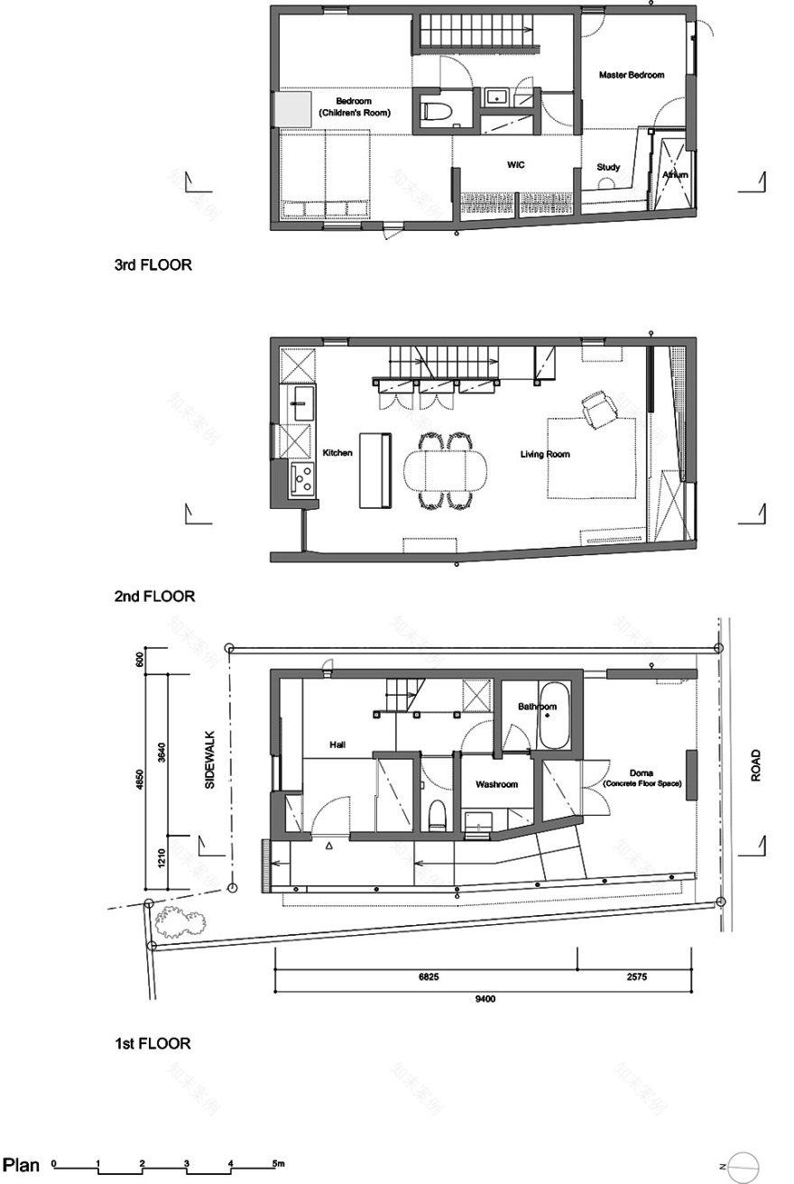
这座住宅位于距离东京市中心不远的一个居民区内。场地极为紧凑,总面积仅有 70 平方米,开间仅 6 米。我们为一个四口之家在此设计了一栋三层木结构住宅,总建筑面积为 117 平方米。
This house is located in a residential neighborhood not far from central Tokyo. On an extremely compact 70 square meter plot with a width of only 6 meters, we designed a three-story wooden home with a total floor area of 117 square meters for a family of four.
▼住宅鸟瞰,aerial view of the house©Hiroshi Tanigawa
▼住宅鸟瞰,aerial view of the house©Hiroshi Tanigawa
▼住宅外观,exterior of the house©Hiroshi Tanigawa
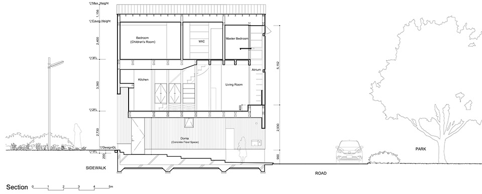
住宅最具标志性的特征之一,是一扇高挑的垂直窗户,它将室内空间向街道与远处的公园敞开。在这扇垂直窗内,一个狭长的中庭连接着二层的起居室与三层的卧室。中庭外围设置了一扇可移动的大型障子(日本传统房屋中常见的纸糊木框隔断结构)屏风,形成一层柔和的空气隔层。与传统障子不同,这里所使用的高大屏风采用了坚固而富有张力的材料制成,位置可以灵活调节,使室内与室外之间的空间边界能够根据需要自由切换。
One of the defining features of the house is a tall, vertical window that opens the home to the street and the park beyond. Within this vertical window, a narrow atrium connects the second- floor living room to the third-floor bedrooms. The atrium is softly enclosed with a large movable shoji screen which creates a layer of air.
Unlike traditional shoji screens, the tall screens used here are made from sturdy materials and tension material. The position can be freely adjusted, allowing the spatial boundary between inside and outside to shift as needed.
▼屏风形成的柔和隔断,large movable shoji screen creates a layer of air©Hiroshi Tanigawa
▼使室内与室外之间的空间边界能够根据需要自由切换,
allowing the spatial boundary between inside and outside to shift as needed©Hiroshi Tanigawa
光线、风、声音与视线在这个中庭空间中像气球般舒展开来,轻柔地渗透进内外两个世界。我们将这些空间的“留白”称为 “深口袋”。乍一看,这些“深口袋”似乎是无用的空隙,但在东京这样密集的住宅区,它们扮演着至关重要的角色。常规的薄玻璃窗往往让室内外的距离变得过于接近,带来身体和心理上的不适。而通过在窗户中加入如“口袋”般的空间层次,这种设计模糊了私人与公共的边界,使其成为一个更为细腻、可变的场所。
Light, wind, sound, and views expand like a balloon within the atrium, gently permeating both the interior and exterior spaces. We call these spatial margins, “Deep Pockets.”
At first glance, the Deep Pocket may appear purposeless, but it plays a vital role in dense residential areas, where conventional windows with thin glazing can create an uncomfortable closeness between inside and outside, both physically and psychologically. By adding a layer of depth to the window like a pocket, this space blurs the boundary between private and public, transforming it into a more nuanced place.
▼模糊边界的“留白”,spatial margins which blurs the boundary in between©Hiroshi Tanigawa
在入口处,我们设置了一个横向的“口袋”空间,如同一条小巷。它不同于常规住宅那样用一道正门明确划分内外,这一“口袋”连接着地块两侧的街道,门的位置被设于这个“中间地带”内,使前后之间的界限更显模糊,也为出入带来一种更柔和的过渡。
At the entrance, a horizontal Pocket is placed like an alley-like passage. Rather than having a single front door that sharply divides inside and outside, this pocket connects the two streets on either side of the plot. By placing the door within this in-between space, the boundary between front and back becomes more ambiguous, allowing for a gentler transition.
▼入口横向的“口袋”空间,a horizontal Pocket©Hiroshi Tanigawa
▼楼梯,staircase©Hiroshi Tanigawa
▼楼梯细部,staircase detail©Hiroshi Tanigawa
▼二层起居室,living room on the first floor©Hiroshi Tanigawa
▼厨房,kitchen©Hiroshi Tanigawa
东京是一座极度高密度的城市,要在此创造与邻居之间足够的间距极具挑战。在寸土寸金的城市中,优先考虑建筑体量似乎成为一种理所当然的选择。但即使是面积宽敞的房间,如果其边界过于紧迫,也可能令人感到压抑。
Tokyo is a hyper-dense urban environment, where creating sufficient distance from neighboring buildings is a challenge. To maximize the value of limited land, it’s natural to prioritize volume. But even a generously sized room can feel suffocating if its edges feel constrained.
▼卧室空间,bedroom©Hiroshi Tanigawa
▼丛卧室俯视厨房,overlook the kitchen from the bedroom©Hiroshi Tanigawa
▼书房一角,study room©Hiroshi Tanigawa
▼书房一角,study room©Hiroshi Tanigawa
▼书房,study room©Timothy Latim
▼书房里的“留白”,the margin space in the study room©Hiroshi Tanigawa
▼书房,study room©Hiroshi Tanigawa
▼丛窗户看向室外,from interior space to the exterior ©Timothy Latim
“深口袋”空间提供了一种“余白”,一种细腻的缓冲层,使居住者能感受到家的每一个角落都属于他们。这些空间不仅在物理层面上提供弹性,也支撑起家的情感与空间的宽容度。
The Deep Pockets provide a ‘margin’, a subtle buffer that helps the family feel that every corner of the home belongs to them. They support the emotional and spatial tolerance of the house.
▼夜景,night view©Hiroshi Tanigawa
▼结构爆炸图,structure axonometric©TERRAIN architects
▼平面图,plan©TERRAIN architects
▼剖面图,section©TERRAIN architects
▼细部,detail©TERRAIN architects
Project Name: House in Itabashi
Completion Year: 2023
Gross Built Area: 112.40m²
Project Location: Itabashi, Tokyo, Japan
Building Function: House
Architects: TERRAIN architects, Zu architects
Lead Architects: Ikko Kobayashi, Fumi Kashimura, Furia Ebisawa (TERRAIN architects) Kei Machida (Zu architects)
Structural Design: Yoshinori Suzuki, Hinako Igarashi (TECTONICA)
Contractors: Miki Kensetsu Corporation
Structure: Primary wooden, partially steel
Number of Floors: 3 floors above ground
Maximum Height: 9,696 mm
Site Area: 70.0m²
Building Coverage Area: 44.79㎡ (Building Coverage Ratio: 63.98%, Allowable: 70%)
Total Floor Area: 112.40m² (Floor Area Ratio: 160.57%, Allowable: 240%)
Floor Area by Floor: 1st Floor = 24.5m² 2nd Floor = 44.79 m² 3rd Floor = 43.11 m²
Design Period: April 2022 – May 2023
Construction Period: May 2023 – December 2023
Photo Credits: Hiroshi Tanigawa (ToLoLo studio) Timothy Latim
客服
消息
收藏
下载
最近









































