查看完整案例

收藏

下载
SCOPE Architekten于德国慕尼黑近郊的Garching完成了 SAP Labs 慕尼黑园区的新总部。作为当代办公建筑的典范之作,该项目以前瞻性的空间理念响应加兴“科学城”的未来构想——这一片区已成为欧洲最具研究与教学产能的科研枢纽之一。新总部总建筑面积达25,500平方米,标志着SAP与慕尼黑工业大学(TUM)长期科研合作的重要一步。约 600 名 SAP 员工与 120 位来自 TUM 的研究人员和教师将在此共同开展面向可持续发展、智慧交通、工业4.0和未来商业等领域的创新探索。
SCOPE Architekten have completed the new SAP Labs Munich in Garching near Munich. The campus building sets new standards for contemporary office architecture and embodies the future vision of Science City Garching, one of the most productive centers for research and teaching in Europe. The new building marks a significant step in the long - term research partnership between SAP and the Technical University of Munich (TUM): around 600 employees of the software company and 120 researchers and lecturers from TUM work together on pioneering projects in the fields of sustainability, mobility, Industry 4.0, and commerce within a total area of 25,500 square meters.
▼园区概览,overview of the campus©︎Zooey Braun
与城市愿景协奏的建筑构想
Architecture in Harmony with the Urban Vision
SAP Labs 慕尼黑园区的城市规划理念基于一个灵活而稳健的总体框架,旨在将加兴科学城转化为一个紧密连接、充满活力的科研社区。整个科学城占地约180公顷,被划分为 12个研究集群,每个集群围绕一个邻里广场展开,共同构成一条贯穿全区的“科学环道(Science Loop)”。SAP 园区作为这一环道的起点,以双翼构型呈现,与机械工程、计算机科学与数学学院之间的绿地共同勾勒出科学城的核心枢纽,兼具功能复合与社交氛围,成为师生交流、跨界合作的理想场所。
The urban concept of the SAP Labs Munich Campus is based on a flexible and robust masterplan that transforms Science City Garching into a connected and vibrant research environment. The expansive 180-hectare campus comprises 12 research clusters, each forming its own neighborhood square and contributing to a central “loop” that links all areas of the campus. As the centerpiece of Science City Garching, it offers a variety of uses and creates diverse atmospheres for social interaction and communication. Comprising two wings, it forms the “Science Loop” together with the green spaces between the faculties of Mechanical Engineering, Computer Science, and Mathematics.
▼建筑外观,exterior of the building©︎Zooey Braun
微缩校园:以学术理想为设计核心
Campus in Miniature: The Academic Ideal as Central Design Principle
SAP 园区建筑以“科学环道”的门户身份出现,其设计意在将城市总体规划的理念凝练为具体的建筑语言。项目仿若“微型校园”,学术理想成为其设计核心。建筑由三座高低错落的体量围绕中央中庭组织而成,构建出和谐有序的空间群落。这一布局在建筑内部与城市语境中形成了清晰的层次过渡,串联起内外空间,以及公共与半公共区域。
The SAP Labs Munich Campus marks the starting point of the “Science Loop” and serves as the gateway to Science City Garching. The design aims to translate the ideals of the master plan for urban organization into a coherent architectural concept. The building functions as a “small-scale campus,” with the academic ideal becoming the central guiding principle of the design: three building volumes rise in staggered heights, forming a harmonious architectural cluster arranged around a central atrium. This composition creates a differentiated structure of interlocking built forms and open spaces. Both within the building and in the urban context, a controlled, layered transition is established — between inside and outside, as well as between public and semi-public zones.
▼围绕中央中庭组织而成,a harmonious architectural cluster arranged around a central atrium©︎Zooey Braun
▼围绕中央中庭组织而成,a harmonious architectural cluster arranged around a central atrium©︎Zooey Braun
立面设计借鉴古典柱式语言,以银色阳极氧化金属构件塑造出巨柱序列,清晰区分不同楼层与使用功能。底层与两层停车区节奏宽阔,中部楼层节奏更为细致,以呼应TUM与 SAP的不同使用需求;而最上方由SAP独立使用的楼层则采用更密集的节奏,整体比例更为精致,建筑形象和谐统一。立面自下而上的层级关系与突出处理的屋顶共同构成精致的立面体系,使建筑如同一个有机完整的建筑体。
The façade design references classical archetypes by articulating the three volumes with a colossal order of silver-anodized lightweight metal pilasters, structured according to function and number of stories. The ground floor and the two-story parking deck are emphasized by a coarser rhythm of pilasters, while the floors above are more finely articulated to differentiate the uses by TUM and the software company. The uppermost levels, used exclusively by SAP, are even more finely structured, lending the building balanced proportions and a harmonious overall appearance. This hierarchy — along with the accentuated attic — results in a proportionally refined façade that allows the building to appear as a cohesive architectural ensemble.
▼巨柱序列区分不同楼层与使用功能,a colossal order of pilasters structured according to function and number of stories©︎Zooey Braun
简约结构与可持续策略:为未来预留灵活空间
Sustainable and Versatile: A “Simple” Construction for Flexible Structures
建筑设计采用统一模数,确保高灵活性,回应当代办公空间对多功能与适应性日益增长的需求。例如,开放式立体停车楼在结构上可被改造为办公区域;中间楼板可拆除,部分楼层亦可开设采光天井。
The underlying grid also ensures a high degree of flexibility in use. The building’s conceptual design responds to increased demands for adaptable, multifunctional structures in contemporary architecture. The open parking garage, for example, is designed to allow future conversion into office space. The intermediate floor is removable, and lightwells can be created using demountable ceiling elements.
▼大型阶梯会议室,Large Staircase Meeting Room©︎Zooey Braun
▼大型阶梯会议室,Large Staircase Meeting Room©︎Zooey Braun
整个建筑贯彻“简约建构”原则,体现“再利用、减量化、可回收”的可持续理念。所用材料尽量保持单一属性,避免过度装修,为可持续使用和结构改造提供坚实基础。
This concept of “simple” construction runs throughout the entire building and follows the principle of Reuse, Reduce, Recycle. By using materials that are as homogeneous as possible and avoiding additional finishing layers, the design enables both sustainable construction and the basis for multi- functional use.
▼休息区,Leisure space©︎Zooey Braun
▼容纳多种协作与交流场景,accommodating various communicative and collaborative uses©︎Zooey Braun
开放中庭:建筑的“活力广场”
Open Atrium: The Building’s Vibrant “Marketplace”
步入底层空间,访客即进入一个通高五层、光线充盈的中庭空间,整体高度达 21 米,如同一个流动且富有层次的公共界面。中庭作为 SAP、TUM与公众之间的交流枢纽,汇集了 Vital Bar、阶梯式讲堂、SAP 展示区等多个开放功能。各层空间与廊桥穿插交错,容纳多种协作与交流场景。中庭的活力感不仅凸显建筑的社交属性,也传递出其开放而学术化的氛围。
Upon entering the ground floor, visitors are greeted by a five-story open space perceived as a complex spatial continuum. The light-filled, 21-meter-high atrium serves as an interface between the company, TUM, and the public. It is surrounded by public functions such as the Vital Bar, the auditorium, and an SAP experience area. On each level, galleries and spatial elements project into the atrium, accommodating various communicative and collaborative uses. As a shared center, the atrium brings a sense of vitality to the building, highlighting both its communicative and academic character.
▼光线充盈的中庭空间,the light-filled atrium space©︎Zooey Braun
▼流动且富有层次的公共界面,a complex spatial continuum.©︎Zooey Braun
中庭内的混凝土立柱与金属栏杆延续了立面的构造逻辑,纤细柱网支撑着由预制混凝土构成的屋顶,使空间呈现出近乎神圣的品质。地面采用清水混凝土与水磨石铺设,其肌理呼应顶部格构吊顶结构,营造出类似“城市广场”的多功能场域,激活空间的公共性。
The structural articulation of the façades and the building’s load-bearing system also defines its interior. Vertical pilasters of exposed concrete structure the floors, while metal balustrades echo the same motif. The roof, made of slender precast concrete elements and supported by delicate columns, lends the space an almost sacred quality. The atrium floor, structured with exposed concrete and terrazzo surfaces, visually references the coffered concrete ceiling above—evoking the character of a public square brought to life through its multifunctional and accessible use.
▼中庭内的混凝土立柱,vertical pilasters of exposed concrete structure©︎Zooey Braun
中庭正对主入口的一侧设有宽阔台阶式楼梯,与一层开放走廊相连,形成交流枢纽,通往 SAP、TUM各功能区及食堂。主建筑的核心步行动线由此开始,一座醒目的螺旋楼梯成为空间亮点。
The first floor is accessed directly from the atrium via a wide open staircase with inviting seating steps. Spanning almost the full width of the atrium opposite the main entrance, the staircase leads to an open gallery that acts as a hub for communication and interaction. From there, one moves seamlessly into the internal areas of the soft- ware company, TUM, and the canteen. This is also where the central pedestrian circula- tion of the main building begins, marked by an impressive spiral staircase.
▼宽阔台阶式楼梯,a wide open staircase©︎Zooey Braun
▼宽阔台阶式楼梯,a wide open staircase©︎Zooey Braun
其锈红色外观在蓝灰主色调的空间中格外抢眼,象征“建筑之脊”,串联起各层协作与交流区域。此楼梯也成为 SAP 与 TUM 团队交汇与碰撞的“社交节点”。
This architectural highlight—rendered in a contrasting rust red that stands out against the otherwise subtle blue interior—is a defining element of the concept. Like a spine, the staircase connects all communicative and collaborative zones of the building in one central location. Here, networking areas and collaboration spaces shared by SAP and TUM converge—transforming the staircase into a meeting point for exchange, interaction, and communication.
▼醒目的螺旋楼梯成为空间亮点,an impressive spiral staircase©︎Zooey Braun
活力办公场域:协作与专注并重
Lively and invigorating: Flexible Work Environments for Collaboration and Focus
SAP Labs园区提供约580个SAP办公席位与约120个TUM席位,分布在一至三层,并围绕中央中庭有序布局。空间支持多样化使用需求,包括专注工作、团队协作及混合办公模式。配备灵活的会议室系统与创新协作区。位于一层的食堂可容纳260人,不仅连接中庭与屋顶露台,也在非用餐时段提供多样座位与洽谈空间。大型就餐区可灵活分隔,用于举办演讲或团队会议。三层设有SAP专属的Work Café,为创意交流提供轻松环境,同时具备多功能使用潜力。
The modern office areas, organized into team spaces, offer around 580 work- stations for SAP and approximately 120 for TUM. Spread across the first to third floors and arranged around the central atrium, these spaces are designed to meet users’ diverse needs for focused, communicative, and collaborative work. Future-oriented meeting rooms, specially designed for hybrid work models, complement these areas. The cafeteria with 260 seats is located on the first floor and connects the atrium with the rooftop terrace. Various seating options and booths offer space for different needs—even outside of mealtimes. The large dining hall can also be flexibly divided to host presentations and team meetings. The third floor houses the SAP-exclusive Work Café, offering a space for creative exchange in a relaxed atmosphere and can also be used multifunctionally.
▼空间支持多样化使用需求,spaces are designed to meet users’ diverse needs for focused©︎Zooey Braun
▼支持灵活办公的空间,Space to support flexible working ©︎Zooey Braun
▼餐厅区域,dining hall©︎Zooey Braun
▼就餐区可灵活分隔用于会议,large dining hall can also be flexibly divided to host presentations and team meetings©︎Zooey Braun
▼为创意交流提供轻松环境,offering a space for creative exchange in a relaxed atmosphere©︎Zooey Braun
▼夜景,night view©︎Zooey Braun
▼场地平面,site plan©︎SCOPE Architekten
▼一层平面,ground floor plan©︎SCOPE Architekten
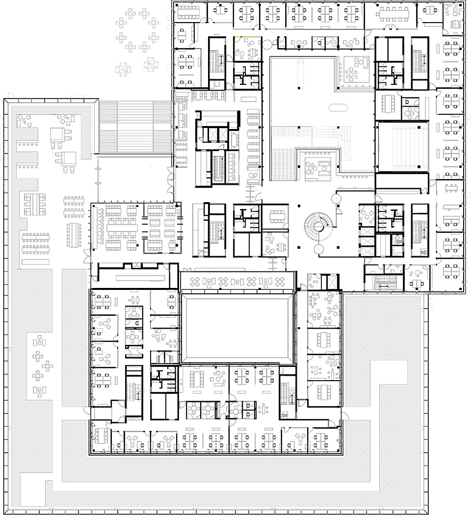
▼办公层平面,office floor plan©︎SCOPE Architekten
▼办公层平面,office floor plan©︎SCOPE Architekten
▼剖面,section©︎SCOPE Architekten
Location:Friedrich-Ludwig-Bauer-Straße 85748 Garching
Client:SAP SE
Planning Start:10.2019
Completion:06.2024
Area:25.500 Quadratmeter (Nrf)
Planning:SCOPE Architekten
Project :Mike Müller
Management:Patricia Vlahovic-Reichelt
Team:Peggy Rottloff Juan Gutiérrez Beltrán Dijana Todorovic Anna Mergenthaler Julia Schmitz Yuliya Clare Nikolai Hanke Mathis Weymann Thanh Tien Riess
Photography:Zooey Braun, Stuttgart
客服
消息
收藏
下载
最近































































