查看完整案例

收藏

下载
SEARCHING FOR POETIC LIFE AND EXPERIENCING THE ELEGANCE OF THIS PLACE
C H O N G Q I N G J I N M A O P U Y I N J I N K A I
“空间与光线的形态,最终是为了服务于空间中的人。”——贝聿铭
一切空间序列的铺陈、材质肌理的对话、光影氛围的营造,其终极指向,是居住者的感官体验与心灵共鸣。
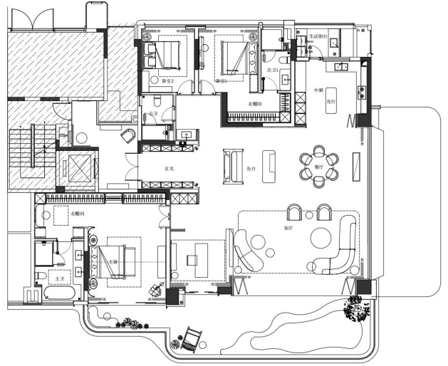
240㎡
写意东方雅 FREEHAND ORIENTAL ELEGANCE
空间以东方美学中“留白与意境”为魂,摒弃繁复雕饰,取法书画的空灵与雅意,以抽象化、艺术化的手法重构生活的形意。设计不止于形,更以“山水入魂,光影成诗”的叙事,让传统雅艺在现代生活中轻盈重生。
此间风雅·境中藏
推门而入,展卷一幅东方雅意。温润的木质与现代的金属相互交织,轻盈的笔触与粗犷的框架对话,启幕空间里的诗情画意,缀以沉稳的铜色背景与跳动的火焰,让归家成为一场从喧嚣到静谧的过渡。
空间似一张温柔的宣纸铺展开来,金属与皮革、石材与绿植,刚与柔、曲与直,写意空间里的诗意山水,极致简化的线条与体块共筑一处静谧场域。
嶙峋的骨架宛如山体,淡雅的印花流动其间,亦刚亦柔完美融合,与后方阳台自然造景相呼应。于此坐拥山水,俯仰间皆是东方雅士的逍遥。
展卷宴席·花鸟间
传统与现代的诗意碰撞,在空间中随处可见,精致与古朴写就当代风雅,在空间中无界流动。茶室以月白色为基调,浅木色格栅如舟楫骨架,一壶茶沸,半窗云流。整个空间洋溢着温馨与艺术气息,墙上的画作和书架上的藏书彰显着品味与修养。
重庆的江湖气韵与唐宋茶禅的侘寂美学,在此煮成一片流动的光阴。
鎏金舒雅·谧境里
设计的美在于以留白盛放细节处的浓墨重彩。主卧以米色为基调,奢雅中透露出一种气定神闲的闲适。从雅致的绒面到丝绸的光泽,从奢雅的金属到温润的云石,一器一物,一桌一椅,光影之下尽显材质本真之美。
次卧空间是老年人的岁月收藏馆,淡雅的瓷片画浸润着岁月的时光,此间无贵重器物,最珍稀的收藏,是俯仰皆自在的暮年从容。
女孩房的整体色调以粉紫色为主,营造出一种梦幻而甜美氛围。在这里,女孩可以尽情地发挥自己的想象力和创造力,享受属于自己的快乐时光。
240㎡空间平面布置图
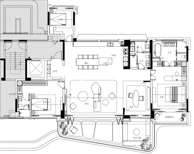
205㎡
艺 术 会 客 厅
ART PECEPTION ROOM
以极致简约的黑白为舞台背景,通过精炼的几何线条、先锋的艺术装置、考究的材质对比塑造强烈的现代艺术氛围。紫色作为唯一跳色,如同点睛之笔,贯穿空间,既象征艺术的不羁与神秘,又为冷静的空间注入活力与社交温度,激发居住者的交流欲望与艺术共鸣。
流动与静止,自然与艺术,于此完美融合,开启室内静雅的艺术氛围,精致奢雅的器物变为可感知的生活美艺,书写着生活的韵脚,这不是栖所,是艺术现场的第一章。
艺术沙龙·香榭时光
在圆弧形的天花之下,设计师以艺术为幕,聚焦家庭社交,让空间化身流动的时尚沙龙。双面黑色丝绒沙发围合出对话岛屿,打造品酒威士忌及精致下午茶双模式生活场景氛围。
茶几与边几高低错落,两把紫色单椅如音符跃动其间,丝绒、大理石、藤编等不同材质在空间中完美融合。于此,对望窗外苍翠绿意,品一杯红酒,伴着优雅的轻音乐,艺术与酒杯触发一场诗意的对话。
闻香工作室弥漫着优雅与宁静,点点烛光与淡淡香气交织,在这香氛萦绕的私人空间中,她专注于调香创作、沉思冥想,享受生活的精致与美好,同时与挚友分享那份独特的芳香艺术与灵感。
复古餐椅依次排开,清浅花枝点缀其间,金属烛台烘托出雅艺氛围。宾客落座,中西双厨开启缤纷日常,享受一餐一食的美味,更享受一场艺术盛宴。
私享艺室·美好和鸣
主卧床头曲线纹理自由生长,倒挂的艺术灯像一颗颗种子悬于素色软包之上,艺术品杯盏倏然点破静谧。温馨舒适的私密空间中,享受着难得的闲暇时光,当艺术退为背景,身体方是空间主角。
梳妆台延续书房调香主题,睡前挑选一瓶心仪的香薰进入美好的睡梦。
柔和的光影、清雅的配色,温润包容的材质与色彩,为长者营造绝对放松、安然入梦的休憩空间。每一处设计,皆是对岁月静好的温柔注解,让日常起居成为颐养身心的美好仪式。
潮玩之家的男孩房里,跳跃的色彩、充满童趣的潮玩艺术品,每一个细节都展现出了对现代艺术和科技的热爱与追求,让空间充满了无限的可能和魅力。
205㎡空间平面布置图
项目名称 | 金茂璞印金开样板间
特别鸣谢 | 金茂成渝
项目地点 | 重庆渝北区金开大道
项目面积 | 240㎡、205㎡
软装设计 | SRD DESIGN 赛瑞迪普
设计团队 | 盛永娜、李玥
艺术机构 | SRD-TAWO 他物
摄影机构 | 麒文摄影
1. 设计理念
核心理念:以“人本主义”为核心,通过空间与光线的叙事性表达,实现居住者感官体验与精神共鸣的双重升华(呼应贝聿铭“空间服务于人”的理念)。
哲学表达:将东方美学中的“留白意境”与现代极简主义结合,创造“无形胜有形”的诗意栖居。
2. 设计风格
风格定位:新东方极简主义 现代艺术先锋派
东方基因:山水意境、留白美学、天然材质(木/石/陶)、书法抽象化表达。
现代演绎:几何切割、先锋艺术装置、材质对比(金属/皮革/玻璃)、光影戏剧化。
3. 设计主题
主旋律:“山水入魂,光影成诗”
自然意象:以“山体骨架”“流动印花”“自然造景”隐喻传统山水画。
人文意境:通过茶室、香室、艺术沙龙等场景,重构唐宋文人雅集的当代生活范式。
4. 设计元素
核心元素
材质对比:金属冷冽感 vs 木质温润感(如茶室月白基底 深木格栅)。
抽象山水:墙面泼墨质感印花、层叠石材背景墙模拟山峦。
光影魔法:自然光过滤(如主卧纱帘)、线性灯带勾勒形体、烛台营造氛围光。
艺术符号:字画、雕塑、香道器具、潮玩艺术品的多维文化植入。
5. 灵感来源
文化溯源
中国水墨画的“计白当黑”哲学(如240㎡空间大面积留白)。
唐宋文人“隐逸美学”(茶室、主卧的侘寂气质)。
现代启示
贝聿铭“光与空间”的互动理念(如艺术客厅的几何光影)。
国际豪宅的极简生活方式(如重庆首个“社交型艺术客厅”概念)。
6. 设计手法
空间叙事法
240㎡户型:遵循“三进式”动线——玄关(山水序章)→客厅(艺术主场)→卧室(私密栖居)。
205㎡户型:强化“社交属性”,通过双面沙发布局、开放式厨房串联生活场景。
减法美学:剔除冗余装饰,以材质本源之美为核心(如铜色背景墙的纯粹质感)。
7. 空间布局
功能分区
公共区域:艺术客厅(240㎡)/艺术沙龙(205㎡)为社交核心,连接开放式厨房与景观阳台。
私密领域:主卧配备独立衣帽间与卫浴,次卧/女孩房强调个性化需求(如女孩房粉紫色调)。
动线优化:采用“开放式布局 隐形收纳”,最大化空间通透感(如嵌入式柜体设计)。
8. 色彩搭配
主色调
中性色基底:米白/浅灰/深棕(营造沉稳氛围)。
跳色点缀:鎏金(艺术感)、紫红(艺术客厅灵魂色)、粉紫(女孩房活力色)。
自然色融入:绿植、石材纹理引入生态调性,中和冷峻材质的疏离感。
9. 材质分析
自然材质
木质(茶室格栅、床头背景)传递温暖感;
大理石(茶几、地面)强化奢侈质感。
工业材质
金属(灯具、框架)塑造现代感;
玻璃(隔断、柜门)增加空间延伸性。
复合工艺:皮革软包 金属框架、布艺与石材混搭,平衡触觉与视觉舒适度。
10. 灯光设计
层次策略
基础照明:隐藏式灯带提供均匀光线(如走廊、客厅)。
焦点照明:轨道射灯照射艺术品、烛台形成立体光影。
氛围照明:落地灯、台灯柔化空间情绪(如主卧床头暖光)。
自然光利用:大面落地窗引入江景与山色,实现“借景入室”。
11. 艺术陈设装饰
文化符号
书法抽象画、青瓷摆件、铜制香炉(呼应东方美学)。
抽象雕塑、金属装置(强化艺术张力)。
生活美学
茶具套装、香道工具(实用性与观赏性结合)。
潮玩手办、艺术书籍(年轻化表达)。
12. 软装家具
选型逻辑
经典款:意大利设计师品牌单椅(艺术客厅)、低饱和度布艺沙发(耐看性)。
定制款:异形茶几、山水纹样软包(匹配空间主题)。
人体工学:沙发靠背倾斜度、床具软硬度均依据居住者舒适度调试。
13. 工艺细节
收口工艺
木饰面与石材接缝采用45°斜切,消除视觉突兀。
金属边框抛光处理,避免反光刺眼。
定制化设计
主卧床头背景墙嵌入隐藏式灯带,兼顾照明与艺术效果。
衣柜移门采用镜面材质,扩大空间感。
客服
消息
收藏
下载
最近













































