查看完整案例

收藏

下载

翻译
El proyecto Costa Amalfi consiste en el diseño y amueblamiento del departamento de Arianne Heredia,el cual esta ubicado en un condominio en el distrito de San Miguel, el cual se convertirá en su hogar y sera un refugio para el nuevo integrante de la familia.
El requerimiento principal de la cliente es que el espacio se vea amplio,transmita calma y ademas que dentro del proyecto se incluyan cuadros de su bebe y que los mobiliarios sean diseñados.
El estilo Minimalista y Japandi nos ayudo a crear un ambiente mas iluminado y sobre todo que cree la ilusión de amplitud y serenidad mediante las tonalidades en tonos tierra en combinación con el color blanco,se logro un match perfecto.La palabra que se usamos para definir este diseño es "Cultivando sueños"
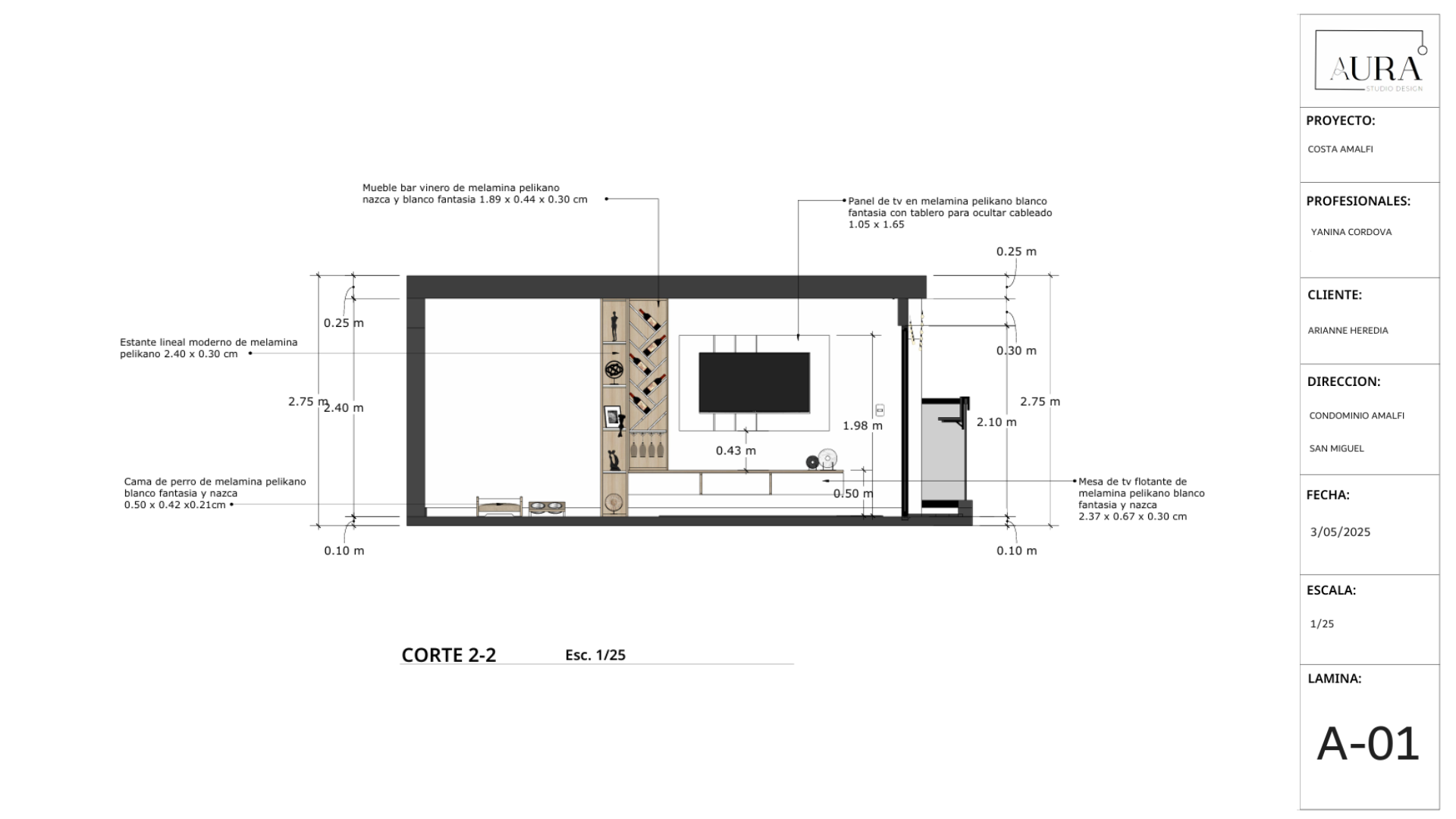
En la sala existe una columna la cual para poder ocultarla se propuso revestirla con la melamina nazca en la marca Pelikano y colocar tiras led a los lados.Se coloco un mueble de tres cuerpos y un puff para mantener una buena circulación en el ambiente.El diseño de los mobiliarios en su mayoría son de lineas rectas para mantener la simpleza y elegancia del espacio,ademas de implementar tonalidades beiges.
En la zona del mueble de entretenimiento se coloco un estante para los vinos en forma de espiga y se acompaño con una columna de repisas para colocar los portarretratos. Ademas se incluyo tiras led para resaltar los detalles y transmitir confort en el espacio.
En el comedor se coloco una mesa con una terminación redondeada en uno de sus lados y en la parte posterior de la pata de la mesa sea hueca debido a que este lado nos servirá para que al momento de colocar la silla de comer del bebe este pueda adaptarse fácilmente y no sea incomodo o también utilizarlo como un espacio para incluir una silla mas para algún invitado.En el tablero de la mesa se aplico piedra sintetizada tipo mármol debido a que es un material impermeable.En la parte del muro se coloco un gran espejo circular para crear la ilusión de continuidad y amplitud del espacio.
En la habitación se coloco un área de makeup donde se incluyo un gran espejo led el cual servirá para su fácil manejo,ademas de colocar un puff con respaldar para la comodidad del usuario.Se propuso una tarima con cajones en la parte inferior de la cama para colocar las sabanas y asi aprovechar el espacio, también se diseño el closet según la necesidad de la cliente.
客服
消息
收藏
下载
最近



















