查看完整案例

收藏

下载

翻译
Architects:Massív Studio
Area:786m²
Year:2025
Photographs:Cesar Bejar
Manufacturers:Smeg,Teka
Category:Houses
Team Lead:Ricardo Allende Gonzalez
Design Team:Juan Pablo Wolffer
Technical Team:Jesús Mendez
Interior Design:Michelle Halley, Isabella Medrano
City:Mazunte
Country:Mexico
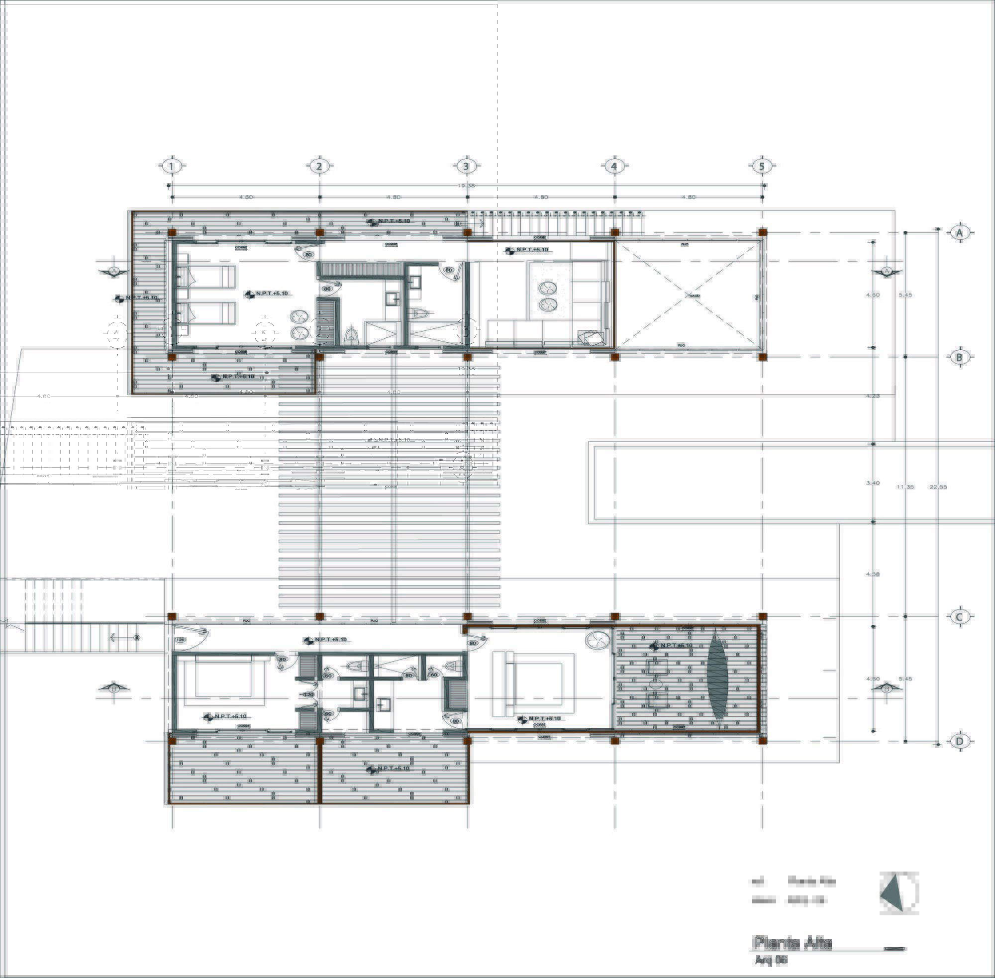
Text description provided by the architects. The house is located in Playa Mermejita on the Oaxacan coast of Mexico. This two-story house was designed through a dialogue between its interior and exterior spaces, creating a strong relationship between the house and its surrounding environment.
The residential project Casa de Mayo was born from an admiration and collaboration with the natural surroundings. The design of the project and its materials were carefully selected with the aim of preserving the essence of the site.
The program consists of 6 bedrooms, a kitchen, a living room, an office, and an extensive palapa that connects the two volumes on its ground floor. The project is generated by two envelopes in perfect harmony through their modulation in each space, creating a synergy between the built space and the structural carpentry that embraces it.
The fundamental concept of Casa de Mayo was the interaction between the spaces that make up the common area on the ground floor and the views generated on the upper floor from its bedrooms.
Project gallery
客服
消息
收藏
下载
最近















