查看完整案例

收藏

下载

翻译
LA CASA DEL PÁRAMO
La casa del páramo, una experiencia que mezcla el sorprendente e intrínseco mundo del páramo con una parte habitual de la vida que es la vivienda. A partir de diferentes estrategias pasivas para el aprovechamiento del ambiente sin dañarlo se logra una mimesis de esta edificación en un entorno fundamental para el mundo y sobre todo para la nación Colombiana.
Se buscan maneras para que a través de ensambles y tejidos se pueda recoger el agua de la niebla y permitir que el ambiente siga teniendo su curso natural. El objetivo principal es no dañar el flujo de vida que aquí se encuentra. También se busca la forma más autentica del material empleado que es la madera para que si se llega a pudrir no dañe con aditivos (concreto, tornillos, entre otros) el ambiente.
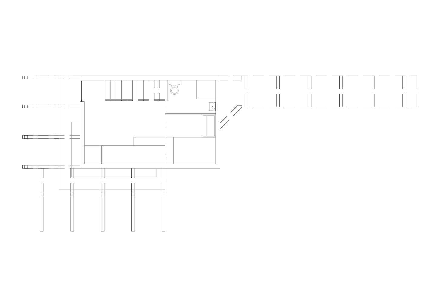
Se emplea un trabajo a doble altura el cual permita tener en el menor espacio posible todas las necesidades básicas de una persona (donde dormir, realizar necesidades y como hacer la comida). Con una zona adicional que sería de investigación ya que esta vivienda es para una investigadora bióloga.
Dada la topografía del lugar se realiza la estructura con pilotes que ayuden a levantar el proyecto también ofreciendo un respeto al suelo del páramo. Por otra parte, la entrada es una pasarela cubierta con un tejido ya mencionado que atrapa el agua del ambiente la cual en la medida de lo posible es utilizada ya que es agua limpia.
客服
消息
收藏
下载
最近












