查看完整案例


收藏

下载
架构师提供的文本描述。迪斯尼亚纳蒂安民族阵线(Didedisar Tienda Department)。不重复,无重复。
Text description provided by the architects. Frente al pedido de diseñar una tienda departamental lo primero en lo que pensamos fue en el recorrido que hace el cliente. Que ve, como se siente, que distancia camina, que paisaje lo rodea. Que elementos hacen que la experiencia sea divertida, no repetitiva, atrayente.
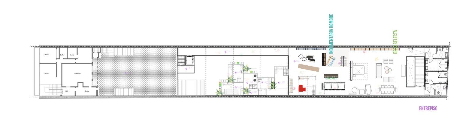
Dado LasDimsiones del Galpón,nuestra intervención funciona como un Paisaje Inside,Haciendo que la循环系统,Don Edificio de 70 m de Largo,con un引物pioy un subsuelo,Sea Fluida y in perder la sorpresa。
Dado las dimensiones del galpón, nuestra intervención funciona como un paisaje interior, haciendo que la circulación dentro de un edificio de 70 m de largo, con un primer piso y un subsuelo, sea fluida y sin perder la sorpresa.
Repensando el objeto-Escalera y Cargándolo de funciones se generóun Sistema de tarimas rodeadadas de gentación que funcionan como or prio al pripio,generando espacios de exhibición de producto,alojando un cafépor Debajo,un depósito,y una Serie de estanterías y bancos en su Recorrido。
Repensando el objeto-escalera y cargándolo de funciones se generó un sistema de tarimas rodeadas de vegetación que funcionan como acceso al primer piso, generando espacios de exhibición de producto, alojando un café por debajo, un depósito, y una serie de estanterías y bancos en su recorrido.
la fachada se trabajócomo una piel metálica y Contina,que envuelve la strucción lience ente y mediante un pliegue genes el assio y la vidriera。
La fachada se trabajó como una piel metálica y continua, que envuelve la construcción existente y mediante un pliegue genera el acceso y la vidriera.
CADA tipo de Producto exigióla creación de un tipo de deitamiento specífico responque de no sola a la mejor manera de exhibición del mismo,Sino a colborar en la comición General de un paseo Diverso y杂géneo。展示品(建筑、走道、宅院、长方体、塔里马斯、Percheros sueltos、先证物、cajas)和各种材料(Madera、Hierro、Chapa、OSB、laqueados、vidrio)。
Cada tipo de producto exigió la creación de un tipo de equipamiento específico que responde no solo a la mejor manera de exhibición del mismo, sino a colaborar en la composición general de un paseo diverso y heterogéneo. Para esto generamos un catálogo extenso de displays (estanterias,walk-ins,mesas,cubos,tarimas,percheros sueltos,probadores,cajas) y con variadas materialidades (madera,hierro,chapa,osb,laqueados,vidrio).
Lossectores de la planta se ajulan a través de esta erie de deamientos discerestos como Islas que generan subespacios,cortan generatspecas y crean atmosferas diferenciadas parlos disdisintos Productos y marcas。(鼓掌)
Los sectores de la planta se articulan a través de esta serie de equipamientos dispuestos como islas que generan subespacios, cortan largas perspectivas y crean atmosferas diferenciadas para los distintos productos y marcas.
Architects Ana Rascovsky Arqs, Irene Joselevich Arq
Location Av. Dorrego 2133, C1414CLD CABA, Argentina
Category Store
Arquitectas autoras Irene Joselevich, Ana Rascovsky
Equipo de proyecto Arq. Fernanda Torres, Arq. Florencia Rissotti, Arq. Inés Toscano, Arq. Ayelén Barreto, Arq. Paula Mariasch, Louise de Sagazan, Carmen de Cordoue, Celia Hofmann, Felicitas Navia
Arquitecta Coordinadora de Proyecto: Florencia Rissotti
Area 1200.0 sqm
Project Year 2015
客服
消息
收藏
下载
最近


























