查看完整案例

收藏

下载
该项目旨在修复并改造一座位于意大利Reggio Emilia、原属历史保护建筑——前Cocchi酒厂建筑群内的谷仓,将其转变为一处住宅空间,建筑面积约为300平方米。
The project involved the restoration and residential conversion of a 300 sqm barn that is part of the historically listed complex of the former Cocchi Liquor Distillery in Reggio Emilia.
▼项目概览,overall of the project © Fabio Mantovani
▼改造后的谷仓,barn after renovation © Fabio Mantovani
▼保留完好的建筑结构,preserved structure © Fabio Mantovani
▼客厅,living room © Fabio Mantovani
设计的核心目标在于凸显这座谷仓原有的空间品质与物理特征:沿边界布置的壁柱和一列中央高柱构成清晰的结构节奏;内部空间高大宽敞,被划分为两个不同标高的区域;屋顶结构则由橡木桁架与梁构成,极具气势。
The main goal of the intervention was to enhance the spatial qualities and physical features of the former Cocchi barn: a clearly legible structural rhythm defined by perimeter pilasters and a row of tall central columns; a large internal volume divided into two areas on different levels; and an impressive roof structure composed of oak trusses and beams.
▼厨房餐厅,kitchen and dining © Fabio Mantovani
▼厨房中岛,kitchen island © Fabio Mantovani
▼厨房中岛上方的线性灯具,linear lamps above the kitchen island © Fabio Mantovani
▼厨房中岛与座位细部,details of the kitchen island and the high stool © Fabio Mantovani
▼餐桌,dining table © Fabio Mantovani
▼餐桌上的独特灯具,unique light feature above the table © Fabio Mantovani
将谷仓转变为居住用途的最大挑战,在于其原有开窗极少,导致自然采光与通风严重不足。同时,建筑外立面属于受保护的城市遗产,不得随意改动。这一限制促使设计团队选择自屋顶介入,通过上方进行主要干预。
The primary challenge in adapting the former barn for residential use was the very limited number of existing openings, resulting in scarce natural light and ventilation. This constraint, combined with the requirement to preserve the composition and morphology of the protected urban façades, led to the decision to intervene mainly from above, working on the building’s roof.
▼客厅电视,living room and TV © Fabio Mantovani
▼台阶座位,steps and seating area © Fabio Mantovani
▼走廊,hallway © Fabio Mantovani
▼圆窗,circular window © Fabio Mantovani
▼中庭,atrium © Fabio Mantovani
▼细部,details © Fabio Mantovani
在卧室与辅助空间中新增了天窗,而项目的象征性核心则是中央天井:它不仅是屋顶上的开口,更是一种附加性的建筑动作——一个通体玻璃围合、充满自然光的体量,围绕其组织起新的居住空间,形成新旧建筑之间的清晰对比。
While new roof windows were introduced for the bedrooms and service areas, the symbolic centerpiece of the project is the central patio: not merely an opening in the roof, but an additive gesture – a large, fully glazed light-filled volume around which the new spaces are organized. This feature clearly defines the contrast between the new and the existing architecture.
▼卧室中央天井与天窗,the central patio and the skylight of the bedroom © Fabio Mantovani
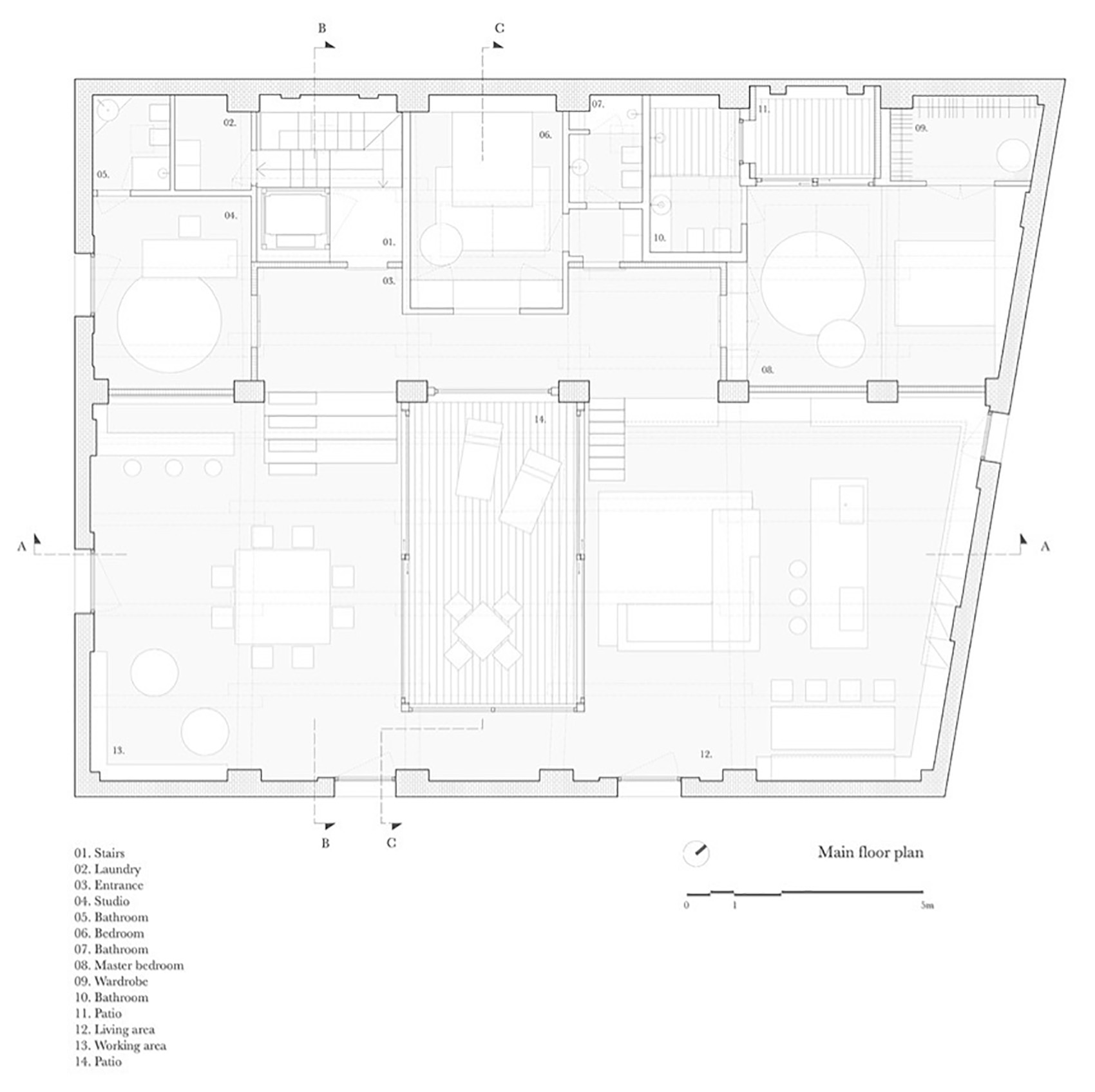
空间布局也遵循对原有结构和空间框架的解读。谷仓原有的体量划分得以保留:楼上层高较低,因此设为卧室区;楼下层高开阔,为主要起居空间。卧室区由一系列卧室与服务空间交替组成,中间通过一条宽敞的流线相连,不仅实现物理上的贯通,也保持与下方开放起居空间的视觉连通。起居空间环绕中央天井,围绕历史橡木桁架展开,分为两个主要区域。
The layout proposal is also guided by a reading of the structural and spatial framework. The original division of the barn’s volume is retained, with the sleeping quarters located on the upper level (where the ceiling height is lower) and the living areas on the lower level. The sleeping area is structured as an alternation of bedrooms and service rooms, connected by a generous circulation space that maintains both physical and visual continuity with the large open-plan living area below, characterized by the historical timber trusses and organized into two zones around the central patio.
▼卧室,bedroom © Fabio Mantovani
▼卧室,bedroom © Fabio Mantovani
▼卧室入口细部,details of the bedroom‘s door © Fabio Mantovani
材料与室内饰面策略围绕对历史特征的再解读,形成有限且统一的材质语言,强调建筑的历史价值与美学品质。新空间保留原始砖墙,并在上部引入传统“透风砖”(gelosie)格栅的当代表达。外围墙面使用天然暖色调粗粒石灰灰泥处理,并将其与树脂混合,用于地坪铺装。
The choice of materials and interior finishes was based on a reinterpretation of the existing features, developing a limited and coherent palette designed to highlight the building’s historical and aesthetic value. The new spaces feature exposed brick walls, with a reinterpretation of traditional brick latticework (gelosie) introduced in the upper sections. The existing perimeter walls were treated with a warm-toned, coarse-grain natural lime plaster, which was also used—mixed with resin—for the flooring.
▼卧室上部引入传统“透风砖”(gelosie)格栅,reinterpretation of traditional brick latticework (gelosie) introduced in the upper sections of the bedroom © Fabio Mantovani
▼浴室,bathroom © Fabio Mantovani
新楼梯采用自承重结构,侧面为穿孔金属板;窗框与细部构件则使用古铜色金属制作。最后,天然色调的木材被用于项目中特别定制的固定家具,为整体材料体系增添温润质感,完善了空间氛围的表达。
The new staircase block was built with a self-supporting structure and perforated sheet metal panels, while the window frames and other detailed elements were crafted in burnished metal. Completing the material palette is natural-toned wood, used for custom-designed fixed furnishings created specifically for this project.
▼楼梯,staircase © Fabio Mantovani
▼楼梯细部,details of the staircase © Fabio Mantovani
▼改造前,before renovation ©SBAR | Salonia Baldin Architettura
▼施工过程,contraction process ©SBAR | Salonia Baldin Architettura
▼平面图,plans ©SBAR | Salonia Baldin Architettura
▼剖面图,sections ©SBAR | Salonia Baldin Architettura
LOCATION: Reggio Emilia – Italy
DESIGNER:
Andrea Salonia
PROJECT YEAR: 2022-2024
PHOTOS BY Fabio Mantovani
SUPERFICIE: 300mq
客服
消息
收藏
下载
最近























































