查看完整案例

收藏

下载
M住宅是位于北京东部的一栋多层住宅,整栋建筑被树荫包裹,院中草木茂盛,环境自带着某种特别的氛围和质感。
House M is a multi-story home located in the eastern part of Beijing nestled among shaded trees and lush vegetation. The environment exudes a unique atmosphere and texture.
▼室内概览,overview of the indoor space©朱雨蒙
住宅主人曾多次描绘记忆深处童年时期对于家宅和居住的印象:低层的楼房,推开窗就是树梢围合的绿意,阳光和高大的书架,深色的水磨石的地面,投射在红砖墙面上摇曳的树影;这种延续几代人的图像记忆,早就沉积成了某种家庭性格,也为这个建筑空间奠定了某种情感与回忆、新与旧交织的气质。
The homeowner described many times their childhood memories etched deep in mind—the impressions of home and life: low-rise buildings, windows that opened directly onto tree canopies, sunlight and towering bookshelves, dark terrazzo floors, and the flickering shadows of trees dancing on red brick walls. These images, passed down through generations, have become part of the family’s character and have laid an emotional and nostalgic foundation for this architectural space—a tapestry interwoven with both the new and the old.
▼推开窗就是树梢围合的绿意,windows that opened directly onto tree canopies©朱雨蒙
▼水磨石的饰面,dark terrazzo finishes©朱雨蒙
原有场地的房屋边界由高墙围合,中心庭院被高墙围在其中,四面围绕的建筑以中庭作为唯一采光来源,房屋近身狭长,开窗洞口有限,室内大部分需要被使用的面积均被困在阴影之下。
The existing site is enclosed by high walls with a central courtyard also surrounded by these walls. The courtyard serves as the only source of light for the surrounding buildings. The rooms are long and narrow with limited windows, leaving much of the interior space left in darkness.
▼中心庭院,courtyard©朱雨蒙
▼俯瞰庭院,overlook the courtyard©朱雨蒙
整体策略是建立一个沉潜在高墙下的新空间体系。在竖直方向受到限制的情况下,延展水平方向的层次,开启5个尺度不一的庭院;大小庭院可观可游,无论置身何处,不同空间单元之间会产生对望关系。这也观照到多代人共同生活的日常场景。人们在这些若即若离的房间中穿梭,祖孙满堂或者核心家庭的互动,都得到响应。空间以各种方式互相连通,区域之间总是故意留出窥视的空隙,人的视线一直在捕捉新的信息,不用身体运动,视线就在漫游中。
▼轴测爆炸图,axonometric©左通右达建筑工作室
The design seeks to establish a new spatial system submerged beneath the tall enclosing walls. With vertical development constrained, the strategy focuses on horizontal layering by introducing five courtyards of varying scales. These courtyards, both large and small, can be both viewed from afar and physically explored. From any point within the residence, a visual connection is formed between spaces. This echoes the daily life of a multigenerational household. As family members move between these rooms—sometimes close, sometimes apart—their interactions are accommodated and deepened. The spaces interconnect in myriad ways, with intentional gaps left between zones to allow glimpses across them. The scene continuously shifts, giving new information from one perspective to another even without physical movement.
▼在不同空间之中穿梭,the spaces interconnect in myriad ways©朱雨蒙
▼区域之间总是留出窥视的空隙,intentional gaps left between zones to allow glimpses across them©朱雨蒙
▼人们在这些若即若离的房间中穿梭,family members move between these rooms—sometimes close, sometimes apart©朱雨蒙
▼空间以各种方式互相连通,Space is interconnected in various ways©朱雨蒙
▼营造出可以捕捉场所中自然光全天的连续变化,captures the changing qualities of natural light throughout the day©朱雨蒙
▼整体空间变得开放和流动,the overall architecture remains open and fluid©朱雨蒙
▼多重院落之间的空间穿透,the spatial porosity between courtyards©孙海霆
▼带来更丰富的光影体验,collectively offering a rich play of light and shadow©孙海霆
通过变换空间、开窗方向引导光线,营造出可以捕捉场所中自然光全天的连续变化。前院、侧院、平台、天台、天井,每个层级都串联了相应的生活功能,由此带来更丰富的光影体验。虽然周围的高墙依然存在,多重院落之间的空间穿透放大了视觉感知的物理尺度,黑暗变成了可以变换的灰度。在穿插于庭院间的植物掩映下,花园、房间,乃至顶层天台,过渡空间被划分为不同层次,建筑整体空间变得开放和流动,场地因此有了循环体验的可能。
By altering spatial configurations, window orientations, and light guidance, the residence captures the changing qualities of natural light throughout the day. The front yard, side yard, terraces, rooftop, and atriums each correspond to different aspects of daily life, collectively offering a rich play of light and shadow. Although the surrounding walls remain, the spatial porosity between courtyards amplifies visual perception, stretching the physical sense of scale. Darkness is transformed into a gradation of shifting grays. Under the concealment of interspersed plants, gardens, rooms, and transitional spaces are layered and defined, while the overall architecture remains open and fluid, offering a continuous and cyclical experience across the site.
▼卧室区域,bedroom©朱雨蒙
▼穿插于庭院间的植物掩映,the concealment of interspersed plants©朱雨蒙
▼阁楼空间,attic space©朱雨蒙
▼阁楼空间,attic space©孙海霆
▼通往屋顶楼梯,staircase towards the roof level©朱雨蒙
▼通往屋顶楼梯细部,staircase detail towards the roof level©朱雨蒙
▼屋顶部分使用原色钛锌板金属屋面,Metal roofing with primary coloured titanium-zinc sheets for the roof section©孙海霆
空间是信息,建筑是现象,材料的张力提供了身体和触觉的最终体验。把原有建筑经年累月的材料变化分类与聚合,创造出了这个住宅的定制材料;一种具有大颗粒籽石的染色混凝土,以垂直方向制造梯形凹凸,预制成900×2200的整块混凝土干挂板;屋顶部分使用原色钛锌板金属屋面,连接露台小粒水磨石整体浇的地面;使用杂石混凝土整体浇筑成可以围坐的中岛,桌子和花台。这些构筑和材料交织构成了贯穿建筑内外的物理体验。回望这些内向的空间,在材料和光线的包裹下,气氛堆叠变得静谧而坚实。从入口穿梭游弋至屋顶天台,仿佛也是一场“自由在高处”的精神之旅。体验空间就好像观察一个人,起初只是注意其容貌,逐渐了解其为人,慢慢摸清其生活习惯,试着靠近内心世界,直至理解其精神与灵魂。
At the heart of architectural design is the creation of physical space where our bodies can reside. Space conveys information, architecture manifests as experience, and the tension within materials delivers the final sensory and tactile impressions. By categorizing and synthesizing the natural aging of the original building materials, a customized material for this residence was developed: a pigmented concrete with coarse aggregate, cast into vertically ridged trapezoidal shapes prefabricated as 900×2200 mm dry-hung panels. These panels form a sequential material experience both inside and outside the building. Looking back at this introspective physical space—enveloped in material and light—the atmosphere becomes serene and solid. The experience is like getting to know a person: we first notice their appearance, then understand their character and habits. We may then venture into their inner thoughts and memories and ultimately connect with their spirit and soul.
▼外立面使用预制混凝土干挂板,prefabricated concrete dry-hung panels used for facade©朱雨蒙
▼使用杂石混凝土整体浇筑成的中岛,central island made of monolithic cast concrete with miscellaneous stones©朱雨蒙
▼庭院夜景,courtyard at night©朱雨蒙
▼建筑夜景,building at night©朱雨蒙
感知是自然赋予我们的标尺,去衡量真实性,去体验趣味,为一切赋予意义。感知让我们理解并对材料、建造和空间做出恰当的回应。在某种程度上,这个复杂的过程可能就是建造住宅的全部意义——回望每个个体的情感与记忆。
Perception is nature’s metric that allows us to gauge authenticity, experience joy, and assign meaning to all things. It guides our responses to materials, construction, and space. In a way, this complex process is the essence of building a house—a reflection on personal emotion and memory.
▼首层平面图,ground floor plan©左通右达建筑工作室
▼二层平面图,first floor plan©左通右达建筑工作室
▼三层平面图,second floor plan©左通右达建筑工作室
▼屋顶平面图,roof plan©左通右达建筑工作室
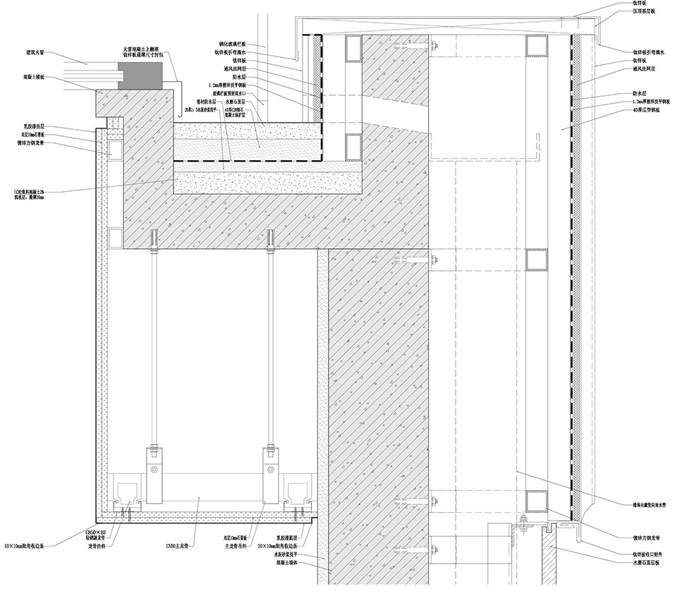
▼混凝土结构立面图,concrete structure elevation©左通右达建筑工作室
▼混凝土结构立面图,concrete structure elevation©左通右达建筑工作室
▼南向北侧立面图,North side elevation©左通右达建筑工作室
▼西向东侧剖切图,East side section©左通右达建筑工作室
▼剖透视,perspective section©左通右达建筑工作室
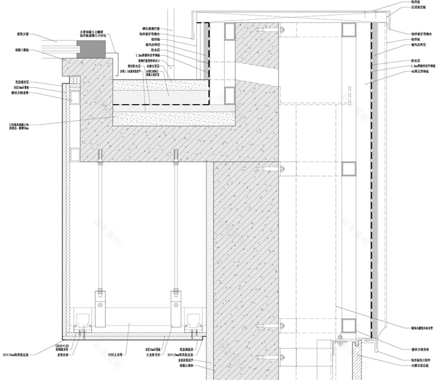
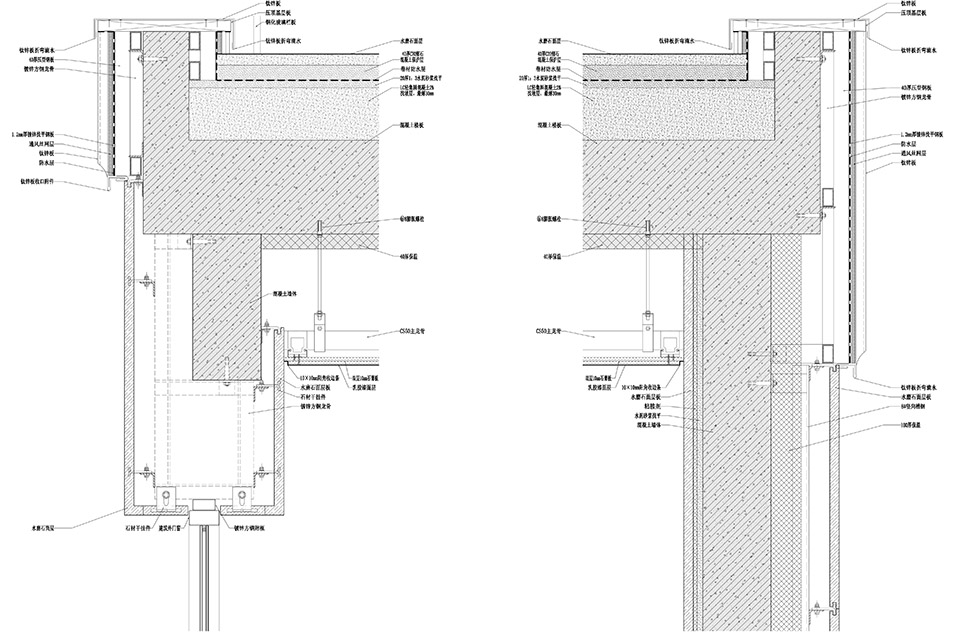
▼屋顶金属屋面节点图,roof metal panel detail©左通右达建筑工作室
▼屋顶悬挑雨棚排水沟节点图,roof overhanging canopy drainage detail©左通右达建筑工作室
▼染色混凝土图示,pigmente concrete diagram©左通右达建筑工作室
项目地点:中国北京
项目类型:建筑、室内、景观
基本功能:私人住宅
建成年份:2025年
建筑规模:600平方米
建筑及室内设计:左通右达建筑工作室Atelier About Architecture
主持建筑师:王旎
设计团队:秦瑛 刘晓鑫 姜万春 董宁 史一红 克霞
景观团队:李昕 刘帅 曹积学 吴紫颖
灯光团队:Viabizzuno,北京众信恒瑞照明设计有限公司
结构顾问:马智刚
施工团队:智营造装饰工程有限公司
项目负责人:陶智 徐晓亮
木工:王云 孙保权
机电:钟杰 彭建清
油工:孙宏旗 杨浩德 唐金飞
磨石工:梁正六 高中庆
瓦工:苏现坤
摄影师:朱雨蒙,孙海霆
Project Information
Location: Beijing, China
Project Type: Architecture, interior, and landscape
Function: Private house
Completion Year: 2025
Size: 600 square meters
Architecture and Interior Design: Atelier About Architecture
Lead Architect: Wang Ni
Design Team: Qin Ying, Liu Xiaoxin, Jiang Wanchun, Dong Ning, Shi Yihong, Ke Xia
Landscape Team: Li Xin, Liu Shuai, Cao Jixue, Wu Ziying
Structural Consultants: Ma Zhigang
Construction team:
Project Leaders: Tao Zhi, Xu Xiaoliang
Carpenters: Wang Yun, Sun Baoquan
Electrical and Mechanical Workers: Zhong Jie, Peng Jianqing
Painters: Sun Hongqi, Yang Haode, Tang Jinfei
Stone Grinders: Liang Zhengliu, Gao Zhongqing
Bricklayers: Su Xiankun
Lighting design:Viabizzuno, Beijing Zhongxin Hengrui Lighting Design Co., Ltd
Photograph:Zhu Yumeng,Sun Haiting
客服
消息
收藏
下载
最近






































































