查看完整案例

收藏

下载
M住宅是位于北京东部的一栋多层住宅,整栋建筑被树荫包裹,院中草木茂盛,环境自带着某种特别的氛围和质感。
▼室内概览
住宅主人曾多次描绘记忆深处童年时期对于家宅和居住的印象:低层的楼房,推开窗就是树梢围合的绿意,阳光和高大的书架,深色的水磨石的地面,投射在红砖墙面上摇曳的树影;这种延续几代人的图像记忆,早就沉积成了某种家庭性格,也为这个建筑空间奠定了某种情感与回忆、新与旧交织的气质。
▼推开窗就是树梢围合的绿意
▼水磨石的饰面
原有场地的房屋边界由高墙围合,中心庭院被高墙围在其中,四面围绕的建筑以中庭作为唯一采光来源,房屋近身狭长,开窗洞口有限,室内大部分需要被使用的面积均被困在阴影之下。
▼中心庭院
▼俯瞰庭院
整体策略是建立一个沉潜在高墙下的新空间体系。在竖直方向受到限制的情况下,延展水平方向的层次,开启5个尺度不一的庭院;大小庭院可观可游,无论置身何处,不同空间单元之间会产生对望关系。这也观照到多代人共同生活的日常场景。人们在这些若即若离的房间中穿梭,祖孙满堂或者核心家庭的互动,都得到响应。空间以各种方式互相连通,区域之间总是故意留出窥视的空隙,人的视线一直在捕捉新的信息,不用身体运动,视线就在漫游中。
▼轴测爆炸图
▼在不同空间之中穿梭
▼区域之间总是留出窥视的空隙
▼人们在这些若即若离的房间中穿梭
▼空间以各种方式互相连通
▼营造出可以捕捉场所中自然光全天的连续变化
▼整体空间变得开放和流动
▼多重院落之间的空间穿透
▼带来更丰富的光影体验
通过变换空间、开窗方向引导光线,营造出可以捕捉场所中自然光全天的连续变化。前院、侧院、平台、天台、天井,每个层级都串联了相应的生活功能,由此带来更丰富的光影体验。虽然周围的高墙依然存在,多重院落之间的空间穿透放大了视觉感知的物理尺度,黑暗变成了可以变换的灰度。在穿插于庭院间的植物掩映下,花园、房间,乃至顶层天台,过渡空间被划分为不同层次,建筑整体空间变得开放和流动,场地因此有了循环体验的可能。
▼卧室区域
▼卧室区域
▼穿插于庭院间的植物掩映
▼阁楼空间
▼阁楼空间
▼通往屋顶楼梯
▼通往屋顶楼梯细部
▼屋顶部分使用原色钛锌板金属屋面
空间是信息,建筑是现象,材料的张力提供了身体和触觉的最终体验。把原有建筑经年累月的材料变化分类与聚合,创造出了这个住宅的定制材料;一种具有大颗粒籽石的染色混凝土,以垂直方向制造梯形凹凸,预制成900×2200的整块混凝土干挂板;屋顶部分使用原色钛锌板金属屋面,连接露台小粒水磨石整体浇的地面;使用杂石混凝土整体浇筑成可以围坐的中岛,桌子和花台。这些构筑和材料交织构成了贯穿建筑内外的物理体验。回望这些内向的空间,在材料和光线的包裹下,气氛堆叠变得静谧而坚实。从入口穿梭游弋至屋顶天台,仿佛也是一场“自由在高处”的精神之旅。体验空间就好像观察一个人,起初只是注意其容貌,逐渐了解其为人,慢慢摸清其生活习惯,试着靠近内心世界,直至理解其精神与灵魂。
▼外立面使用预制混凝土干挂板
▼使用杂石混凝土整体浇筑成的中岛
▼庭院夜景
感知是自然赋予我们的标尺,去衡量真实性,去体验趣味,为一切赋予意义。感知让我们理解并对材料、建造和空间做出恰当的回应。在某种程度上,这个复杂的过程可能就是建造住宅的全部意义——回望每个个体的情感与记忆。
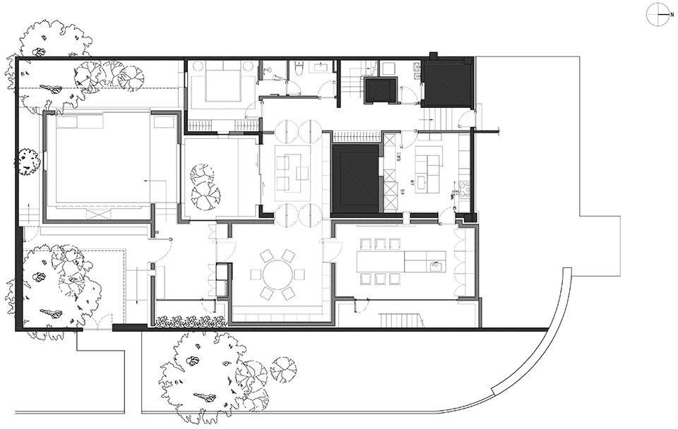
▼首层平面图
▼二层平面图
▼三层平面图
▼屋顶平面图
▼混凝土结构立面图
▼剖透视
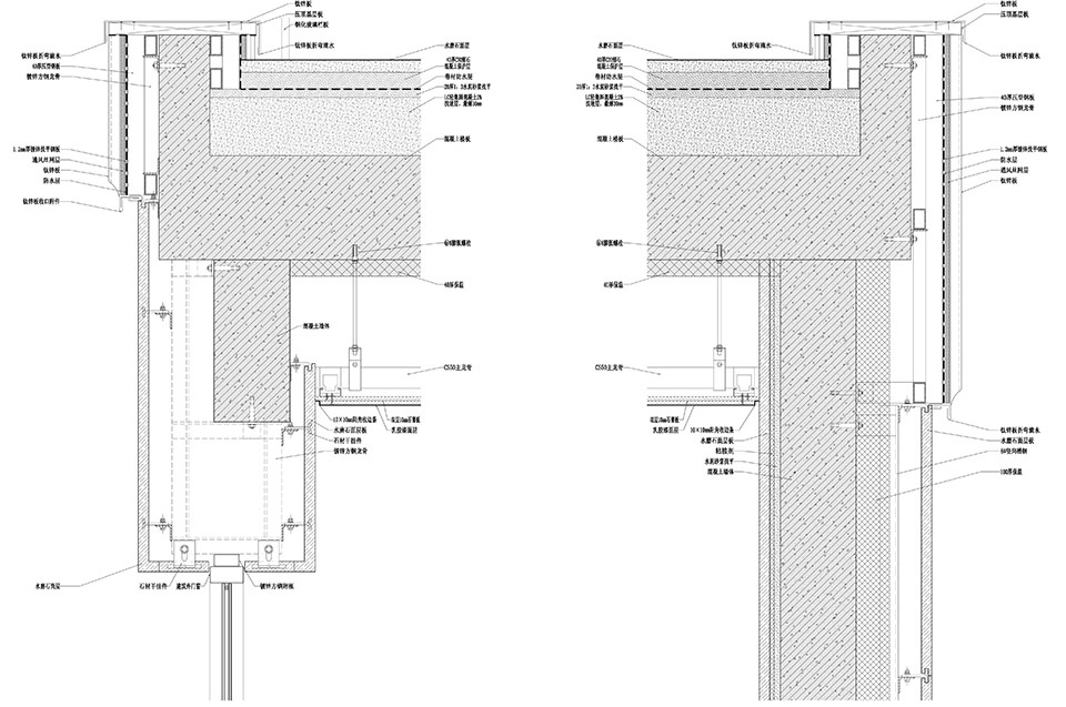
▼屋顶金属屋面节点图
▼屋顶悬挑雨棚排水沟节点图
▼染色混凝土图示
项目地点:中国北京
项目类型:建筑、室内、景观
基本功能:私人住宅
建成年份:2025年
建筑规模:600平方米
建筑及室内设计:左通右达建筑工作室Atelier About Architecture
主持建筑师:王旎
设计团队:秦瑛 刘晓鑫 姜万春 董宁 史一红 克霞
景观团队:李昕 刘帅 曹积学 吴紫颖
灯光团队:Viabizzuno,北京众信恒瑞照明设计有限公司
结构顾问:马智刚
施工团队:智营造装饰工程有限公司
项目负责人:陶智 徐晓亮
木工:王云 孙保权
机电:钟杰 彭建清
油工:孙宏旗 杨浩德 唐金飞
磨石工:梁正六 高中庆
瓦工:苏现坤
摄影师:朱雨蒙,孙海霆
客服
消息
收藏
下载
最近






































































