查看完整案例

收藏

下载
杭州独栋别墅设计
//
在现代风格主导室内设计领域的当下,融合风格的室内设计如同一位巧妙的艺术家,将多种风格元素完美地交织在一起。它挣脱了传统单一风格的束缚,巧妙地融合了不同风格、不同时期乃至不同文化的元素。尽管这些元素丰富多彩,但整体设计始终围绕着和谐与平衡的原则展开,确保空间的统一性与协调性,从而创造出令人惊叹的视觉盛宴。
At present, modern style dominates the field of interior design, and the interior design of the fusion style is like a clever artist, perfectly intertwining multiple style elements. It breaks free from the shackles of traditional single styles and cleverly integrates elements of different styles, different periods and even different cultures. Although these elements are diverse, the overall design always revolves around the principle of harmony and balance to ensure the unity and coordination of the space, thus creating an amazing visual feast.
原结构天花板超高的挑高设计增加了空间的开阔感,同时通过木制横梁划分层次,壁炉作为视觉中心,两侧的中古展示柜与中古壁灯的对称摆放,体现了法式对平衡感的追求,壁炉两边用黑白花大理石装饰,更近一步强化了壁炉的视觉重心,黑白花的纹理也增加了空间的高级和复古感。
The ultra-high design of the original structure ceiling increases the sense of openness of the space. At the same time, the layers are divided by wooden beams. The fireplace is the visual centre. The symmetrical arrangement of mediaeval display cabinets and mediaeval wall lamps on both sides reflects the French pursuit of a sense of balance. The two sides of the fireplace are decorated with black and white marble, which is closer to strengthening the fireplace. The visual centre of gravity, the black and white texture also increases the sense of luxury and retro of the space.
客厅空间
中庭区域天花板,采用大拱顶的弧形设计增加了空间的视觉高度,使空间更加开阔,温柔的用曲线解剖空间,驯服直角的形状。中下段木制饰面的围边,既加强的中庭的区域感,也突出了拱顶的存在感。
The ceiling of the atrium area adopts the arc design of the large vault to increase the visual height of the space, making the space more open, gently dissect the space with curves, and tame the right-angled shape. The edge of the wooden finish in the middle and lower section not only enhances the regional sense of the atrium, but also highlights the sense of existence of the vault.
庭空间天花板采用木制饰面装饰,并采用两侧倾斜的设计,一改常规大平顶的设计思路,通过两边斜顶面的设计,稍稍挤压人的视线,增加空间的灵动感,加上立面上两边门洞对称的设计,又进一步将对称完美呈现在另一个空间。
The ceiling is decorated with wooden finishes and an inclined design on both sides. It changes the design idea of the conventional large flat roof. Through the design of the sloping top on both sides, it slightly squeezes peoples eyes and increases the flexibility of the space. In addition, the symmetrical design of the door holes on both sides on the facade further perfectly presents the symmetry in another space.
西厨空间
顶面采用多层圆形嵌入设计,营造一种动态的视觉效果,多层级的吊灯层层往下,更进一步增加了层次感。酒柜是超白洞石和木面的结合,在细节增加圆弧造型和圆形吊灯,与吊顶呼应,弱化直线条带来的生硬感,使整体空间更具协调感。
The top adopts a multi-layer circular embedded design to create a dynamic visual effect, and the multi-level chandelier further increases the sense of hierarchy. The wine cabinet adopts a combination of ultra-white cave stone and wood surface, adding arc modelling and round chandeliers in the details, echoing the ceiling, weakening the stiffness brought by straight lines, and making the overall space more coordinated.
中餐厅空间
西餐厅顶面较低,采用木制线条包裹原梁两侧,底部露白,半包裹梁的做法让梁显得轻盈,勾勒了顶部的线条空间,也增加自然的质感。
The top of the Western dining room is low, and wooden lines are used to wrap both sides of the original beam, and the bottom is white. The half-wrapped beam makes the beam look light, outlining the line space at the top, and also increasing the natural texture.
楼梯间一瞥
西餐厅空间
茶室吊顶采用中式覆斗造型,木饰面围边,营造出茶室的经典氛围空间,茶室的柜体落地形式以中式的柱础为灵感,用黑色石材作为础, 木色柜体侧板为柱 , 柱落在础上, 产生坚固、稳定而可靠的感觉 ,用传统建筑的大形式转化为室内空间的小巧思。
The ceiling of the tea room adopts a Chinese-style bucket shape, surrounded by a wooden finish, creating a classic atmosphere of the tea room. The floor-to-ceiling form of the cabinet of the tea room is inspired by the Chinese-style column, with black stone as the base, the side panel of the wood-coloured cabinet as the column, and the column falls on the base, creating a strong, stable and reliable feeling. It is a clever idea to transform the large form of traditional architecture into a small indoor space.
茶室空间
二楼中庭顶面设计成连续的木制拱顶,在纵向拔高视觉高度,在横向产生连绵的视觉效果,隔断的设置则将房门入口和公共区域分割开来,起到隔挡和隐私的作用。
The top of the atrium on the second floor is designed as a continuous wooden vault, which increases the visual height vertically and produces continuous visual effects horizontally. The setting of the partition separates the door entrance and the public area, which plays the role of barrier and privacy.
二楼中庭空间
同样拔高顶面的设计,引导人的视线向上,增加空间的视觉高度,使得整个区域更加开阔,中古的金扇屏风,绘制经典的浮世绘海浪纹饰,颇有几分葛饰北斋的《神奈川沖浪裏》的意境。
The design of the same high-top surface also guides peoples eyes upwards, increases the visual height of the space, and makes the whole area more open. The mediaeval golden fan screen, drawing the classic ukiyo-e wave pattern, is quite similar to the artistic conception of Katsushika Hokusais “The Great Wave off Kanagawa”
起居室空间
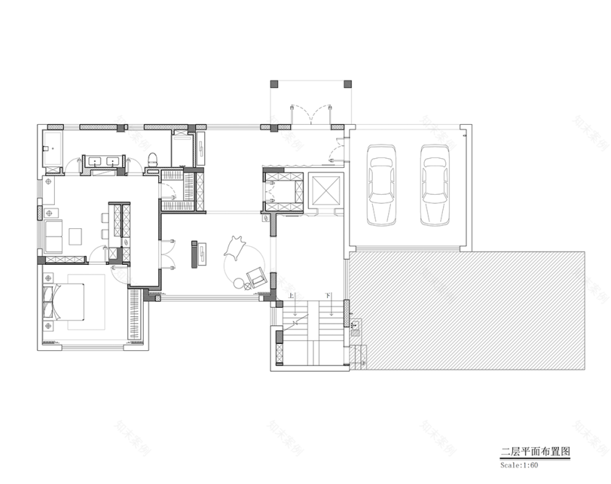
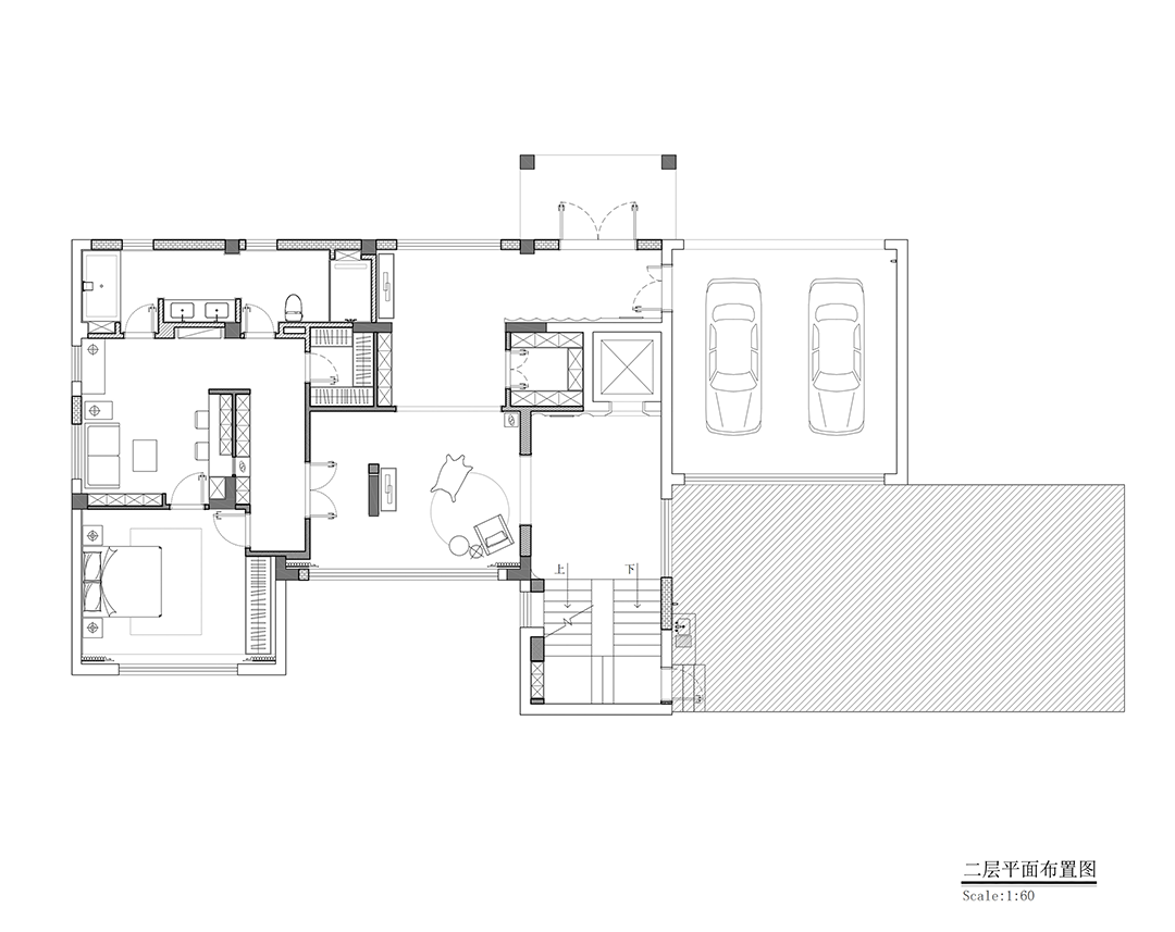
滑动查看平面布置图 ©锦艺设计
项目名称 |杭州独栋别墅设计
项目类型 |独栋别墅
项目地点 |浙江杭州
完工时间 |2024年12月
建筑面积 |1000
设计单位 |锦艺室内设计事务所
设计团队 |郑屹、冯源
材 料 |超白洞石 黑洞石 木饰面 木地板 艺术漆
摄 影 师 |郑启铭(铭筑影像)
主创设计 / 郑屹
JINYI DESIGN 由设计师郑屹于2008年创办于浙江金华,公司始终将“创新”作为核心驱动力。室内设计不应只是简单的装修,而是一场关于空间、情感与生活方式的深刻探索。传统与现代、东方与西方、简约与奢华等多种风格元素相互碰撞、交融,掘出每个空间的独特魅让空间不仅仅是一个物理存在,更是一种精神的寄托和情感的表达。
客服
消息
收藏
下载
最近



























