知末
知末
创作上传
VIP
收藏下载
登录 | 注册有礼

安徽·自建住宅楼丨中国宣城丨熊辉

2025/06/13 15:08:09
查看完整案例
微信扫一扫
收藏
下载
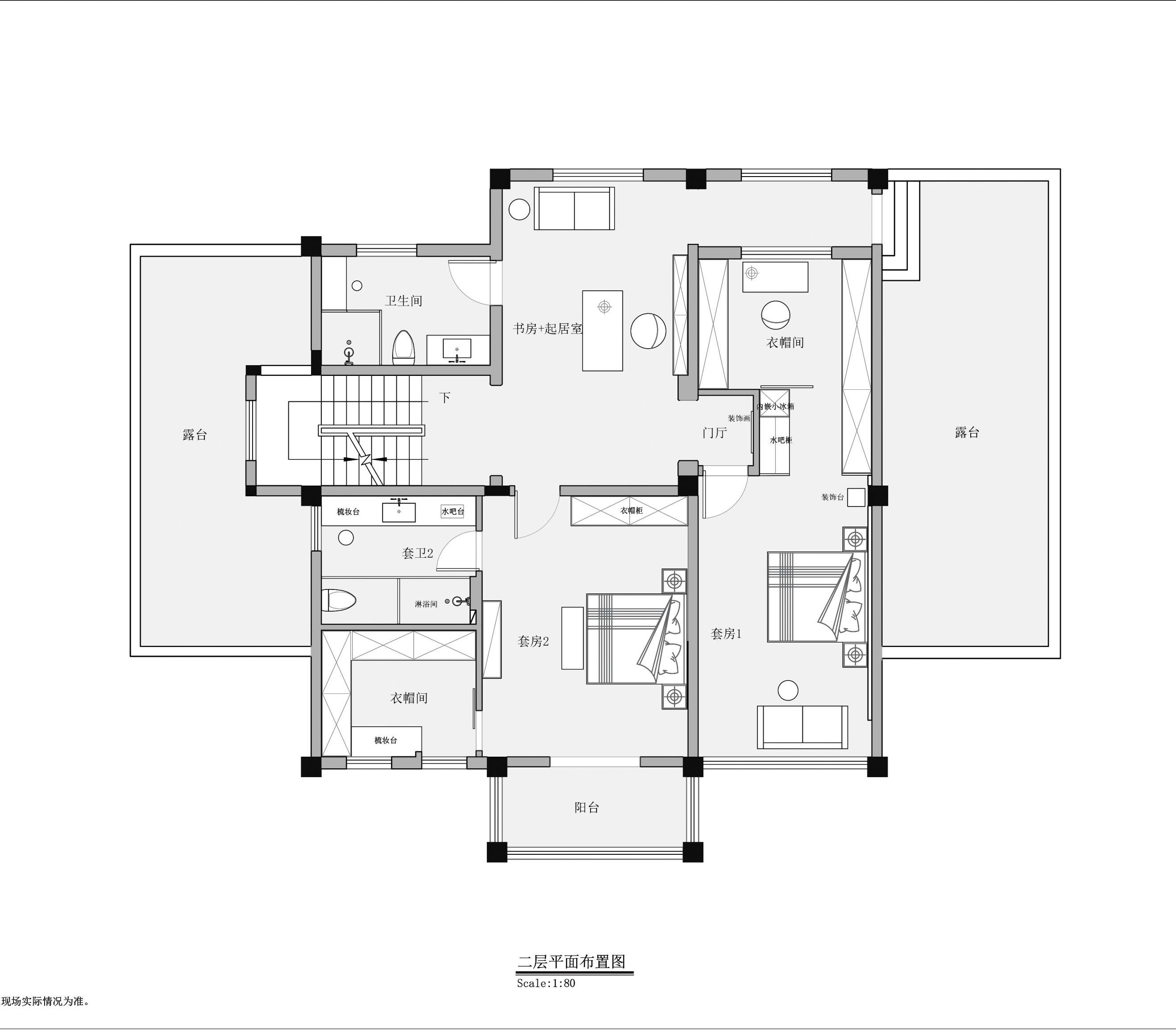
项目名称:安徽·自建住宅楼
项目地址:中国 安徽
建筑面积:350平米
设计机构:研舍设计
设计团队:熊 辉 姜楠 王达乾
项目材料:大理石 金属 木饰面 等
安徽·自建住宅楼丨中国宣城丨熊辉-6
安徽·自建住宅楼丨中国宣城丨熊辉-7
安徽·自建住宅楼丨中国宣城丨熊辉-8
安徽·自建住宅楼丨中国宣城丨熊辉-9
安徽·自建住宅楼丨中国宣城丨熊辉-10
安徽·自建住宅楼丨中国宣城丨熊辉-11
安徽·自建住宅楼丨中国宣城丨熊辉-12
安徽·自建住宅楼丨中国宣城丨熊辉-13
安徽·自建住宅楼丨中国宣城丨熊辉-14
安徽·自建住宅楼丨中国宣城丨熊辉-15
安徽·自建住宅楼丨中国宣城丨熊辉-16
安徽·自建住宅楼丨中国宣城丨熊辉-17
安徽·自建住宅楼丨中国宣城丨熊辉-18
安徽·自建住宅楼丨中国宣城丨熊辉-19
安徽·自建住宅楼丨中国宣城丨熊辉-20
南京喵熊网络科技有限公司 苏ICP备18050492号-4知末 © 2018—2020 . All photos and trademark graphics are copyrighted by their owners.增值电信业务经营许可证(ICP)苏B2-20201444苏公网安备 32011302321234号
客服
消息
收藏
下载
最近