查看完整案例

收藏

下载
位于曼谷通罗区这个宁静且高端的街区内,PLP City系列项目呈现出一个以高端高尔夫模拟体验为核心的创新型复合功能空间。建筑的醒目外立面采用了凹凸相间的预制混凝土板组合而成,兼具美学与实用功能。这些独特造型的构件在一整天中营造出光影交错的动态效果,巧妙呼应了高尔夫挥杆的优雅弧线,以可视化的方式呈现这项运动的动感魅力。建筑底层的入口和未来的零售空间则以钢材构成,造型灵感源自高尔夫球杆头,并辅以半反光材质,突显其现代感与流畅感。
Situated within the tranquil and upscale neighborhood of the Thonglor area in Bangkok, the PLP City range presents an innovative mixed-use facility designed primarily as a state-of-the-art golf simulation center. The building’s striking facade is crafted from a combination of concave and convex precast concrete panels, serving aesthetic and functional purposes. These uniquely shaped modules generate a dynamic interplay of shade and shadow throughout the day, ingeniously echoing the graceful arc of a golf swing and creating a visual representation of the sport itself. Steel elements accentuate the entrance and future retail spaces on the ground floor, purposefully designed to mimic the sleek form of a golf driver and featuring semi-reflective materials that enhance their modern appeal.
▼建筑外观,exterior of the building©Soopakorn Srisakul
▼建筑街景,street view of the building©Phuttipan Aswakool
▼建筑外观,exterior of the building©Soopakorn Srisakul
▼建筑立面细部,facade detail of the building©Soopakorn Srisakul
▼巧妙呼应了高尔夫挥杆的优雅弧线,
ingeniously echoing the graceful arc of a golf swing©Soopakorn Srisakul
▼弧线设计,curved shape©Phuttipan Aswakool
整栋建筑共六层,每一层均有明确分工,以确保空间的高效利用并满足不同客群的需求。一层为主入口大厅与未来的零售区域,配套提供地面停车位以方便来访者。二层设有专为青少年运动员打造的室内高尔夫模拟训练区,并配有一个温馨的休闲小餐吧,便于训练间隙放松休憩。
With the six-functioned stories, each floor has a specific function, ensuring efficient space utilization while catering to a diverse clientele. The ground floor welcomes visitors with a spacious main lobby and future retail area, complemented by on-site parking facilities to accommodate guests. Ascending to the second floor, visitors will find a youth indoor golf simulation area tailored for young athletes, complete with a small but cozy canteen that provides refreshments and a place to relax between sessions.
▼一层入口,entrance at the ground floor©Soopakorn Srisakul
▼地面停车区域,parking area at ground level©Soopakorn Srisakul
▼未来零售空间,retail space for future use©Phuttipan Aswakool
▼未来零售空间,retail space for future use©Soopakorn Srisakul
▼未来零售空间,retail space for future use©Phuttipan Aswakool
▼为青少年运动员打造的室内高尔夫模拟训练区,
a youth indoor golf simulation area tailored for young athletes©Soopakorn Srisakul
▼为青少年运动员打造的室内高尔夫模拟训练区,
a youth indoor golf simulation area tailored for young athletes©Soopakorn Srisakul
三层则进一步提升体验品质,设有VIP高尔夫模拟包间、豪华贵宾室与酒吧区域,为追求私密性与舒适度的高端用户营造专属环境。四层为建筑亮点之一,设有半户外切杆区、推杆练习草坪以及多功能运动场,该楼层充分引入自然通风,让访客在开放氛围中享受真实的高尔夫练习体验。
On the third floor, the experience elevates further with a VIP golf simulation bay, luxurious VIP rooms, and a bar area that offers a more exclusive environment for serious golfers seeking enhanced privacy and comfort. One of the standout features of the building is the fourth floor, which boasts a semi-outdoor chip, a putting green area, and a multi-sport court. This floor is designed to take advantage of natural ventilation, allowing an open-air feel while providing key golfing practice facilities.
▼推杆练习草坪以及多功能运动场,a putting green area, and a multi-sport court©Phuttipan Aswakool
▼让访客在开放氛围中享受真实的高尔夫练习体验,
an open-air feel while providing key golfing practice facilities©Soopakorn Srisakul
▼让访客在开放氛围中享受真实的高尔夫练习体验,
an open-air feel while providing key golfing practice facilities©Soopakorn Srisakul
▼休息区域,leisure area©Phuttipan Aswakool
▼酒吧区域,bar area©Phuttipan Aswakool
▼酒吧区域,bar area©Soopakorn Srisakul
五层与六层为双层挑高的毛坯空间,面向通罗街区可享广阔城市视野,预留作为业主自住空间,为居住者创造与休闲娱乐无缝衔接的生活可能。
The fifth and sixth floors have been prepared as bare-shell double-volume spaces with panoramic views of the Thonglor area for the owners’ residences, which creates unique opportunities for residents to live near recreation and leisure activities.
▼双层挑高的毛坯空间,bare-shell double-volume spaces©Phuttipan Aswakool
▼预留作为业主自住空间,for the owners’ residences©Phuttipan Aswakool
▼服务空间,servant space©Soopakorn Srisakul
为了应对自然采光控制这一影响高尔夫模拟设备运行的关键问题,建筑选用了凹凸相间的预制混凝土板作为主要外墙材料。这些构件可确保室内保持不透光环境,从而满足高精度设备的运行需求。此外,建筑巧妙设置了一处位于转角的通透弧形玻璃开口,略高于地面,以最大化引入自然光和周边景观,同时保持室内适宜的光环境,为使用者带来更加舒适且沉浸的高尔夫体验。
To address the critical issue of managing natural light—an essential consideration for maintaining the optimal functionality of golf simulation equipment—concave and convex precast concrete panels were carefully selected as the primary construction material. These panels are engineered to provide an opaque interior that supports the sophisticated technology of the simulators. The building’s design ingeniously incorporates a transparent curved glass opening strategically located at the corner of the building, positioned above ground level to maximize views and influx of natural sunlight, thereby enhancing the overall experience for guests while maintaining the necessary internal conditions for the golf simulations.
▼建筑夜景,building at night©Soopakorn Srisakul
▼建筑夜景,building at night©Soopakorn Srisakul
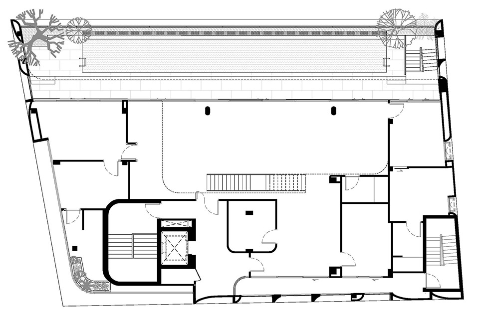
▼一层平面,ground floor plan©ASWA
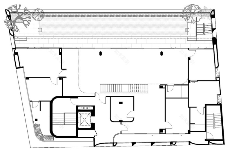
▼二层平面,first floor plan©ASWA
▼三层平面,third floor plan©ASWA
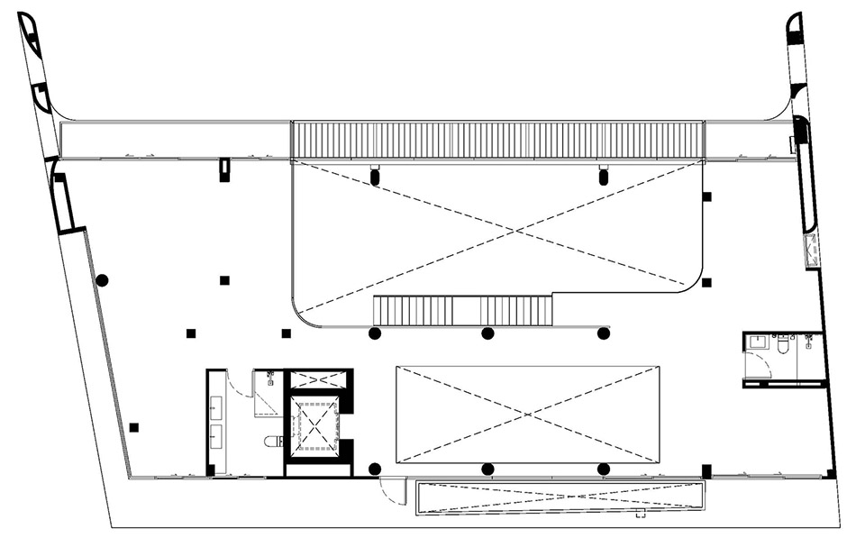
▼四层平面,fourth floor plan©ASWA
▼五层平面,fifth floor plan©ASWA
▼六层平面,sixth floor plan©ASWA
▼屋顶平面,roof plan©ASWA
▼立面,elevation©ASWA
▼立面,elevation©ASWA
▼剖面,section©ASWA
Project name: PLP City Range mixed-use
Architectural Design: ASWA (Architectural Studio of Work – Aholic)
Interior Design: ASWA (Architectural Studio of Work – Aholic)
Location: Bangkok, Thailand
Status: Completed
Area: 2,750 sq.m.
Type: Mixed-use (Golf Simulation Center, Retail, Residence)
Design Team: Phuttipan Aswakool, Chotiros Techamongklapiwat, Pohntanate Boonphaeng, Ananya Rakapai, Peerada Pokaew, Ireen Paenkaew
Photographers: Soopakorn Srisakul, Phuttipan Aswakool
客服
消息
收藏
下载
最近




































































