查看完整案例

收藏

下载
捷克共和国迎来了世界上最大规模的加拿大双语学校网络的前两位先行者——奥洛穆茨Maple Bear幼儿园与布尔诺Maple Bear小学。
The first two forerunners of the world’s largest network of Canadian bilingual schools in the Czech Republic—Maple Bear Kindergarten Olomouc and Maple Bear Elementary School Brno.
▼项目概览,Overall view © Studio Flusser
本次室内设计基于Maple Bear学校独特的教育理念:以学生为中心,在富有激励性的环境中激发对终身学习的热爱。在捷克代表处的支持下,我们打造了一套原创设计,既展现了学校的精神气质,也满足了全球品牌的质量标准。
The interior design was based on Maple Bear Schools’ unique approach to student-centered learning in a stimulating environment that instills a love of lifelong learning. Thanks to the support of the Czech representative office, we created an original design to express the spirit of these schools and, at the same time, to meet the qualitative requirements of the global brand.
▼雪景外观,Snow scene © Studio Flusser
奥洛穆茨幼儿园
Kindergarten Olomouc
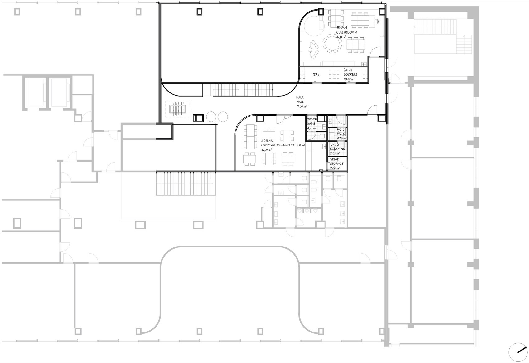
幼儿园位于奥洛穆茨BEA中心多功能建筑内,设计布局将教室布置在光线充足的建筑外围,使中央空间——大厅——成为整个空间的核心。这一策略有效打破了传统的单一功能走廊,将其转化为多功能空间。中央大厅既是孩子们和家长的共享空间,也是前厅、室内游乐区、小型阶梯剧场、带图书与玩具的休闲阅读区的集合体。会议室以圆筒形体量构成空间中的视觉焦点。不同教室在主题上各具特色,通过家具设计、配色方案及墙面图形予以区分
。
The layout of the kindergarten places the classrooms to the illuminated perimeter of the multifunctional building of the Olomouc BEA Centre so that a central space—the hall—is situated in the middle. This solution virtually eliminated the institute of a single-purpose corridor in favor of a multifunctional space. The central hall provides space for children and parents. The lobby, an indoor playground, a small amphitheater, and a relaxed seating area with a library and toys were placed in the hall. The cylindrical volume of the meeting room forms a visual landmark of the space. The different classrooms are thematically separated, which is conveyed through the design of the furniture, the color scheme, and the graphics on the walls.
▼前厅,Reception © Studio Flusser
▼中央大厅,The central hall © Studio Flusser
▼室内游乐区,Indoor playground © Studio Flusser
▼小型阶梯剧场,Small amphitheater © Studio Flusser
▼阅览区,Reading area © Studio Flusser
▼教室与储物室,Classrooms and storage rooms © Studio Flusser
▼游戏中的孩子们,Children in the game © Studio Flusser
布尔诺小学
Elementary School Brno
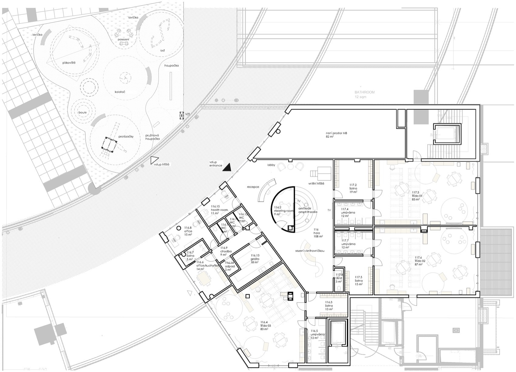
布尔诺小学设于Nová Zbrojovka新区的ZET办公楼之中。空间延续了建筑原有的工业风格,主入口大厅跨越两层,裸露的钢梁构成鲜明特色。大厅内包含前厅、接待处和多功能图书馆。这一图书馆空间除了承载常规阅读功能,还可用于展示学校纪念品与校服,并设有前台储物区,以及供孩子们玩耍和阅读的小角落。
The Brno primary school is a fit-out of the ZET office building in the Nová Zbrojovka development area. A reference to the original industrial character of the building is the central entrance hall elevated over two floors with exposed steel beams. It includes a lobby, reception, and a multipurpose library. Aside from being a library, it provides space for displaying school merchandise and uniforms, and has storage areas for the reception area, or a play and reading corner for children.
▼接待前厅,Reception © Studio Flusser
▼通高的主入口大厅,Full-height main entrance hall © Studio Flusser
▼教室,Classroom © Studio Flusser
▼延续原有工业风格,Continuation of the original industrial style © Studio Flusser
▼阅览室,Multipurpose library © Studio Flusser
两所学校均设有专为其空间设计的原创图形系统,不仅统一了整体设计风格,也通过视觉语言传达出全球品牌与在地文化之间的联系。
Both schools feature original graphics designed for these specific spaces. This unifies the design of the schools and thematically expresses the very link between the global brand and the uniqueness of the place.
▼布尔诺小学首层平面图,ground floor plan brno © Studio Flusser
▼布尔诺小学二层平面图,first floor plan brno © Studio Flusser
▼奥洛穆茨幼儿园平面图,floor plan olomouc © Studio Flusser
Studio: SOA architekti
Author: Ondřej Laciga, Petra Valdman
info@s-o-a.cz
Social media: /soaarchitekti
/SOAarchitekti
Studio address: Václavské nám. 828/23, 110 00 Prague, Czech Republic
Project location: ZET.Office Nová Zbrojovka, Lazaretní 925/9, 615 00 Brno
tř. Kosmonautů 1338/1c, Hodolany, 779 00 Olomouc
Project country: Czech Republic
Project year: 2023
Completion year: 2024
Usable floor area: 650 m² Brno
550 m² Olomouc
Cost: Brno 320 000 €
Olomouc 600 000 €
Client: Maple Bear Czechia
Collaborators and suppliers
Graphic design: Graphite Studio [Mona Bublová, Tomáš Buble, Klára Maršíčková],
客服
消息
收藏
下载
最近

























