查看完整案例

收藏

下载
小型综合体 Raw House
在城市开发的浪潮中,项目综合体已成为开发商竞争的焦点。这些综合体汇聚多种功能空间,成为城市活力与文化的新载体。
今天,我们要聚焦的并非那些宏大的城市地标,而是位于韩国首尔东区一个只有 800㎡ 的小型综合体「Raw House」
「Raw House」由开发商Order Matter打造,包含一间咖啡馆、几套住宅公寓以及一间兼作办公空间的顶层公寓,功能多元且布局精巧。
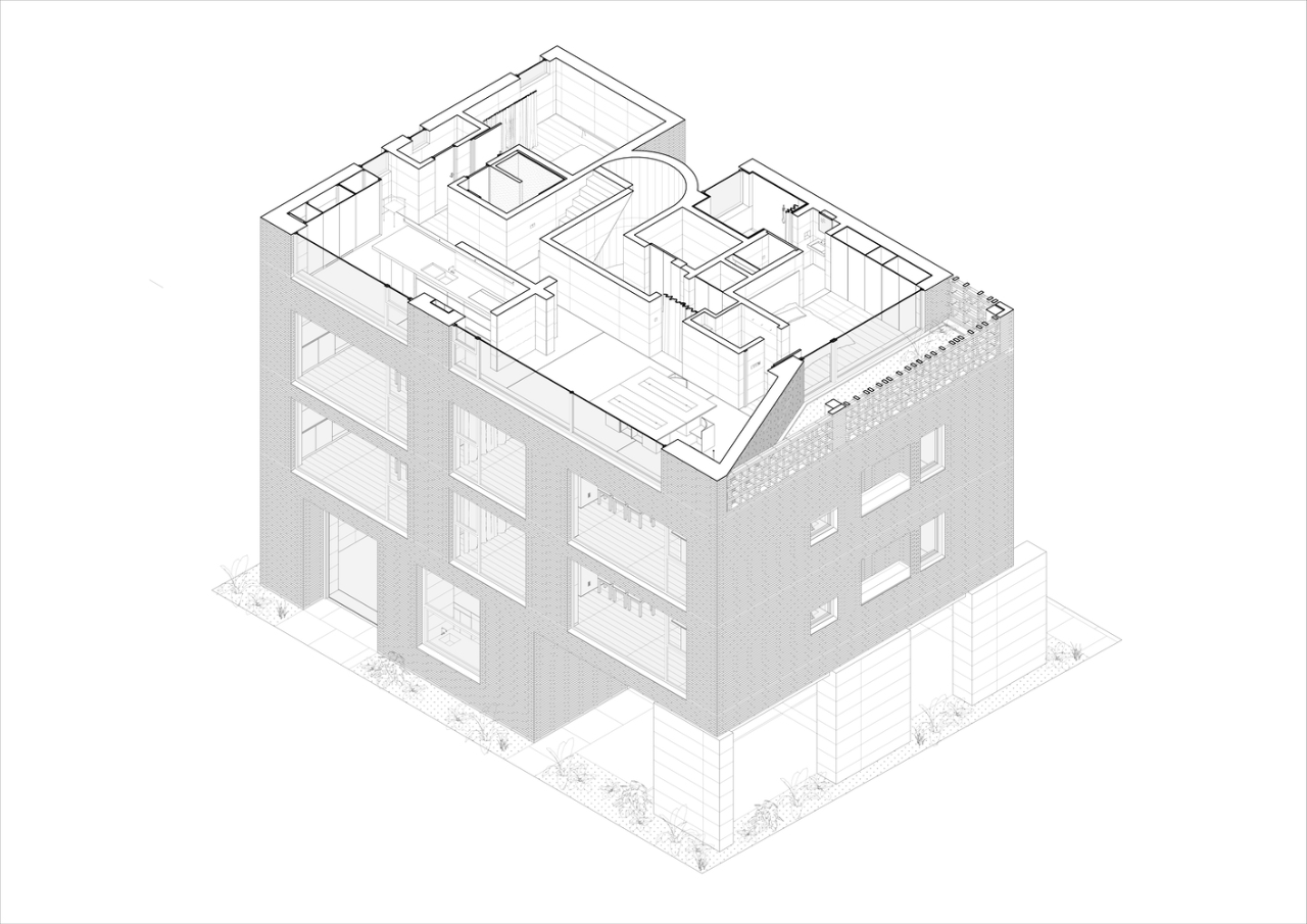
项目的建筑结构采用混凝土框架,展现出质朴而真实的美感。
南立面 设计上,大面积的玻璃窗将室外绿植引入视野,创造了开放、明亮的空间氛围,也让自然景观成为室内的一部分。相对而言,
北立面 则设计得更为内敛,通过简洁的线条和封闭的结构与街道形成缓冲,更好地保证了居住空间的私密性与安静。
△立面图
△立面图
△立面图
△立面图
△剖面图
△剖面图
△剖面图
△轴测图
△轴测图
Part 01
咖啡馆
「Raw House」的室内设计强调简约、真实与功能性,每个空间都经过精心规划,注重材料的质感和空间的使用体验。咖啡馆位于项目的公共部分,设计上力求营造出一个温馨且富有亲和力的社交空间。
一层平面图
咖啡馆的入口是一扇旋转玻璃门,既打破了室内外的界限,也在空间中创造了流动感。
空间内的混凝土墙面不仅增添了空间的坚固感和自然感,也通过材料本身的纹理和冷暖变化,在室内创造出一种永恒而真实的存在,还呼应了外立面的设计。
为了平衡原始材料的自然粗犷,设计师选用了金属家具,增添了一份现代的冷冽与简洁性。
在「Raw House」中通往上下层的楼梯不仅是一个功能性元素,更被作为一种艺术装置融入空间。
Part 02
住宅公寓
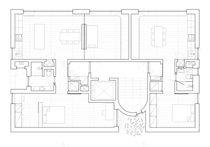
住宅公寓的设计体现了对居住品质的追求,每个单元都经过精心规划,确保每个功能区域的独立性和舒适性。
△二、三层平面图
起居区
宽敞明亮,朝南的窗户让自然光线充沛,提供了与外部景致的流畅连接。
卧室则位于北侧,避免了直射阳光的干扰,确保安静的休息环境。
卫生间、厨房等功能区划分明确,既满足日常使用需求,又避免了空间浪费。整个设计简洁且富有层次感。
Part 03
顶层办公空间
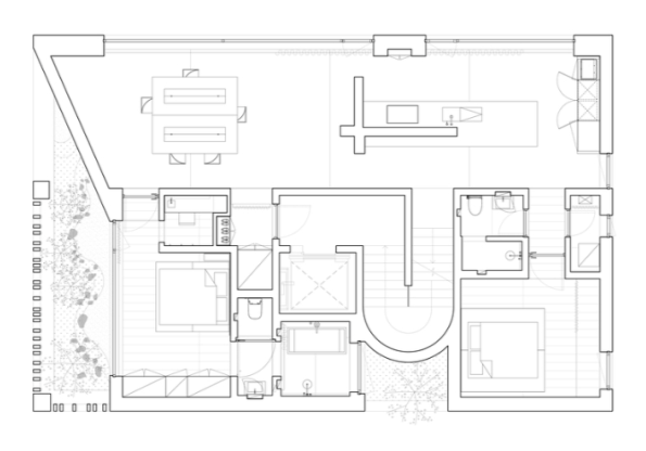
顶层的办公空间不仅作为工作场所,也拥有居住属性。设计上兼顾了与整体建筑风格的协调性。
△四层平面图
△五层平面图
办公区采用开放式的布局,以提高空间的利用率和促进团队成员之间的沟通协作。
大面积的落地窗让自然光线充足地洒入室内,同时也为办公人员提供了开阔的视野和愉悦的工作环境。
休息区与办公区相邻,为员工提供了一个放松身心、进行非正式交流的场所。茶水吧台的设计采用了水磨石中岛台,这一元素为空间增添了一份独特的质感与现代感。
人们可以在这里休息、交流,享受一杯茶或咖啡,同时也增加了工作环境中的互动性与活力。
此外,顶层空间还包括三间卧室,设计上采用简洁的线条和自然材料,确保了宁静且舒适的氛围。木地板与混凝土墙面的搭配,不仅营造出自然质感,也让空间显得更加温馨与平衡。
Raw House」通过简洁而精确的设计,创造出一个既适应城市环境,又与自然紧密相连的静谧空间。
客服
消息
收藏
下载
最近












































