查看完整案例

收藏

下载
在以往所有的文明中,能够在一代代人之后存下来的是物、是经久不衰的建筑物。而今天,看到物的生产、完善和消亡的却是我们自己。后物质时代,人们的生活开始走向情感与精神世界。
In past civilizations, what endured across generations were objects – timeless buildings. Today, we witness the production, refinement, and demise of objects.
In the post-material world, life increasingly focuses on emotion and spirit.
▼餐厅外观,exterior of the restaurant©吕晓斌
“福顺小馆”位于有着独特文艺气场和松弛气质的蛇口G&G,是一个约300平方米的低成本旧改加临建项目,我们试图在保留工业记忆与激活社区活力之间找到平衡,完成一场关于新旧对话、在地建构与空间体验的实验。
Located in Shekou’s G&G – an area with distinctive artistic and relaxed character – Fushun Bistro is a low-cost renovation and temporary construction project covering approximately 300 sqm. It balances industrial memory preservation with community activation, serving as an experiment in old-new dialogue, local construction, and spatial experience.
▼室内概览,overview of the indoor space©吕晓斌
一、场域精神:从“Grass and Glass”到“烟火与建构”
Spirit of Place: From “Grass and Glass” to “Vernacular Life and Construction”
G&G创意社区的前身——南星玻璃加工厂,承载着蛇口工业时代的集体记忆。以“Grass and Glass”(芒草与玻璃)为灵感锚点,将“草根精神”与“工业遗存”的张力转化为空间叙事的主线。
G&G Creative Community occupies the former Nanshan Glass Factory, embodying Shekou’s industrial heritage. Using “Grass and Glass” as a conceptual anchor, the design transforms the tension between “grassroots spirit” and “industrial remnants” into its spatial narrative.
▼餐厅外观,exterior of the restaurant©吕晓斌
旧建筑的外立面被完整保留仅做局部结构修补,甚至包括上面的斑驳和涂鸦印记。两座新旧建筑之间,一条刻意保留的狭窄楼梯成为空间叙事的核心——通过向上收窄的尺度与顶部天光引导,构建出从工业废墟到烟火社区的蜕变路径。行走其间,温润的老木扶手、从螺纹钢立柱渗入的碎片化街景,以及尽头隐约传来的餐具碰撞声,共同编织出渐进式的空间韵律。
The original facade was preserved with minimal structural repairs, retaining its patina and graffiti. A deliberately kept narrow staircase between old and new structures forms the narrative core – its tapering form and skylight guide visitors from industrial ruins to vibrant community space. Aged wooden handrails, fragmented street views through steel columns, and distant tableware sounds create progressive spatial rhythm.
▼右侧加建的玻璃房子,the new glass volume©吕晓斌
▼以现代材料重新诠释传统坡屋顶形制,reinterpreting traditional sloped roofs with modern materials©吕晓斌
新体量的轻盈介入:右侧加建的玻璃房子以黑色铁艺框架与波纹铝板屋顶勾勒出轻盈轮廓,以现代材料重新诠释传统坡屋顶形制。波纹铝板的工业感与老瓦片壁灯的温润形成对话,玻璃立面的通透性则消解了新旧体量以及园区的边界,让建筑成为连接历史与当下的媒介。
▼新旧关系,the relationship between old and new©如室建筑设计事务所
The new glass volume on the right features a black steel frame and corrugated aluminum roof, reinterpreting traditional sloped roofs with modern materials. Industrial aluminum panels contrast with warm tile wall lamps, while transparent glass dissolves boundaries between old/new structures and the surroundings.
▼黑色铁艺框架与波纹铝板屋顶,a black steel frame and corrugated aluminum roof©吕晓斌
二、空间叙事:框景与烟火剧场
Spatial Narrative: Framed Views and Living Theater
福顺小馆的改造拒绝“博物馆式”的怀旧,转而通过空间操作构建动态的生活剧幕。以“窗”为媒介,将城市景观、自然绿意与人间烟火编织成一张立体叙事网。▼窗景,framed view©如室建筑设计事务所
Rejecting “museum-like nostalgia,” the renovation creates dynamic living scenes through window design. Using the window as a medium, it weaves urban landscapes, natural greenery, and everyday human activity into a three-dimensional narrative tapestry.
▼黑色铁艺框架与波纹铝板屋顶,a black steel frame and corrugated aluminum roof©吕晓斌
旧建筑二层的窗景一开始便吸引了我们,在充分考察周边环境的互文关系后,通过微调窗户的位置和尺寸,以及在可借景处克制的增加了几处窗口(从造价和结构两方面精确衡量)。
The view from the windows on the second floor of the old building immediately captured our attention. After thoroughly examining the dialectical relationship with the surrounding environment, we fine-tuned the positioning and dimensions of the windows, while cautiously adding a few openings at strategic viewpoints—with precise consideration given to both construction costs and structural integrity.
▼增加的几处窗口,adding a few openings©吕晓斌
▼二层的窗景,framed views on the upper level©吕晓斌
转角悬窗:二楼转角处的方窗将行道树的枝叶框入室内,随四季更迭的动态画幅模糊了建筑与自然的界限。
坡顶天窗:倾斜坡屋顶上的圆形天窗,将深圳多变的云影引入空间,暗合中式园林“借景”的智慧。
横向长窗:打开旧建筑正立面,制造如同电影宽银幕的水平长窗,将街巷的市井百态转化为就餐者的“背景动画”,形成内外互动的戏剧性。
– Corner Window: Frames street tree branches, blurring architecture-nature boundaries across seasons.
– Skylight: Circular opening introduces Shenzhen’s changing cloudscapes, echoing Chinese garden “borrowed scenery” principles.
– Horizontal Window: Widescreen-like frame turns street activity into diners’ “background animation,” enabling inside-outside interaction.
▼横向长窗,horizontal window©吕晓斌
▼转角悬窗,corner window©吕晓斌
▼窗框细部,window frame detail©吕晓斌
三、在地建构:材料的记忆与重生
Local Construction: Material Memory and Rebirth
项目以“低技高感知”的材料策略,将废弃物料转化为建构诗篇。老木头的温度:从山东回收的老榆木成为墙面覆层、餐桌台面与楼梯踏板。木材的裂痕与虫蛀痕迹被刻意保留,与波纹铝板、玻璃形成粗粝与精致的对话。
A “low-tech, high-sensory” material strategy transforms waste into architecture:Reclaimed Elm Wood:Used for walls, tables, and stairs, with cracks and wormholes preserved to contrast with aluminum/glass.
▼餐桌台面的老榆木,reclaimed elm wood used for tables©吕晓斌
▼墙面覆层的老榆木,reclaimed elm wood used for walls ©吕晓斌
波纹铝板的工业叙事:屋顶与局部立面采用的银色波纹铝板,既呼应原玻璃厂的金属记忆,又以当代语汇重构传统瓦屋面肌理。阳光照射下,铝板产生的漫反射与玻璃房子的透明性形成虚实交响。
Corrugated Aluminum:References the glass factory’s metal heritage while reimagining traditional roofing. Sunlight diffusion creates interplay with transparent glass.
▼屋顶采用的银色波纹铝板,corrugated aluminum panels used for roof ©吕晓斌
铁艺与瓦片的转译:黑色做旧铁艺框架以极简线条勾勒传统窗棂意象,而嵌入墙体的老瓦片壁灯则如同从废墟中生长的光之雕塑,既延续了工业记忆,又赋予空间质朴的温度。
Steel and Tile Elements:Blackened steel frames suggest traditional windows; embedded tile lamps serve as “light sculptures” preserving industrial memory.
▼黑色做旧铁艺框架以极简线条勾勒传统窗棂意象,Blackened steel frames suggest traditional windows©吕晓斌
四、新旧共生:一场未完成的城市实验
Old-New Coexistence: An Unfinished Urban Experiment
福顺小馆的改造拒绝“完美”的完成态。设计师有意保留施工过程中的偶然性痕迹:混凝土修补的色差、新旧墙体交接处的未封闭缝隙、洗手间外一颗歪脖子树被小心又随意的保留……这些“不完美”成为空间真实性的注脚,暗示着建筑始终处于动态演变的进程中。
The design intentionally retains construction traces: color variations in concrete repairs, unsealed wall junctions, and a preserved slanted tree near restrooms. These “imperfections” reflect ongoing spatial evolution.
▼保留墙面上混凝土修补的色差,color variations in concrete repairs are preserved©吕晓斌
▼长窗外的行人成为就餐者眼中的风景,passersby become part of the dining experience©吕晓斌
更值得玩味的是,项目通过空间开放性激活社区参与:长窗外的行人成为就餐者眼中的风景,而餐厅内的灯火与人影亦成为街巷的夜间剧场。这种双向渗透的设计,让建筑成为社区生活的“催化剂”。
Spatial openness enables community engagement: passersby become part of the dining experience, while restaurant activity contributes to street life after dark.
▼装饰细部,decoration detail©吕晓斌
结语:废墟之上,烟火生长
Conclusion: Life Emerging from Ruins
在“爆改”盛行的时代,福顺小馆提供了一种更具反思性的旧改范式:它不以颠覆历史为代价,也不陷入符号化的怀旧叙事,而是通过理性精准的空间操作,让新旧材料、记忆与功能在碰撞中产生化学反应,最终呈现出一种接地气的松弛。在这里,工业遗产不再是需要被瞻仰的标本,而是化作滋养日常生活的土壤——正如G&G社区的名字所隐喻的,芒草(Grass)在玻璃(Glass)废墟中自由生长,而建筑,终将回归服务于人的本质。
Amidst trendy “extreme makeovers,” Fushun Bistro offers a thoughtful renovation model. Through precise spatial interventions, it sparks dialogue between materials, memory, and function – creating grounded authenticity. Industrial heritage becomes daily-life infrastructure, like grass (Grass) growing through glass (Glass) ruins, returning architecture to human-centered purpose.
▼夜景,night view©吕晓斌
▼剖切轴测,axonometric©如室建筑设计事务所
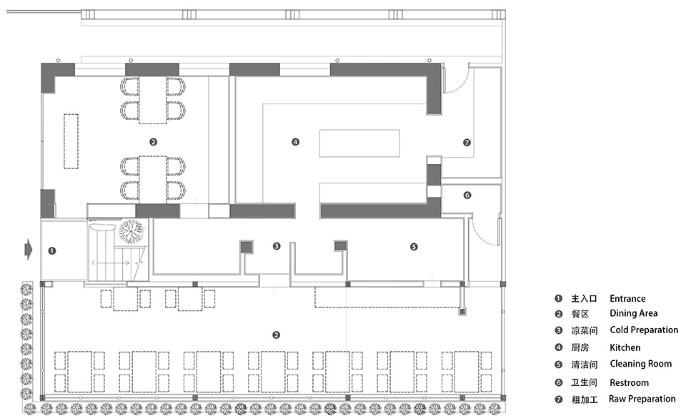
▼一层平面图,ground floor plan©如室建筑设计事务所
▼二层平面图,first floor plan©如室建筑设计事务所
项目名称:福顺小馆
设计方:如室建筑设计事务所 Ruhaus Studio
项目设计& 完成年份:2025
主创及设计团队:王艺儒、朱丹丹、李安、黄骏科、彭小健、赵玉立
项目地址:广东省深圳市蛇口G&G创意社区
建筑面积:224㎡
摄影版权:吕晓斌
客户:福顺小馆
Project name:Fusionality
Design:Ruhaus Studio
Design year & Completion Year:2025
Leader designer & Team:Yiru Wang, Dandan Zhu , An Li, Junke Huang, Xiaojian Peng, Yuli Zhao
Project location:G&G Community,Shekou,Shenzhen
Gross Built Area( Square meters):224㎡
Photo Credits:Xiaobin Lü
Clients: Fusionality
客服
消息
收藏
下载
最近





































