查看完整案例

收藏

下载

翻译
Данный проект посвящен разработке дизайна интерьера отеля в здании, находящемся в деловом районе города Алматы, Казахстан.
В условиях динамичного развития туристической отрасли в Республике Казахастан, город Алматы занимает особое место как культурный и экономический центр страны.
Отели играют ключевую роль в формировании комфортной инфраструктуры города, обеспечивая гостей качественным размещением, сервисом и развивая как культуру, так и индустрию гостеприимства, тем самым повышая туристическую привлекательность страны, стимулируя экономический рост и создавая новые рабочие места.
This project is dedicated to the development of the interior design of a hotel in a building located in the business district of Almaty, Kazakhastan.
In the context of the dynamic development of the tourism industry in the Republic of Kazakhstan, the city of Almaty occupies a special place as the cultural and economic center of the country.
Hotels play a key role in shaping the comfortable infrastructure of the city, providing guests with high-quality accommodation, service and developing both culture and the hospitality industry, thereby increasing the tourist attractiveness of the country, stimulating economic growth and creating new jobs.
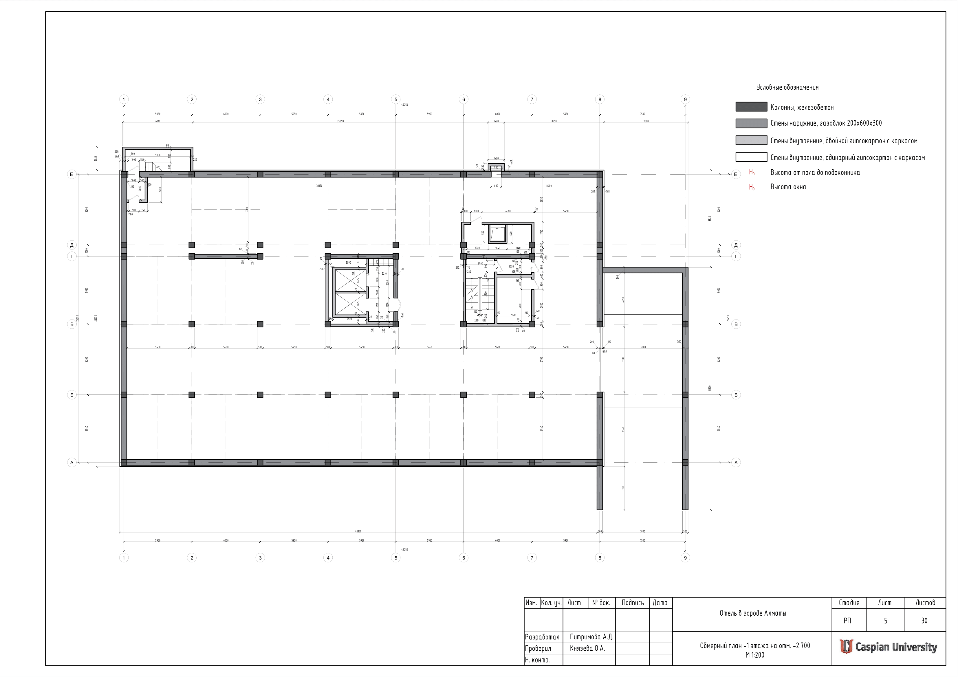
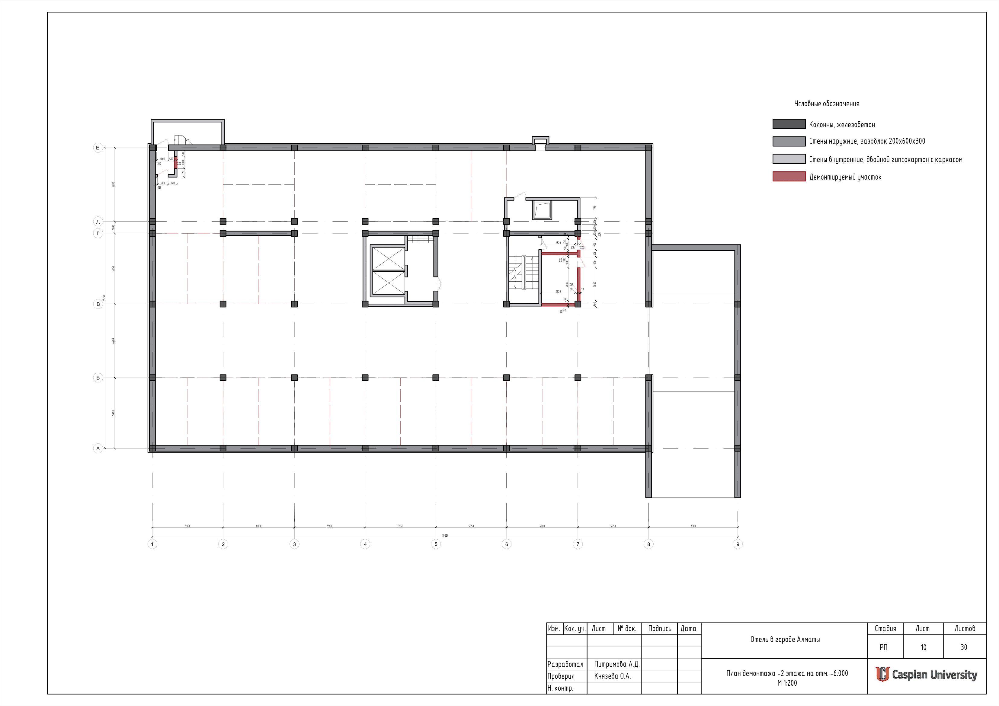
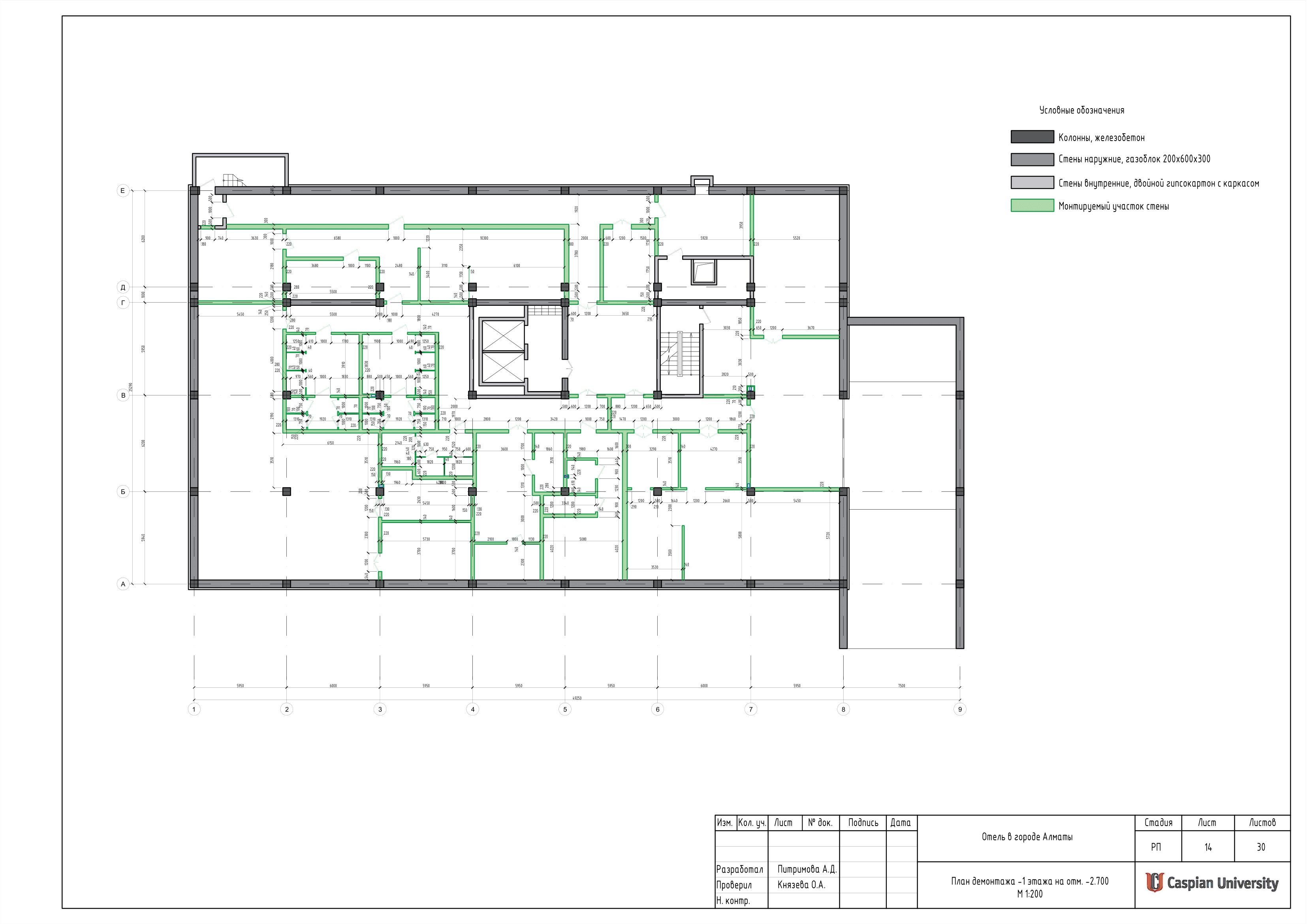
На данном этапе было принято решение по демонтажу внутренних ненесущих перегородок на всех этажах, помимо -2 этажа (второго подземного уровня). Данный -2 этаж будет выполнять свою изначальную функцию подземного паркинга.
At this stage, it was decided to dismantle the internal curtain walls on all floors, except for the -2nd floor (second underground level). This -2nd floor will fulfill its original function of underground parking.
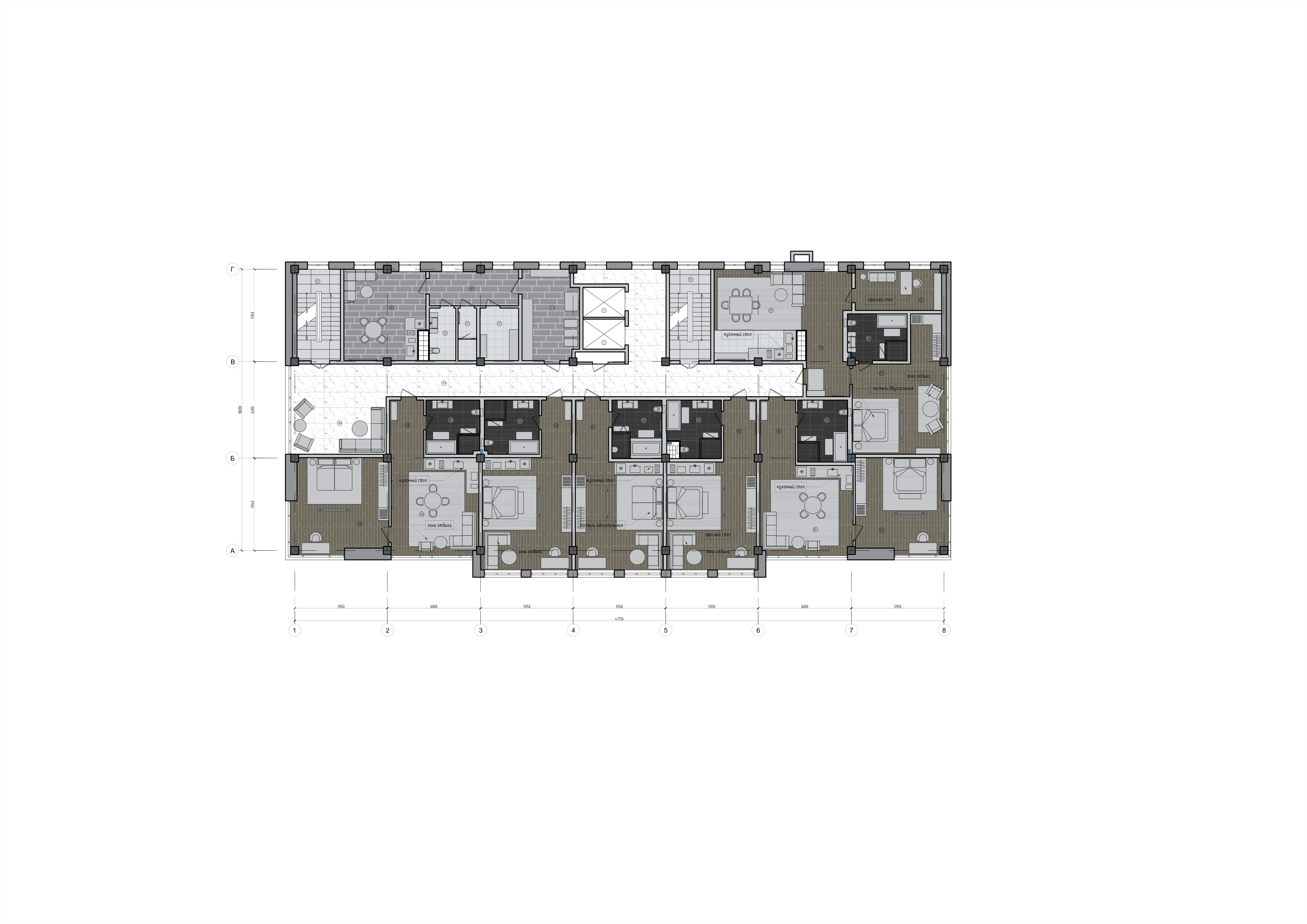
Изначально, типовой этаж начинался со 2 этажа и заканчивался 6 этажом. В последствии, типовой этаж будет начинаться с 3 этажа.
Initially, the standard floor started with the 2nd floor and ended with the 6th floor. Subsequently, the standard floor will start from the 3rd floor.
После утверждения планов по демонтажу внутренних перегородок, были созданы планы по монтажу новых.
After the approval of the plans for the dismantling of the internal partitions, plans for the installation of new ones were created.
После составления планов демонтажа и монтажа, были выполнены работы по созданию планов напольных покрытий и расстановки мебели.
After making plans for dismantling and installation, work was carried out to create plans of floor coverings and furniture arrangement.
Дальше, вы можете посмотреть на 3D визуализацию некоторых интерьеров. Главным стилевым направлением, выбранным для данного проекта, стал ар-деко с использованием элементов африканской культуры.
Next, you can look at the 3D visualization of some interiors. The main style direction chosen for this project was Art Deco using elements of African culture.
客服
消息
收藏
下载
最近

























