查看完整案例

收藏

下载
这所新的建筑行业职业学校位于瑞士苏黎世市中心地段,由Gunz & Künzle建筑事务所设计。建筑在尽可能多设置教室的同时,也为周边社区创造了具有价值的公共空间。
The new vocational school for construction trades is located in a central area of Zurich, Switzerland. Gunz & Künzle Architects designed the building to maximize the number of classrooms while also creating valuable public spaces for the neighborhood.
▼学校外观,exterior of the school ©Federico Farinatti
▼学校外观,exterior of the school ©Federico Farinatti
建筑体量修长,沿街而建,并围合出一个开阔的内庭院,与一层的公共功能区相连。一层为架空层,作为桁架结构悬于地下室至首层的体育馆之上。虽然教室所在的上层楼面以高效网格化布局呈现,但架空层则形成一个开放的空间景观,学校可根据需要灵活使用。坚固耐用的材料、多功能家具与可拉式帘幕隔断,使得该空间不仅能举办展览和活动,还可作为实际建造的工作坊使用。
The slender building follows the street and creates a spacious courtyard that connects to the public functions on the school’s first floor. This piano nobile, which acts as a truss frame structure, is suspended over the gymnasiums that extend from the basement to the ground floor. While the upper floors of classrooms are organized efficiently in a grid, the piano nobile forms an open landscape that the school can occupy flexibly. Robust materials, multifunctional furniture, and curtain partitions allow for exhibitions, events, and even practical building workshops.
▼一层架空层,Ground floor overheads ©Federico Farinatti
▼一层架空层,Ground floor overheads ©Federico Farinatti
项目采用混凝土结构,提供了坚实的框架,可根据不同需求进行填充与完善。这种“建构组件”的方式不仅是一种可持续策略,也形成了独特而开放的建筑语言,既具辨识度,又能适应多样的使用方式与后期转化。最终呈现的是一种不依赖于预设图像的建筑形式——它将“建造”与“使用”的过程本身作为建筑的主题。
The concrete structure of this project provides a sturdy framework that can be filled in and refined as needed. This construction kit offers both a strategy for sustainability and a versatile architectural vocabulary that is distinctive yet open to appropriation and adaptation. The result is an architecture that is not based on preset images, but rather makes the construction and appropriation process itself its subject.
▼采用混凝土结构,the concrete structure ©Federico Farinatti
▼混凝土结构楼梯间,the concrete staircase space ©Federico Farinatti
▼混凝土结构走廊,the concrete corridor ©Federico Farinatti
▼混凝土结构走廊,the concrete corridor ©Federico Farinatti
▼体育馆,gym ©Federico Farinatti
▼混凝土支柱,concrete pillar ©Federico Farinatti
▼茶水间,pantry ©Federico Farinatti
▼教室,classroom ©Federico Farinatti
▼多功能教室,multi-function classroom ©Federico Farinatti
▼多功能教室,multi-function classroom ©Federico Farinatti
▼场地区位,site location ©Gunz & Künzle Architekt
▼场地平面,site plan ©Gunz & Künzle Architekt
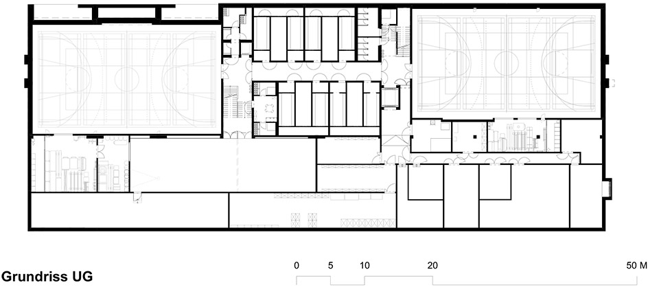
▼地下一层平面,basement plan ©Gunz & Künzle Architekt
▼一层平面,ground floor plan ©Gunz & Künzle Architekt
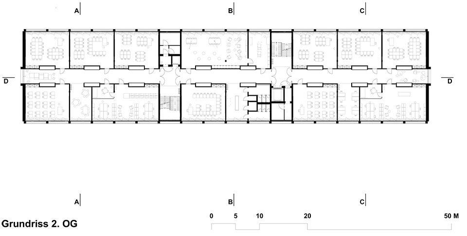
▼二层平面,first floor plan ©Gunz & Künzle Architekt
▼三层平面,third floor plan ©Gunz & Künzle Architekt
▼四层平面,fourth floor plan ©Gunz & Künzle Architekt
▼阁楼层平面,attic floor plan ©Gunz & Künzle Architekt
▼屋顶平面,roof plan ©Gunz & Künzle Architekt
▼立面图,elevation ©Gunz & Künzle Architekt
▼剖面图,section ©Gunz & Künzle Architekt
Client: Bildungsdirektion Kanton Zürich / Baudirektion Kanton Zürich
Architecture: Gunz & Künzle Architekt*innen (GP Partner)
Construction management: Jaeger Coneco AG (GP Partner)
Supporting structure: Ingeni SA Zürich
HVAC planning: Polke, Ziege, von Moos AG
Electrical planning: R+B Engineering AG
Landscape architecture: Kollektiv Nordost
Façade planning: EBP Schweiz AG
Art on the building: Interior: Marie Schumann, Exterior: Laurent Güdel, Michal Florence Schorro, Giona Bierens de Haan & Raphael Raccuia
Graphics / signage: mdbuero
客服
消息
收藏
下载
最近


















































