查看完整案例

收藏

下载
我们本就不需被定义,不是吗?当我们被规训得井然有序时,是否也曾想过,跳过一纸蓝图、一道框线?这种冲动,是感知,是允许。世界从不急于显形,在这空间中流动着的,不是具象的火焰;而是对热情的延宕与保存,是一份即将到来的,沉稳的炽烈。
破”,并非喧哗。它起于无声处,于火中沉思,于灰烬中孕育,等风掠过,才看见光的走向。设计之为设计,是否总循着“理所当然”的路径?图纸熟悉,视线惯性,方案反复,我们是否已在精准中困顿,在美学中驯服,在规则中停滞?
可就在沉默的罅隙间,有些什么,总会悄然生长。那是来自不甘的枝芽,来自现实的注视,更来自一种,不肯被定义的希望。所谓“打破”,不是挥臂高呼,而是一种更清明的觉察。
当“金箍棒”轻落尘埃,当“火尖枪”插入地面,不是声响震天,而是——火起,地裂。
自天而降的,不是神力,而是反复锤炼后的思维与空间哲学的深层触达。是大圣、是哪吒,挣脱命定之轨后,那一刻的再造——为沉闷的体系划出一道缝隙,让风,得以穿行。
破开黑暗,是为了光的进驻;破开行业的惯性,是为了让客户,不再只是“需求方”,而是“共创者”。
以“火”之名,不是因其猛烈,而是因其澄明。燃烧,是为了照亮;而照亮,是为了——看见。
这一次,在杭州的高楼之间,设计师为奔波于城市的创作者,开辟了一隅静处。城市仍旧喧嚣,而此地,却隔绝了尘世的回音。火焰悄然跳动,光与影在沉静中缓缓流转,留下一种被时间温柔包裹的迹象。
设计师未曾试图用符号去“表达”它,而是用一种近乎隐忍的姿态“安放”它,在火的肌理中冒出气息,而非浮于表面,这是内心被唤起的某种动力,在黑色中寻找光亮,在规则中保留野性。
宣纸的温润,与石裂的力量相互映照,一个柔,一个刚,一个近于墨香,一个逼近山势。纸与火的并置,不为冲突,只为对照——就像人与人之间最深的理解,往往来自差异中的共鸣。
雕像立于一侧,来自古典艺术的符号,面对落地窗,注视着远处的江水与城市。她的存在让空间更具思考的气息,沉稳、不语。这个空间凝聚着设计者内心的节奏和方向,线条克制,比例严谨,情绪被控制在材料的温度之内。
动线是环绕的,不疾不徐,每一个转角,都刻意避开了直白的亮色与过度的形制,只让光自己在缝隙中爬行,照出暗面轮廓,也照亮细节中被时间打磨的温度。
空间正中,柱形结构,从顶而来,这不是为了功能而生,也不为装饰而设。伫立与倾斜间,是一种沉默的意志,有一种被封印的巨神,也似一种从天而降的神物,是打破一切既定秩序的启示之锤。
这是“火”的另一种呈现,不是烈焰,而是冲击;不是照亮,而是击穿。如挪吒的火尖枪,击破成见,本想自由。
设计师说,这是“装置”,但不要赋予它固定的解读,它可以是定海神针,也可以是一枚投向地表的陨石。这是一种力量的象征,但也可能什么都不是,只是一种机制的错觉;或者说,你若愿意,它便成形;你若无意,它便归于虚空。
它的存在,是对空间惯性的一次断裂。
它不对称,不服帖,甚至有些“占据”了空间的张力,但正是这份不合常规,让人不能忽视它——像人生中那些突如其来的顿悟,总是不合时宜,却又改变方向。
它将整间屋子,拉入一种极端的对话之中。黑色的背景、斜面的石墙、柔和的宣纸,都因它而重新获得节奏与呼吸。
当你站在它前面,忽然会明白:这不是物理的结构,而是一种情绪的凝结,一种思想的重量。
在它身上,看不见设计的“手法”,却能感受到设计的“情绪”。
空间以黑为底。这是多数人不敢轻易触碰的色彩,因为它沉重,肃穆,容易让人产生距离。然而在这里,黑不是拒绝,而是容纳;不是掩盖,而是安放。
它像一汪深水,看似无波,实则下层暗涌。它没有鲜艳的吸引力,却拥有绵延的牵引力——让你一步步放慢脚步,听清自己在空间中落下的每一个呼吸。
黑,是一种慢热的热情。
它不是那种张扬在外的炽烈火焰,而是埋在炉底的那一簇红芯,稳定、安静,却始终不灭。设计师在这黑色之中,埋藏了自己的性格。一半安静,一半热烈;一半专注沉思,一半大刀阔斧。
他选择了黑色,是为了将一切喧哗交还寂静,也为了在沉静中蓄养能量。
如同闭关修行者,不动声色地酝酿改变;又如深夜写诗人,孤灯之下,将内心最深处的情绪层层展开。
而就在这厚重的黑色之上,他放置了许多不合逻辑的构成:大块面的交错,斜角的介入,突兀的装置——这些看似“反常”的表达,却恰恰成为他突破内敛的路径。
黑,是他自处的方式;冲突的结构,是他出击的语言。
当我们再回到原点,这确实是一个办公空间。可它并不急于说明“办公”该有的样子,也从未主动贴上“职能”或“效率”的标签。
它拒绝被定义,也拒绝定义他人。它不服从流程,不迎合标准,如同那团未熄的火,静静燃烧在秩序之外,破开常规的边界,只为点燃人与人之间真实的温度。
“火”不是驱赶黑暗的工具,而是情绪的引线,是灵感的热源,是工作与生活之间,一种更深的连接。而这团火,也是一种“破”的力量——破除标签,破除沉默,让真实从缝隙中透出光来。
空间中,没有什么是真正为了“效率”而存在的,却处处都在促成“表达”。表达思想,表达气质,表达你是谁。它不谋求统一的节奏,而是在悄然之间,打破人们对“办公”空间的想象惯性。
你可以说,它是一个艺术场所;也可以说,它是一个关于“办公”的诗意注脚。它既承载日常,也包容非常——如火一般,在灰烬中孕育热力,在安静中涌动张力。它不顺从预设的语法,而是以破为起点,重写表达的路径。
设计之外:一次次未被提及的返工里,每一个被精算成“节点”的灵感里;在会议桌上,创意要被压缩成KPI;在施工现场,想象力要让位于预算。人们谈效率、谈落地、谈控制成本;当空间成为商品,当审美成为模板,当“火”都被困于规定好的光源——也许,真正需要被打破的,并不是图纸上的线,而是这场沉默得过于久远的共谋。
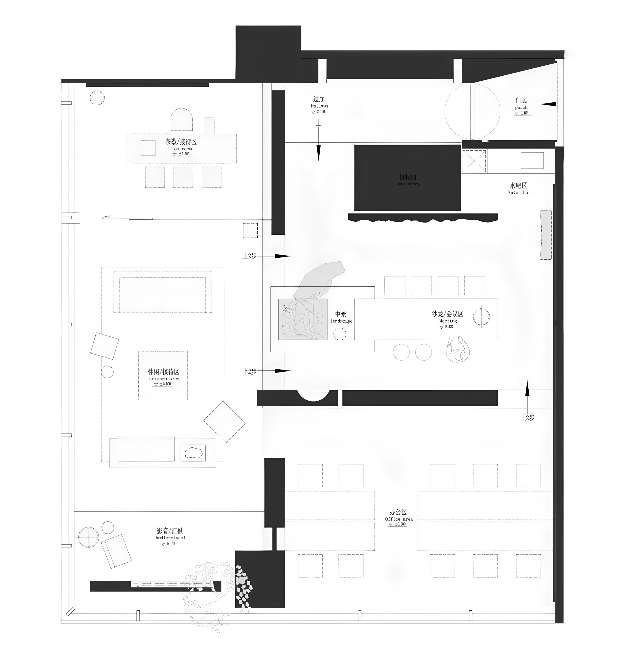
△ 项目平面图
项目名称|“火”
项目地址|中国 杭州深蓝国际中心
项目面积|200㎡
设计机构|十合设计(杭州)
创意总监|陈可志 王华强
主创设计|陈可志 王华强
软装设计|陈可志 王华强
参与设计|陈雨虹 程钦荣 徐凯翔
施工全案|十合设计(杭州)
项目管理|吴正富 程钦荣
竣工时间|2025 年 5 月
石材单位|陈云 张银屏
艺术漆单位|姜工 吴建益
空间摄影|瀚墨视觉-壹高
文案撰写|瀚墨天瑕 陈可志
陈可志(左)/毕业于中国美术学院 王华强(右)/毕业于中国美术学院 十合设计联合创始人/创意总监
十合设计 2017 年成立于杭州,专注于室内设计领域,作品涵盖酒店、私宅、会所、办公、商业空间等,在设计理念上,侧重于自然、建筑、空间与人之间的深层次链接,以实现功能使用与人文情怀的和谐共生。作品在Archilovers(意大利)、Archello(瑞典)、World Architecture Community(N/A)、dwell(美国)、Architizer(美国)等媒体发表。
客服
消息
收藏
下载
最近






















































































