查看完整案例

收藏

下载
PART 1
这个项目是我们去年冬天接手的。
户型平面非常有意思,它既有一些限制也有一些禀赋,这些限制和禀赋这给我们带来了不小的挑战。
而普通客户是非专业的,大概率会对在这种空间里,怎么组织生活,缺乏想象力,也就是说,他们很难用好和处理这个户型。
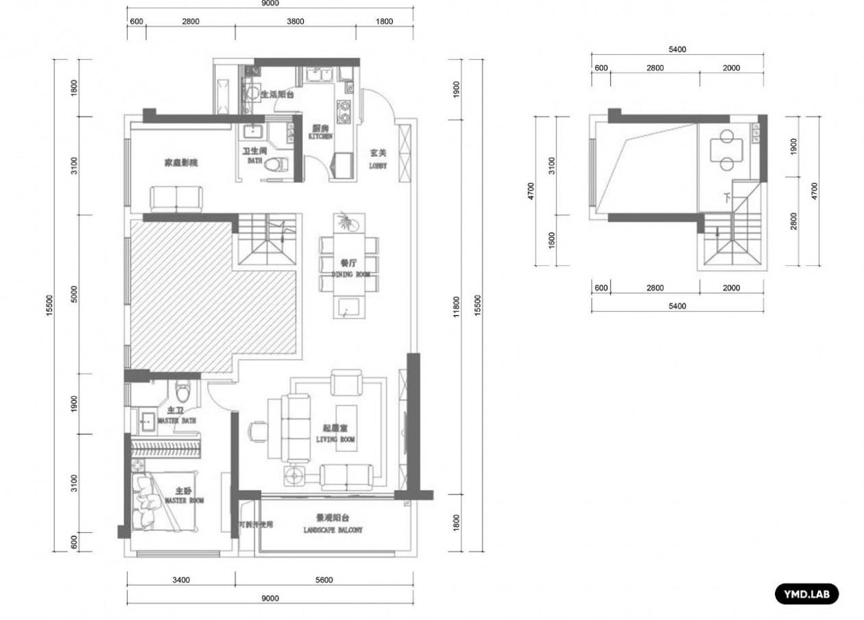
这个原始平面上下 2 层,楼上有个小房间,而一楼是 2 房格局,现有的餐厅区域采光不好。
于是我们的核心任务是:有想象力地在这个户型中,创造出场景和生活可能性,并作为生活指南交付给客户。
很快我们就给了甲方几稿平面方案,达成共识后,我们也快速的推进了深化设计,从而这个项目得以在今年呈现。
也正因为这个平面特别有挑战,于是我以此平面为基础,在设计师社群举办了一次平面优化大赛,我想看看大家对这个平面有何反应、有何想象和创造。
大家提供的求解方案里,有许多有趣出彩,甚至脑洞大开的内容,为我带来了很多启示。唯一遗憾的是,我们在完成这个样板间项目时,还没有进行这次比赛,如果是这次比赛之后展开设计,我们博众家所后长,再完成设计,那么项目的结果可能会更加有想象力,更加性感,更为出色。
一等奖 / First Prize
二等奖 / Second Prize
三等奖 / Third Prize
优秀奖 / Excellence Prize
以下是我们完成项目设计所采取的户型平面,大家也可以和以上比赛作品做对比。
YMD方案 / YMD Plane
项目名称:华润 · 贵阳九悦
设计面积:125㎡
设计单位:YMD岳蒙设计
完工时间:2025年4月份
客服
消息
收藏
下载
最近













































