查看完整案例

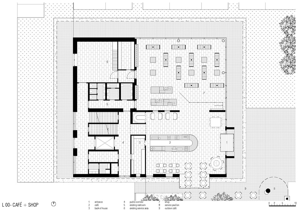
收藏

下载
为纪念经典榛子威化饼诞生百年,Loacker品牌委托MoDusArchitects对其位于奥地利海因费尔斯的旗舰店进行全面改造。这一空间不仅是零售门店,更是品牌核心价值的具象表达——它是品牌与消费者之间的会客厅,尤其在夏季,每天吸引超过3,500名来自世界各地的访客。
To mark 100 years of its iconic hazelnut wafer, Loacker entrusts MoDusArchitectswith the complete transformation of its flagship store in Heinfels, Austria. More than just a retail store, this space embodies the beating heart of the brand: a meeting point between company and consumer, welcoming a large number of people from all over the world particularly in the summer, where it reaches more than 3,500 visitors each day.
▼室内概览,overview of the indoor space©Marco Cappelletti
MoDusArchitects 的介入包括对一层咖啡厅和商店的焕新设计、位于咖啡厅上方的手工威化工坊、以及新增的服务亭与户外座位区(后者仍在建设中)。最终呈现的是一个全新的品牌宇宙——Loacker Galaxy(Loacker星系),既致敬家族品牌的历史,也展望其面向未来的愿景。
▼轴测图,axonometric©MoDusArchitects
The intervention by MoDusArchitects includes the restyling of the café and store located on the ground floor, the pastry workshop located directly above the café, and the design of a new service pavilion with an adjoining outdoor seating area, which is yet to be fully completed. The result is a new Loacker signature universe—Loacker Galaxy—that celebrates the brand’s family history and heralds its vision for the future.
▼令人兴奋、充满想象力又极具识别度的场所,a recognizable, exciting, and generous place©Marco Cappelletti
“Loacker Galaxy 是我们首次涉足零售空间设计。通过精心策划的空间布局、富有表现力的材质运用,以及尺度上的惊喜变化,项目将Loacker丰富的产品世界浓缩为一个令人兴奋、充满想象力又极具识别度的场所——唤起如孩童走进糖果店般的惊喜与期待。”——MoDusArchitects 联合创始人 Sandy Attia 与 Matteo Scagnol 表示。
“Loacker Galaxy represents our first foray into the world of retail. Through curated spatial choices, expressive use of materials, and surprising variations in scale, the project condenses Loacker’s vast offerings into a recognizable, exciting, and generous place – capturing the awe and wonder of a kid in a candy store.” — affirm Sandy Attia and Matteo Scagnol, co-founders of MoDusArchitects.
▼咖啡厅区域,cafe zone©Marco Cappelletti
项目以大胆的构筑手法和材质张力赋予Loacker旗舰店全新生命,品牌标志性的红色在这里获得了焕然一新的表达。
With an adrenaline rush of large, bold structures and a joyfully mixed tension of material choices, new life is injected into the Loacker flagship store in which the signature red of the Loacker brand finds renewed expression.
▼品牌标志性的红色,the signature red of the Loacker brand©Marco Cappelletti
室内空间由木材与不锈钢这两种主材构成,象征着Loacker的品牌故事:一个扎根于南蒂罗尔的小型家族企业,成长为享誉全球的食品工业品牌。材料的对话体现了一种核心的二元性——木材的温润呼应其手工艺传统,不锈钢的冷冽则象征其高效、现代化的生产系统。
The interiors, defined by the interplay of two primary materials—wood and stainless steel—embody the Loacker story: a small family business rooted in South Tyrol that has grown into a global industry. This material dialogue expresses a core duality, where the warmth of wood evokes Loacker’s artisanal heritage, while the crispness of stainless steel reflects the precision of its cutting-edge production facilities.
▼木材的温润与不锈钢的冷冽,
the warmth of wood contrasts with the crispness of stainless steel©Marco Cappelletti
一层的咖啡厅与商店由带有格状构造的木质吊顶贯通统一,这一吊顶抽象呈现了威化饼的网格肌理,在原有灰色石材地面上营造出温暖的反差氛围。入口处,咖啡厅以一件雕塑感十足的不锈钢吧台迎接访客,呼应后方商店中尺度巨大的不锈钢家具。
On the ground floor, the distinct spaces of the café and shop are unified by a coffered wood ceiling—an abstraction of the wafer pattern—that introduces a warm contrast to the cool gray tones of the existing stone floors. At the entrance, the café welcomes visitors with a sculptural stainless steel counter centerpiece, setting the tone for the shop’s large, steel furniture pieces.
▼格状构造的木质吊顶,a coffered wood ceiling©Marco Cappelletti
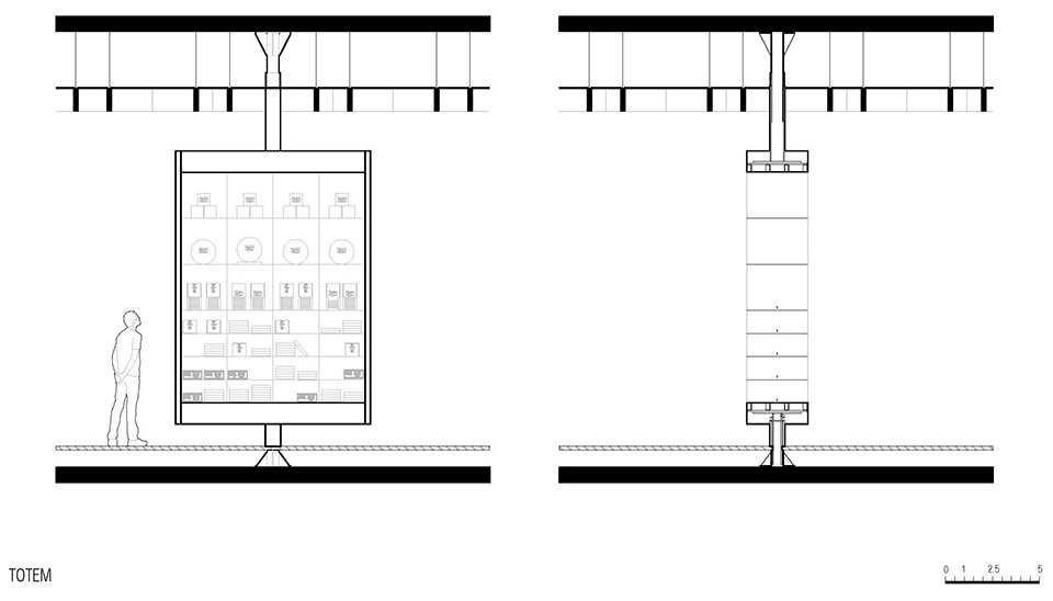
商店空间被构想为一座“风味星系”,十个不锈钢“图腾柱”成为陈列Loacker产品的视觉焦点。这些图腾结构本质上是一个个超大网格书架,尺寸达257 × 362 cm,强调空间内的丰富选择与充盈感。图腾安置于高出地面30 cm的可旋转钢柱上,可自由旋转,增强空间布置的灵活性,也进一步放大了“琳琅满目”的印象。在这片“图腾森林”的背后,是一面“自选混装”墙体,垂直分格将丰富多彩的糖果组合成一幅视觉图景。
The shop is conceived as a veritable “galaxy of flavors,” where ten stainless steel totems serve as striking display structures for the dazzling array of Loacker products. Each totem—an oversized grid of shelves measuring 257 × 362 cm—amplifies the sense of choice and abundance within the space. Mounted on pivoting steel columns elevated 30 cm above the floor, these totems can rotate freely, multiplying the possibilities for spatial configuration and enhancing the impression of plenitude. Behind this dynamic “totem forest,” a pick & mix display provides a visually engaging backdrop. Its vertical compartments leverage the sheer variety of sweets and their vibrant colors into a graphically driven showcase.
▼不锈钢网格书架,stainless steel grid of shelves©Marco Cappelletti
▼垂直分格将丰富多彩的糖果组合成一幅视觉图景,
vertical compartments leverage the sheer variety of sweets and their vibrant colors into a graphically driven showcase©Marco Cappelletti
位于楼上的威化工坊则邀请访客亲手体验威化制作。这一空间采用品牌标志性的“药丸”形态,呼应下方咖啡吧台与户外服务亭的造型。高低错落的地面与一盏巨型圆形灯具营造出戏剧性的氛围,让亲友可以从高处俯瞰整个制作过程。黑色的细部处理——包括柜体与栏杆——界定出清晰的边界,与红色瓷砖地面形成鲜明对比,衬托出闪耀的不锈钢操作台。
Upstairs, the wafer production workshop invites visitors to try their hand at crafting their own wafers in a unique setting—one shaped in the signature “pill” form that echoes the outdoor service pavilion and the café counter below. A change in elevation, combined with the presence of an oversized disc-shaped light fixture, lends the space a theatrical atmosphere: family and friends can peer down from above to observe the wafer-making process. The black millwork—whether cabinetry or handrails—defines the perimeter and creates a striking contrast against the red tiled floor, which is further offset by gleaming stainless-steel tables.
▼威化工坊的巨型圆形灯具,
an oversized disc-shaped light fixture in the wafer production workshop©Marco Cappelletti
▼鲜明的色彩对比渲染出戏剧性的氛围,
strong color contrast lends the space a theatrical atmosphere©Marco Cappelletti
▼亲手体验威化的制作过程,Hands-on experience in wafer making©Marco Cappelletti
▼可以从高处俯瞰威化的制作过程,
overlook the wafer making progress©Marco Cappelletti
▼从楼梯看向圆环吊灯,
view from the staircase towards the circular chandelier©Marco Cappelletti
新建的玻璃前厅将咖啡厅连接至未来的“榛子花园”及儿童游乐区。作为室外介入的一部分,服务亭承担起空间的过渡作用——一边隔离停车区域,一边为开放式咖啡区营造入口门廊,同时也作为室内材料与雕塑造型语言的预演。通过这次全面改造,Loacker旗舰店不仅焕新品牌形象,更成为品牌的重要地标。
A newly added glass vestibule connects the café outdoors to the future “Hazelnut Garden” and children’s playground. As part of the outdoor intervention, the service pavilion acts as a threshold, separating the parking area from the open-air café while offering a preview of the interior’s material palette and playful, sculptural forms. Through this transformation, the Loacker flagship store not only rejuvenates its image but also becomes a true landmark for the brand.
▼立面设计,facade design©Marco Cappelletti
“Loacker Galaxy”的设计旨在提炼品牌的精髓,并将其推向更具想象力的未来。精湛的工艺品质,结合产品、色彩与材料之间充满张力的互动,使旗舰店成为威化爱好者与设计爱好者的全新目的地。
“Loacker Galaxy” is designed to capture the essence of the Loacker brand while propelling it into new and imaginative territory. Impeccable craftsmanship, combined with a dynamic interplay of products, colors, and materials, transforms the flagship store into a destination for both wafer lovers and design enthusiasts.
▼场地平面,site plan©MoDusArchitects
▼咖啡厅轴测图,cafe axonometric©MoDusArchitects
▼商店轴测图,shop axonometric©MoDusArchitects
▼威化工坊轴测图,wafer workshop axonometric©MoDusArchitects
▼咖啡厅及商店平面图,cafe and shop plan©MoDusArchitects
▼威化工坊平面图,wafer workshop plan©MoDusArchitects
▼剖面图,section©MoDusArchitects
▼展架细部,totem detail©MoDusArchitects
Project Name: Loacker Galaxy
Address: Panzendorf 1969919 Heinfels, Austria
Architects: Modusarchitects (Sandy Attia, Matteo Scagnol)
Project Team: Sandy Attia, Matteo Scagnol, Camilla Cormanni, Leonardo Franzini, Martina Salmaso
Client: Loacker Moccaria International Gmbh
Competition Phase: 2023
Design Development: 2023—2024
Construction Phase: 2024
Opening: Store, Café And Laboratory: Early 2025; Pavilion: Summer 2025
Ground Floor(Store And Cafè): 500 Sqm
First Floor(Workshop): 280 Sqm
Outdoor Pavilion: 120 Sqm
Contractor: Bauunternehmung Di Walter Frey Gmbh
Subcontractors
Carpentry: Holzbau Lusser
Metal Façade And Fabrication: Horst Idl Metallbau Gmbh
Roofing: Rgo L Lagerhaus Gmbh
Mechanical Systems: J. Schmidhammer Gmbh
Electrical Systems: Elektro Ortner Gmbh
Drywall: Trockenausbau Weger Gmbh
Catering Equipment: Niederbacher Gmbh
Interiors, Metal Fabrication: Barth Innenausbau Kg
Interiors, Millwork: Bau- Und Möbeltischlerei Friedrich Wieser
Paint Services: Maler Und Vergoldermeister Kollreider
Tile Works: Georg Rohracher Gmbh
Furniture (Chairs and Seating): Billiani (Corolla and Frisée Collections)
Elevator: Tk Aufzüge Gmbh
Furniture (Chairs And Seating): Billiani (Corolla and Frisée Collections)
Photographer ©Marco Cappelletti
客服
消息
收藏
下载
最近


































