查看完整案例

收藏

下载
本项目位于一块拟建老年人社会住房的用地上,原有一栋三层旧学校建筑,由砂岩(marès)砌筑结构墙体和混凝土、陶土楼板构成。因其年久失修且不符合城市规划法规,无法保留,只能拆除。
On the plot where the Social Housing were built, primarily intended for the elderly, there was a building that we were obliged to demolish due to its non-compliance with urban planning regulations and its poor condition—there was no possibility of preserving it. It was a small, disused three-story school constructed with structural sandstone (marès) walls and concrete and ceramic ceilings.
▼项目概览,general view © Adrià Goula
▼街景,street view © Adrià Goula
项目的独特之处在于提出了“城市采矿”的概念,即将这座被拆除的建筑视为城市中可再利用的材料资源库。所有可用的拆除材料都经过分类处理,并被有效回收用于新建筑的建设之中。
The project’s distinctive strategy was the utilization of demolition materials from the old school as resources to construct the new building, practicing what we might call urban mining: where material resources come from the urban plot itself, resulting from the demolition of the pre-existing building.
▼建筑原状,original state of the building © Adrià Goula
▼回收石材,recycle stone © Adrià Goula
▼分析图,analysis diagram © HARQUITECTES
拆除工作完成后,几乎所有建筑废料都被按材质进行再利用。首先,约140立方米的陶瓷和混凝土碎块被用于填充半地下空间的地基和墙体。其次,约160立方米的砂岩被加工为约3000块巨石混凝土块。这些块体采用水泥和石灰作为结合剂,混合再生砂岩(占块体体积的40%),内部嵌入最大直径达30厘米的石块、砂岩碎石和砂岩砂(picadís)。每块混凝土块均由4×4米的大板切割而成,石材自然地裸露在块体表面,呈现出独特的纹理与质感。
Once the demolition was completed and materials were selected, nearly all the rubble was repurposed according to material type. First, pieces of ceramic and concrete elements (140 m³) were poured into the foundation pits and walls of the semi-basement. Second, all the sandstone (about 160 m³) was used to construct large blocks (approximately 3,000 units) of cyclopean concrete with cement and lime mixed with recycled marès stone (40% of the block volume), composed of large cobbles up to 30 cm in diameter, sandstone gravel, and picadís (sand, also from marès). Each block was cut with a large disc saw from a 4 x 4 m2 slab, so that the stones reappeared on the faces of the blocks.
▼立面,facade © Adrià Goula
▼立面细部,details of the facade © Adrià Goula
由于承重需求不同,顶层所用块体为100%石灰混凝土,其余楼层则为石灰与水泥混合制成。块体长约135厘米,高42厘米,每层楼块体宽度依次减小(分别为64、54、44和34厘米)。所有块体均在拆除工作结束后预制完成,在新楼主体施工开始前即已就位,从而显著缩短了整体工期。
The blocks for the top floor, bearing less load, are made of 100% lime concrete, while the rest of the floors combine lime with cement. These blocks, approximately 135 cm long, 42 cm high, and with variable widths for each floor (64, 54, 44, and 34 cm), were prefabricated once the demolition was completed, before commencing the construction of the new building. This approach significantly reduced the construction duration.
▼庭院与阳台,courtyard and balcony © Adrià Goula
▼凉廊与阳台,loggia © Adrià Goula
▼入口大厅,entrance hall © Adrià Goula
这些块体被垂直于街道方向堆砌,形成承重墙体,支撑着交叉层叠的胶合层板(CLT)木结构楼板。每层墙体厚度减少10厘米,使楼板可直接搁置于其上,进一步提升了施工效率。
The blocks were stacked to build load-bearing walls perpendicular to the street, supporting cross-laminated timber ceilings. On each floor, the walls reduce in thickness by 10 cm, allowing direct support of the timber panels, facilitating the speed of execution of the entire structure.
▼底层室内空间,ground floor interior © Adrià Goula
▼室内概览,general view of interior © Adrià Goula
▼公寓室内,interior of apartment © Adrià Goula
▼由室内看阳台,viewing the balcony from interior © Adrià Goula
在主墙体之间,以相同材料制成的13厘米厚隔墙(由一块60厘米宽的块体切割成四块)连接结构体系,同时与楼梯和电梯核芯共同构建出建筑整体的稳定框架。
Perpendicular to the main walls, 13 cm thick partition walls, constructed with the same cyclopean concrete and resulting from cutting a 60 cm wide block into four 13 cm sections, tie the structure of the entire building, together with the stair and elevator core.
▼公寓室内,interior of apartment © Adrià Goula
▼木材天花板,CLT ceiling © Adrià Goula
▼室内细部,details of interior © Adrià Goula
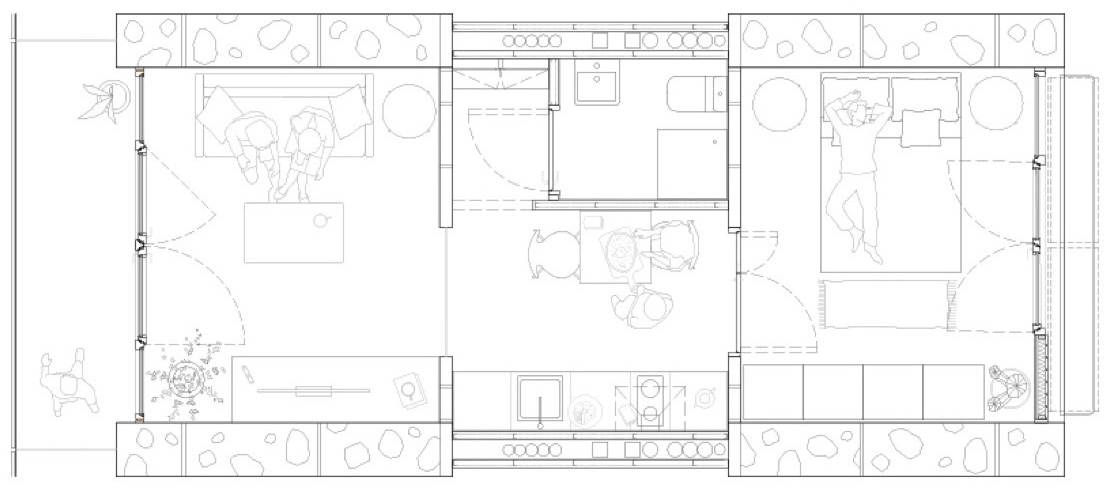
建筑的空间布局也呼应了这一结构逻辑。平面上,在转角处设置楼梯核芯,通向室内庭院的步道,再由此进入每一户住宅。除半地下层外,所有户型均为南北通透。半地下层及阁楼层的进深仅为标准层的一半,每户横跨两个结构单元。顶层设有大面积露台。每层还配置了共享空间,如洗衣间、休息区等,丰富了公共生活功能。
The entire spatial and programmatic organization of the building responds to the described structural system; the floor plan is organized with a stair core in the corner, providing access to a walkway in the interior garden, from where each apartment is accessed—all are through apartments except those on the semi-basement floor, which, like those on the attic floor, have half the depth of the typical floors and utilize two structural spans for each apartment. The top-floor apartments have large terraces. Each floor also has a communal area (laundry room, lounges, etc.).
▼轴测图,axonometric drawing © HARQUITECTES
▼楼梯,staircase © Adrià Goula
建筑立面则充分展现出其结构逻辑:端墙由逐层递减高度的预制块体构成,木结构楼板横向搁置其上;每户住宅面向街道一侧均设有通高木制阳台,阳台设有侧向不透明遮阳板和可调节的百叶窗,以应对东西向的日照。整座建筑在结构与形式上实现了高度统一,也体现出对材料循环利用和生态建造的深度探索。
The façade starkly displays the structural system: the end walls (vertical) of the prefabricated block walls, which decrease in height on each floor and support the timber (horizontal) ceilings, and, as the façade of each apartment, floor-to-ceiling wooden balconies with a lateral opaque strip and Venetian blinds to protect from the eastern and western sun.
▼材料细部,details of the martial © Adrià Goula
▼建造过程,construction process © Adrià Goula
▼平面图,plan © HARQUITECTES
▼公寓单体平面图,plan of apartment © HARQUITECTES
▼剖面图,sections © HARQUITECTES
Social housing 2104
Site: Palma de Mallorca, Balearic Islands
Architect: HARQUITECTES (David Lorente, Josep Ricart, Xavier Ros, Roger Tudó)
Collaborators: Anna Burgaya, Ángeles Torres, Montse Fornés, Cynthia Rabanal, Victor Jorgensen
Team: Xavier Suárez (quantity surveyor), DSM-arquitectes (structure), M7 enginyers (engineer), Societat Orgànica (environmental consulting), MC acústica (acoustics engineer), Joan Ramon Rosell (lime construction expert)
Project years: 2021-2022
Construction years: 2022-2024
Built area: 1.610 m2
Photographer: Adrià Goula
客服
消息
收藏
下载
最近






















































