查看完整案例

收藏

下载
项目名称:霄云路33号办公楼
位置:北京
设计单位:北京大象建筑设计有限公司
图片数量:31张
霄云路33号项目紧临第三使馆区,靠近机场高速与三元桥,地处燕莎商圈的黄金地段。在寸土寸金的北京东三环片区, 稠密的街区为项目提供了丰富的背景与使用人群,亦不可避免地带来了都市喧嚣。设计的挑战在于如何在此种场地条件下,整合在地文化、街区形态、使用功能、建筑尺度及人与空间的因素。尝试塑造城市界面的多种可能,打造出沉稳且具有内核的办公场域,处理好建筑与周边环境的关系,在与外界共栖的同时,打造国际化商务办公场景。
01在地性 – 顺应文脉肌理,缝补城市街区项目所处区域为北京典型的复合街区,写字楼林立商务氛围浓郁,周边分布高端公寓、居民住宅与沿街餐饮,烟火气十足。设计方案将两栋塔楼分别布置在L形用地的两端,86米高的1号楼紧临繁忙的霄云路,以建筑外观填补街道界面缺口,提升了区域形象。百米高的2号楼面对相对安静的东方东路,俯瞰使馆区和燕莎商圈。两栋楼以对公共开放的下沉广场衔接,喷泉、绿植、水幕错落有致,是可供观赏的绿化空间,亦是地下商业的室外延伸。
设计通过两栋单体建筑满足不同开发周期及功能需求,以楼间的公共空间强化空间秩序、加深建筑单体联系,渗透景观绿化,着力打造适合“24小时”生活的新一代办公生活综合体。
02功能性 – 加强配套功能,打造全时段办公园区1号办公楼为双大堂设计,首层入口大堂层高9米,外墙为隐框全玻璃幕墙,开敞通透的视野将室内外空间融为一体;顶部四层挑空设置为空中大堂,宛若哥特式教堂的尖拱形三维钢结构,支撑起通透的曲线玻璃幕墙,打破室内空间横平竖直的视觉感受,在引入室外自然光线的同时增加了空间趣味,让使用者直观感受空间的魅力。
2号楼办公楼处设置近似立方体的裙楼,两层高的大堂之上为会议厅与中小型共享会议室,塔楼首层到三层为餐馆和商业设施。裙楼与塔楼之间由挑高室内花园连接,大尺度的玻璃幕墙围合两侧立面与屋顶,自然光可倾斜而下点亮室内景观,为匆匆出入的上班族带来片刻的惬意和愉悦。楼内员工可通过首层大堂的自动扶梯便捷到达地下一层的员工食堂和商街,或途经大台阶往返于下沉广场与街区。
广场作为城市公共空间,是整个区块的绿色交通枢纽,加强了景观性,配合周边商业成为项目的“精神大堂”。在此,公共空间被作为完整体系考量,通过打造公共空间,将景观活力渗透进项目,打造舒适、愉悦、安全、高效的办公空间。
03立面语汇 – 纯粹、超扁平的立面形式在统一中求变的设计思路,是本次营造项目特色的出发点。在空间体量的营造和细节处理上也延续了这一理念,为项目本身融入了更多活力与乐趣。楼栋立面设计选择了单元式玻璃幕墙体系,用统一的分割模数及立面细节表现简约的现代风格与含蓄内敛的艺术内涵。
每层建筑均采用整块幕墙玻璃,通过立面横纵栅格的划分,以纯粹的工业化风格呼应场地的都市氛围,打造“新”与“旧”、“繁华”与“静谧”的质感对比,让建筑与城市共生、共存、共对话。超扁平化的外立面通过玻璃反映射出的周边环境,使建筑体量消融于城市中,随时空变化与季节更迭,赋予建筑感性的面貌。
04品质营造 – 用心打造经典作品建筑立面的玻璃幕墙为双层内循环可呼吸式,外层玻璃起到围护作用,阻挡外部环境的风尘雨雪;内层玻璃在房间底部设排风口,天花板处设进风口,循环系统开启后,新鲜空气通过进风系统进入房间,室内空气连同阳光辐射产生的热量通过幕墙空腔的热回收系统排出。同时,可通过调整进新风量控制整个房间的温度、湿度等,营造舒适、安静与节能的办公环境。
幕墙选用超白玻璃,视野通透明亮的同时将玻璃自爆的风险降至最低。外层特殊定制的Low-E膜在最大限度屏蔽红外线的基础上可保证采光功能,并减少镜面反射带来的光污染。
空调与电系统皆精益求精。变风量VAV(Variable Air Volume )送风系统可实现区域温度控制,全空气空调机组设有静电及初效过滤,提高空气过滤等级,提升室内空气品质。为满足特殊租户的用电要求,地下一层预留了柴油发电机组。两栋办公楼的公共区域照明采用高效光源及灯具,不同场所选取适配性节电开关。防火门监控系统、电气火灾监控系统和一级火灾集中自动报警系统全面保证建筑消防安全。
夜幕下的沿街立面
建筑与街区关系
楼体位于L型用地两侧
下沉庭院的雅致空间
水景氤氲下沉庭院
下沉广场视角
下沉广场视角
顶部四层挑空设置为空中大堂
双层可呼吸式窄体单元幕墙细部节点
体块概念生成图
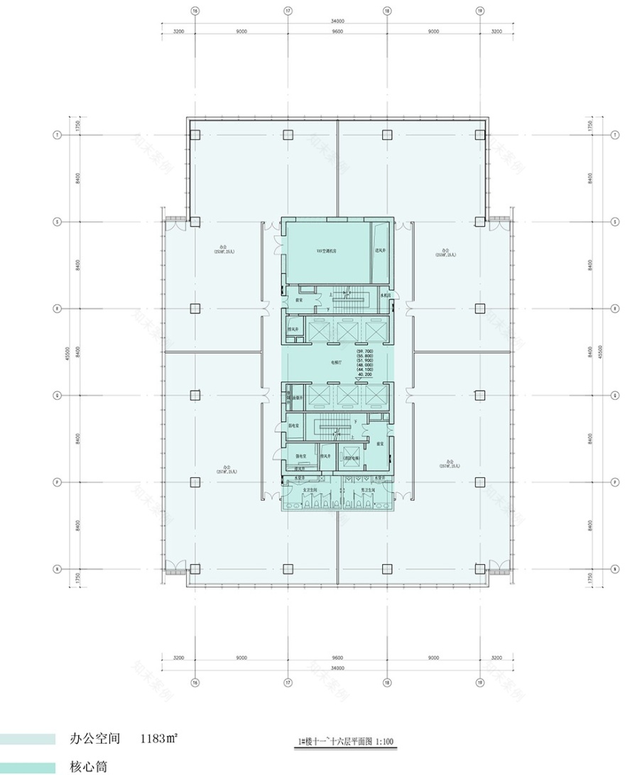
1号楼十一~十六层平面图
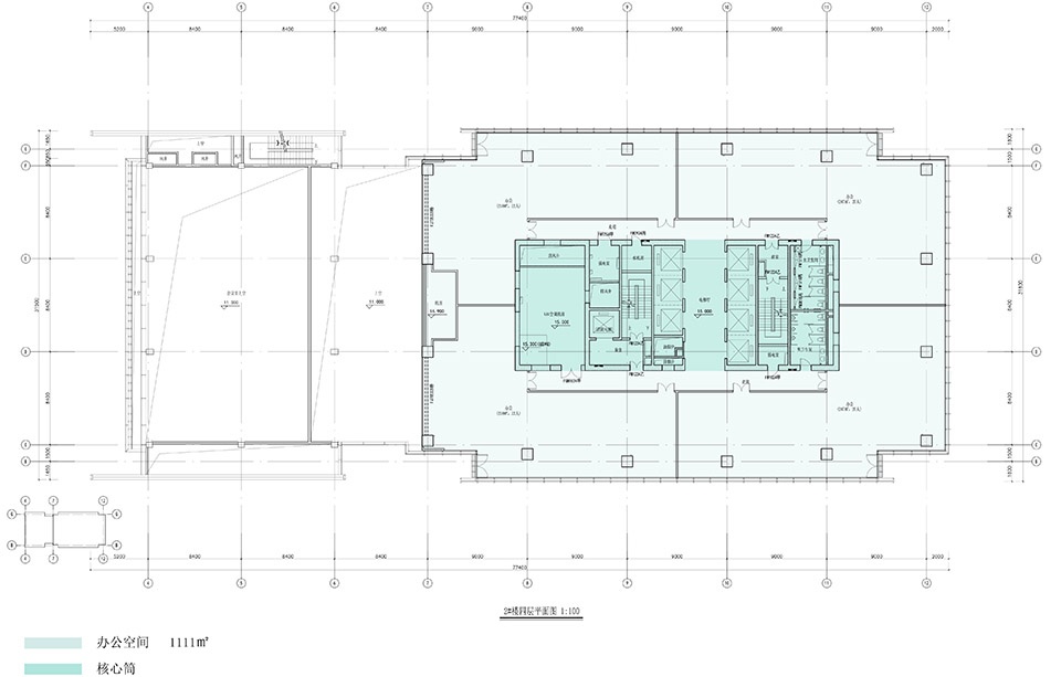
2号楼四层平面图
2号楼五层平面图
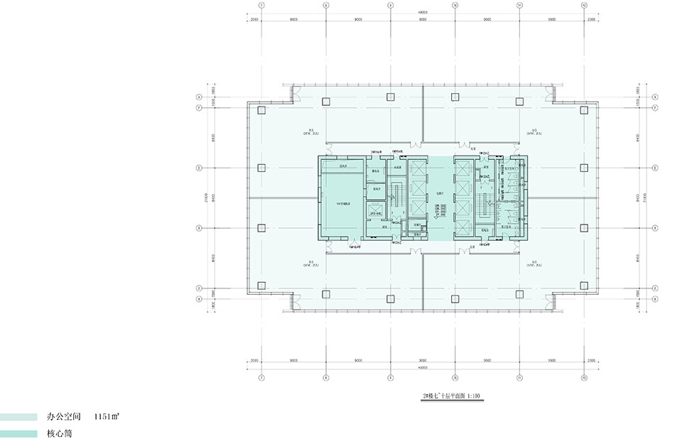
2号楼七~十层平面图
立面图
客服
消息
收藏
下载
最近

















