查看完整案例

收藏

下载

翻译
Гостиница Грандмонополь
дизайн-проект гостиницы и банкетного зала, г. Зеленоградск. Разработан в составе Студии Натальи Змачинской
Тип проекта: Общественное
Статус: реализован
Локация: г. Зеленоградск
Основная задача: Разработка полного дизайн-проекта гостиницы, ресторана и банкетного зала гостиницы на набережной, с видом на море.
Мой вклад: Разработка планировочного решения и концепции совместно с руководителем студии, ТЗ для визуализаторов; рабочая документация, спецификация материалов по банкетному залу, номерам, коридору и главной лестнице
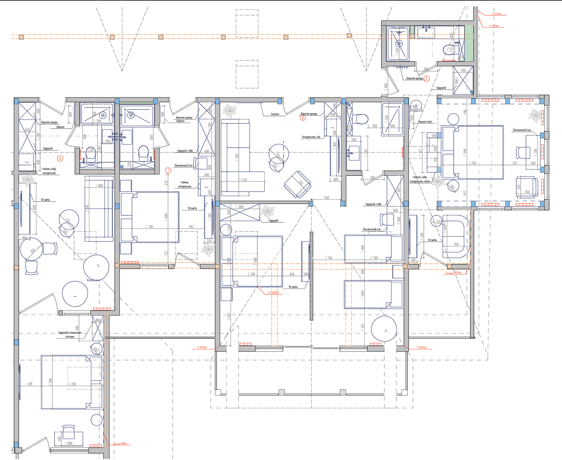
Планировочное решение номеров гостиницы
Фотографии номеров 1 и 9 с высокими потолками
...
Вводные - отреставрированное немецкое здание на берегу моря. Пожелания - легкость, расположение к отдыху. В гостинице всего 8 номеров разных размеров.Сложность заключалась в том, что гостиница расположена на мансардном этаже. И несмотря на большую площадь номеров, иногда нужно было "поиграть в тетрис", чтобы они были удобными. + сложные чертежи потолков и подсветки на них
Хотелось создать пространство, которое не будет отвлекать от главного - вида моря за окнами. Поэтому интерьер выполнен в теплых, светлых оттенках. А чтобы еще больше погрузить гостей в атмосферу отдыха, использованы дерево, декор в виде макраме и срезов бревен, вентиляторы. И много теплой подсветки
Фотографии номера 5
...
В семейном номере стояла задача выделить три зоны - общую с большим диваном и тв, родительскую и детскую спальни. Полностью изолировать спальни не позволила планировка, но чтобы решить задачу со отдельными спальными зонами, было решено возвести непрозрачную перегородку. В каждой из спален есть свои места хранения
Фотографии семейного номера (8)
...
Центральная лестница здания ведет из ресторана первого этажа в тамбур с выходами в банкетный зал и коридор гостиницы. Она предназначена для уже заселившихся гостей и служит эвакуационным выходом
Чтобы новоприбывшие гости не проходили с чемоданами через ресторан, предусмотрена вторая лестница, ведущая сразу к ресепшену
Центральная лестница здания ведет из ресторана первого этажа в тамбур с выходами в банкетный зал и коридор гостиницы. Она предназначена для уже заселившихся гостей и служит эвакуационным выходом
Чтобы новоприбывшие гости не проходили с чемоданами через ресторан, предусмотрена вторая лестница, ведущая сразу к ресепшену
Фотографии центральной лестницы и коридора гостиницы
...
...
Банкетный зал служит не только для мероприятий, но и для шведских завтраков. Для этого предусмотрена возможность перестановки столов, что повлияло и на расстановку освещения - подвесные светильники расположены достаточно высоко для прохода под ними и не привязаны к столам
Банкетный зал служит не только для мероприятий, но и для шведских завтраков. Для этого предусмотрена возможность перестановки столов, что повлияло и на расстановку освещения - подвесные светильники расположены достаточно высоко для прохода под ними и не привязаны к столам
...
客服
消息
收藏
下载
最近
































