查看完整案例

收藏

下载

翻译
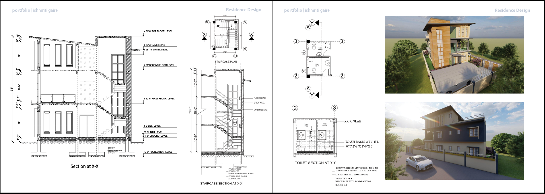
A curated collection of academic and professional works that trace my architectural journey—from foundational designs to culturally rooted spaces. Each project reflects a phase of learning, growth, and exploration in form, function, and meaning.
客服
消息
收藏
下载
最近





















