查看完整案例

收藏

下载
在信息熵增、节奏失序的当代语境中,商业空间若想成为精神的引力场,而非消费的过道,其设计逻辑便需超越单纯的功能展陈,转而去思考更具隐喻意义的商业行为与品牌逻辑间的二次元性。
意德美嘉(IDEAMASS),意为无尽的灵感,而其五线谱的Logo设计,亦代表无限的美学可能。此次温州展厅设计提取品牌Logo元素,将平面的概念以具象化的建筑形态呈现为空间的门头设计,在讲述品牌故事的初始,便点明场景的主题。
这种克制的开场,恰是品牌匠心至上理念的无声体现——不突兀地展示直白的场景目的,倾向于柔性地传递一种崭新的生活方式。
叠石为界,构筑内向宇宙
摒弃喧嚣都市中直白暴露的商业语境,展厅入口以东方园林聚石叠围墙的隐逸智慧为蓝本。设计师通过适当的遮蔽与透视,在快节奏的都市场景中,编织一处静谧的内向宇宙。
幽深的路径成为空间的前奏,在一步步行走的过程中,逐渐滤去外界的喧嚣浮华,缓慢铺垫提纯情绪的感知力,形成更具有仪式感的入室邀请。
穿过序厅,一道橡木实木花格屏风成为场景的过渡,其妙处在于既通又隔,似通还隔,在的辩证间,演绎东方的空间美学。
视线穿透格栅的间隙,液态金属漆面给予场景恰到好处的光泽感与古今结合的碰撞性,下沉式客厅作为商业交谈与待客体验的第一重正式区域,以下沉的姿态形成对界限的消解,室内与室外森严的壁垒在此模糊,落地窗外葱郁的园景被不着痕迹地入室内,形成内与外的呼吸对话,这不仅是视觉的延伸与场景的搭建,更是对木作产品本身所代表的自然材质无声的表达,通过构建人、空间与自然三者间微妙的共生之道,形成品牌精神的核心注脚。
自然天光与人造光源在场景中形成精妙的共谋,设计师将灯带隐逸于木作柜体的缝隙中、吊顶边缘的暗影里,使其如生命体的脉络般悄然伸展,光循着顶部胡桃木条索状的肌理游走,如同五线谱中变幻的音符,以跳跃的姿态传达品牌的内在精神,形成建筑内与外的对话与回溯。
叠透交响,空间的无界叙
面对长幅敞开的平面格局,设计师以下沉、抬升的错落对比,巧妙破解了单一维度的乏味,赋予空间以呼吸般的节奏感。
隔断的处理摒弃了生硬的阻断,代之以的交织艺术,空间因此呈现出一种流动的连贯性,功能区域相互渗透、彼此映照。环绕的落地窗景被完整保留,外部世界的画卷成为室内体验不可或缺的景深,内与外、功能与意境,在无界叙事中达成统一。
意式橱柜系统以灵活多变的功能布局,优化操作流程,简化行为路径,于日常生活中注入仪式感与新鲜感。精选的拉米娜通体岩板台面嵌入可升降油烟机,结合超长2.2米大抽屉设计,不仅代表了纯粹的视觉美学,更以精密的构造与卓越的承载能力,成为精湛工艺与可靠品质的代名词。珍珠贝母艺术高光漆形成斑驳璀璨的视觉感与柔和平滑的触觉感受,带来新奇高质的备餐体验。
空间并非静止的容器,而是承载时光流动的剧场。来自室外的自然光线,被摇曳的枝桠肆意切割,再经北美橡木屏风的格栅温柔梳理,于墙面、地面投下瞬息万变的光影。这被自然与人工共同雕琢而成的阴影光斑,因时间的流动而不断变化,赋予静态空间以蓬勃的生命力与深邃的时间感。
走廊区域,占据整面墙体的空山柜成为焦点:竖板与横板的错层设计,于平面上雕琢出细腻的光影层次与节奏。铝板与木材、石材的完美嵌合,既保留了铝的轻盈现代感,又平衡了木材的天然重量。这不仅是美学表达,更是IDEAMASS三十余年木作沉淀的厚积薄发,对材质的驾轻就熟与对工艺细节的极致追求,成就品牌极简高定理念的基石。
物料方案洽谈区的顶部核心,悬置一处反向倒置、收拢的三角光体结构,宛若抽象的虚拟天窗,通过精准调节照度与色温,为严谨的选材过程创造理想的视觉环境。此三角光体自空间入口便奠定其强烈的视觉引力,最终成为行进序列中不容忽视的精神锚点与视觉终章。
北美胡桃木作为场景的主角,呈现着相同材质在不同空间面上的差异呈现,亦表达材质在各种使用场景下丰盈的使用感。赭锈红漆面在材质相对单一的环境中,为场景带来轻重缓急、层次分明的变化,一如五线谱的音律,抑扬顿挫且代表着无限的延伸。
深藏于空间尽端的 VIP 室,自成一方高度私密且极具包裹感的场域。其顶部弯折的木饰面结构,搭配凤羽漆工艺,代表着由洽谈空间顶面灯饰向此处的自然延伸,形成两处空间的自然联动,而在墙面尽头,坚硬的材质在精密的曲张工艺下,如帘幕般舒展垂落。这种自上而下的柔性介入,不仅消弭了空间的硬朗棱角,更氤氲出一种包容而沉静的整体气质,为深度交流筑就一方亲和的精神场所。
立柱为笔,书写光的建筑
阳光通过系列化的极简北美橡木立柱系统,在茶室空间内的地面与墙面上,投下随时间推移而变幻的光影线条,以最纯粹的方式,演绎着光对建筑空间的本质塑造。而其静谧的矩阵式木作结构排列;结构严谨且功能多样的柜体设计;工艺与智能的完美结合;不同材质间的反复交错……都表达着品牌商业逻辑中所要呈现的内涵。
独特的骨骼线工艺打造卧室体验区的背景,敞开式更衣区引入BASISTEM巴斯蒂姆——卢加诺衣柜收纳系统,由立柱、背板与层板完成组合,将各收纳模块嵌入皮革背板,人性化设计的五金系统让置物层板可根据需求随意上下调节,提供多种完整的单元组合模块,从而形成访客对柜体内部结构更直观的认识,精选的尤加利木皮成为空间最自然的“肌肤”,而意象的品牌理念与商业逻辑则成为灌注其中的血肉,共同创造出一个完整的有机体。
通过墙、面、柜一体的设计,形成兼具实用功能与美观理念的场景描述,结合智能语言系统,引入嵌合式灯光设计,在无主灯照明的前提下,提供自然充盈的光线。电动智能360°旋转木马包柜,将衣帽间㎡的面积发挥得淋漓尽致,搭配升降式电动梳妆台设计,引入智能化生活语境,带动日常生活品质的提升。
意德美嘉温州展厅,超越了传统商业空间的展示功能,试图完成一次以空间为媒介对品牌精神的深度探索。它将品牌三十载对木作的虔诚沉淀,融于极简高定的当代语境,完美诠释了“IDEAMASS”的无尽灵感。
当访客循着光的脉络,游走于虚实相生的空间序列,感受自然与匠心交融的力量,品牌所追求的高品质居家生活,便在这无声的空间叙事中,完成一次直达内心的精神探索。
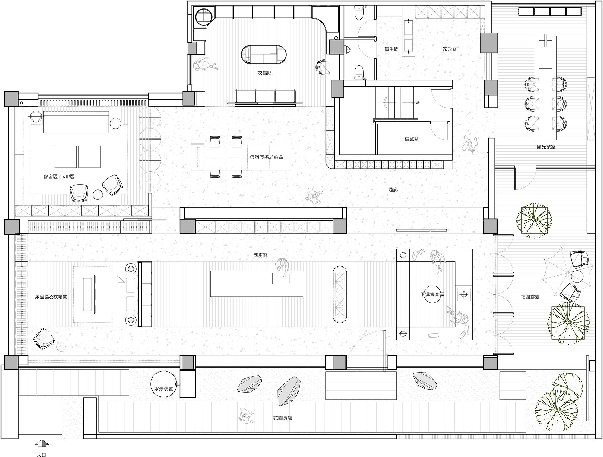
项目平面图
项⽬名称|意德美嘉温州展厅
设计公司|言禾内境
项⽬地点|浙江温州
项⽬⾯积|360
主案设计|谢骅骏
内容策划|橙设传媒
项目摄影|翰墨视觉
设计时间|2023.10
完⼯时间|2024.10
主要材料|木饰面,岩板,金属,艺术漆,木地板
展厅地址|浙江省温州市龙湾区蒲州街道雁荡西路100号和乐大楼F1意德美嘉温州形象店
谢骅骏 言禾内境 公司主理人 设计创意总监
程默 言禾内境 公司主理人 设计统筹 运营总监
言禾内境设计团队致力于为客户提供多元化、创新性的室内设计服务。启发创意落地是我们追求设计服务的本质。诠释人与空间的本真与自洽。
客服
消息
收藏
下载
最近
































































