查看完整案例

收藏

下载
闲来无事坐东篱,一盏清茶淡如诗。味浓意深心自适,喝茶静享此间时。
在无锡惠山古镇的千年积淀中,小茶栽堂以“时空叠影”的姿态悄然生长。设计师以建筑为笔,在青砖黛瓦间勾勒出一方新中式美学场域——既承载着江南文脉的温润气韵,又跃动着现代设计的先锋意识。这座融合历史记忆与当代审美的空间,恰似一卷徐徐展开的立体山水画,在时光的褶皱里演绎着传统与创新的对话。
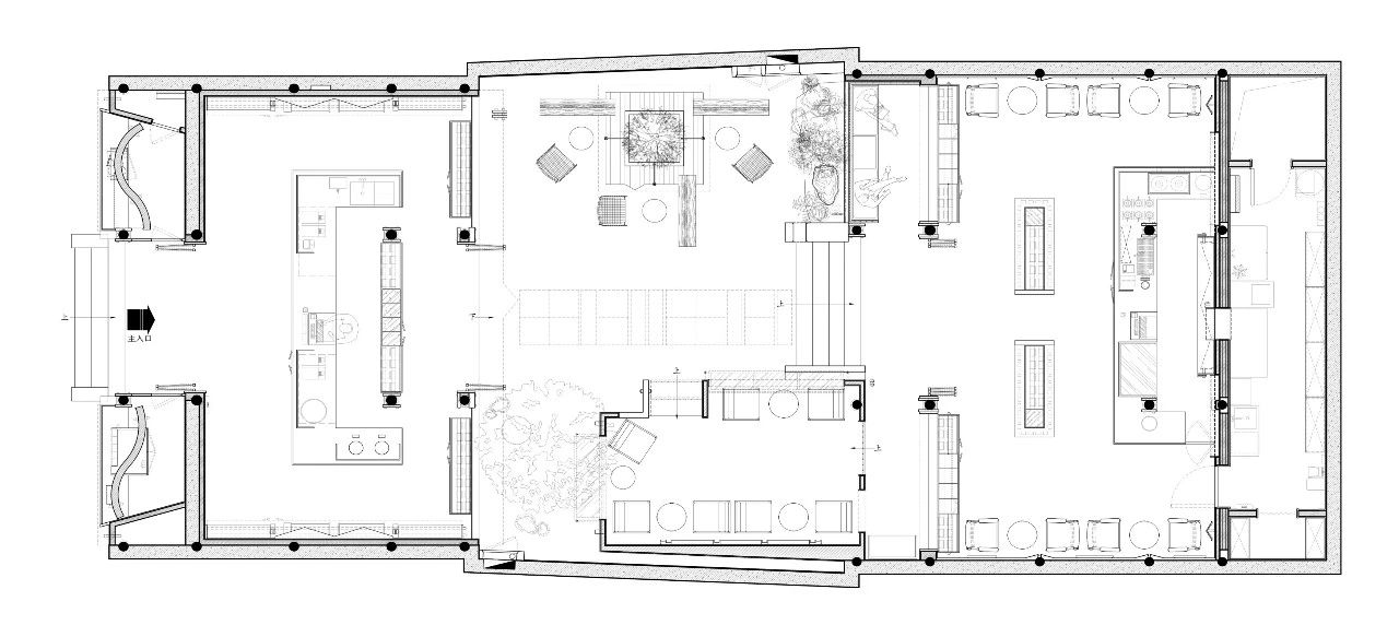
▲项目平面图
▲左右滑动,查看立面图
历史肌理中的现代叙事
▲动态轴测图
▲静态轴测图
惠山古镇的建筑群是凝固的时光标本,设计团队以“修旧如新”的哲学介入其中。保留原有木构梁架的苍劲肌理,覆以艺术漆与不锈钢饰面的当代语言,新旧材质在光影中形成微妙共振。
主入口以框景手法将东方禅意与现代简约熔铸于一方天地,虚实相生的空间叙事由此展开。青灰色石基托起原木构架,取意江南古厝的坡檐飞角,又以几何折线的当代转译重塑轮廓,于刚柔并济中引导茶客步入一场沉浸式时空漫游。茶绿立面与翠竹屏风交织成诗,在大体块橱窗的笼罩下,既隔尘嚣,又引自然剪影婆娑入画,暗合“茶禅一味”的致远之境。
光影剧场中的日常美学
空间动线暗合江南园林“移步换景”的游园智慧,以“人在草木中”为核心设计理念展开布局。手作区作为空间序章,以开放式吧台为轴心,将茶饮制作工艺转化为可观可感的视觉剧场——通体木案和灵动天花在暖光下泛起温润光泽,与袅袅茶烟共同构成动态装置艺术,让每道工序都成为可触摸的文化记忆。
零售区采用模块化木展架,与悬空底柜构建起虚实相生的陈列体系。茶器、茶叶、文创产品错落排布,材质与光影的对话在细节处更显微妙。镜面元素的融入是点睛之笔,既拓宽了空间的视觉尺度,又承载着人与物的流转,如同清透茶汤在器皿中折射的时光倒影。
自然意象的解构与重构
穿过折叠院门,设计师以“四水归堂”的建筑礼制为灵感,在三进制院落的中轴线上构建起一方可游可憩的社交雅境。金属构件与墙面体块巧妙搭配,在光影的雕琢下,呈现出极具戏剧张力的空间切割效果,营造出轻盈灵动的视觉体验。自然景致与建筑相映成趣,共同绘就一幅流动的风景画卷。
外摆区以树为轴心,环抱自然而生。素朴的榫卯木椅顺应树影婆娑的节奏而设,与粗粝石板共筑野趣。设计师以“借景造境”的手法,将听觉、嗅觉与视觉体验交织成一首多维的感官诗篇,令茶客俯仰皆可捕捉四时草木的微妙嬗变。在此饮茶,既是味觉的修行,亦是通感的盛宴。
每当暮色四合,檐角落下的天光与人工照明交相辉映,每一处材质肌理、光影流转,皆是对东方美学的凝神观照,亦是当代设计语言对传统的深情致意——不囿于形,而归于心。
建起连贯的空间诗学。展示柜台以传统榫卯工艺构架,与两侧雅座共同形成丰富的场景叙事。
在这座260㎡的空间剧场里,设计师以“减而见丰”的克制笔法,将茶之清雅、禅之空明、地之文脉融于方寸,完成了对“中国茶年轻化”命题的建筑学回答。它既非对传统的简单复刻,亦非对现代的粗暴嫁接,而是以空间为载体,让千年茶文化在当代语境中自然生长。当茶客静坐于此,他们触碰的不仅是茶汤的温度,更是一个品牌对生活美学的永恒追寻。
项目信息
项目名称:小茶栽堂
项目地点:无锡,惠山古镇
项目面积:260m²
设计时间:2024年10月
完工时间:2024年12月
设计单位:无锡欧阳跳建筑设计有限公司
主案设计师: 蒋越、欧阳跳
落地主案设计师:周丹凤
辅助设计师:姚运、张维尚、刘浩宇
主要材料:混凝土预制板、复古不锈钢、防火板、艺术漆、花岗岩
灯光品牌:无锡米未照明
材料品牌:贝莱维斯涂装、科定
项目摄影:鲁哈哈
创立人欧阳跳 - 合伙人蒋越
欧阳跳建筑设计有限公司(OYTT Design)创立于2017年,是一家专注于商业空间设计的公司,在餐饮、零售及品牌体验空间领域表现突出,强调“传统与创新融合”,既尊重品牌历史,又通过现代设计语言提升消费体验,契合年轻化市场趋势。作品荣获国内外多个知名设计奖项。
近期奖项
• 美国 | 2025 Architizer A Awards Special Mention
• 韩国| 2025 亚洲设计奖ASIA DESIGN PRIZE 2025 WINNER
• 加拿大 | 2023 加拿大GRANDS PRIX DU DESIGN设计大奖
• 中国 | 2023 第18届“金外滩”奖 最佳商业空间奖
• 美国 | 2022 Architizer A Awards Popular Choice Winner
• 韩国 | 2022 亚洲设计奖Asia Design Prize
• 美国 | 2021 IDA DESIGN AWARDS HONORABLE MENTION
• 美国 | 2021 Best of Year Awards coffee/tea
• 中国 | 2021 NCA新商业空间设计师top10
• 中国 | 2021 NCA杰出新商业空间设计师TOP100
• 中国 | 2021 40UNDER40中国(无锡)设计杰出青年
• 德国 | 2020 红点奖
• 德国 | 2020 iF DESIGN AWARD
• 意大利 | 2020 意大利Adesign award设计大奖 银奖、铜奖
• 荷兰 | 2020 Frame Awards等
客服
消息
收藏
下载
最近










































