查看完整案例

收藏

下载
Oaxaca 88大楼位于墨西哥城Condesa街区,是一座融入充满活力的城市环境中的混合功能建筑。项目包含26套住宅单元及一层临街商业空间,由两个体量构成,并通过中央垂直交通核心相互连接。建筑的结构模数在立面上得到清晰呈现:北立面分为两个板块,南立面则划分为三个部分,呼应了公寓内部的布局逻辑。建筑材料以清水混凝土为主,结合绿色金属构件,并配有宽敞的阳台与露台,可远眺城市地标。
Oaxaca 88, located in the Condesa neighborhood of Mexico City, is a mixed-use building that blends harmoniously into a vibrant urban setting. The project features 26 residential units and a ground floor commercial space, distributed across two interconnected volumes linked by a central vertical circulation core. Its design stands out for its structural modulation, reflected in the facades: to the north, it is divided into two sections, while to the south, it unfolds into three, highlighting the internal layout of the apartments. The materiality combines exposed concrete with green metalwork, complemented by spacious terraces and balconies that offer views of the city’s main landmarks.
▼项目外观,exterior of the project©Ricardo de la Concha
▼项目街景,street view of the project©Ricardo de la Concha
Oaxaca 88大楼位于康德萨街区,坐落于墨西哥城两大重要公共空间之间:“西贝雷斯喷泉”与“西班牙公园”。项目所处街区生机勃勃,四周绿意环绕。建筑建于一块不规则地块上,约为27米 × 15米,设计通过一处垂直交通核心将前后两个体量组织起来。
Oaxaca 88 is located between two major public spaces in Mexico City: the “Fuente de Cibeles” and “Parque España”, in the Condesa neighborhood.It is set within a vibrant urban context, surrounded by lush greenery.Situated on an irregular plot measuring 27m by 15m, the project is articulated through two interconnected volumes by a vertical circulation core.
▼项目街景,street view of the project©Ricardo de la Concha
规划包括26套小型住宅单元,面积从最小的38平方米至最大117平方米不等(唯一的顶层公寓),并设有屋顶空间及临街商业区域,与人行与车行出入口相邻。面对场地特征,设计首先决定将体量分离:一部分位于地块前端,另一部分位于后端,两者通过垂直交通核心连接,从而实现住宅单元的南北朝向。
The program includes 26 small housing units, ranging from 38m² for the smallest to 117m² for the largest, which is the sole penthouse, along with a rooftop and a commercial space adjacent to the pedestrian and vehicular access. Responding to the site’s characteristics, the initial design decision was to separate the two volumes, positioning one at the front and the other at the rear, both connected by the vertical circulation core. This configuration allows for units with northern and southern orientations.
▼仰视建筑立面,look up to the street facade©Ricardo de la Concha
整个建筑严格遵循结构模数系统,这一系统贯穿于材料选择、室内布局与立面设计中。北侧主立面被划分为两个部分,清晰展现出室内公寓的分区关系,其中两块混凝土板之间形成的凹槽细节成为立面亮点。
The building adheres to a strict modulation system guided by the structural framework, which is reflected throughout the project: in its materiality, interiors, and facade treatments.The northern and main facade is divided into two sections, revealing the internal layout of the apartments and resulting in two concrete panels, the detail that stands out as a prominent recess on the facade.
▼两块混凝土板之间形成的凹槽细节成为立面亮点,
the detail that stands out as a prominent recess on the facade©Ricardo de la Concha
而在南侧后立面,模数转化为三个部分,不仅清晰区分了地下一层的停车空间,也有效组织了上部的小型住宅单元类型。这种网格化的组织方式在平面与立面上都体现出明确的秩序感。
On the southern rear facade the modulation transitions to three sections, creating a clear separation of basement parking spaces while organizing the smaller unit typologies on the upper levels. This distribution grid ensures clarity in both plan and elevation.
▼立面上体现出明确的秩序感,distribution grid ensures clarity in elevation©Ricardo de la Concha
在材料选择上,清水混凝土作为核心设计语言,引导了其他材料的搭配。室内空间追求简约与恒久之感:卧室与起居区铺设木地板,浴室、走廊及露台使用本地开采的灰色石材,墙面则为白色涂装。
Regarding materials, exposed concrete serves as the primary design element, influencing the selection of all other materials. Inside, a selected material palette seeks timelessness: wooden floors for bedrooms and living spaces, locally sourced gray-toned stone for bathrooms, circulation areas, and terraces, as well as white walls.
▼走廊,corridor©Ricardo de la Concha
▼卧室与起居区铺设木地板,wooden floors for bedrooms and living spaces©Ricardo de la Concha
▼室内空间追求简约与恒久之感,a selected material palette seeks timelessness©Ricardo de la Concha
▼室内外空间的无缝衔接,a seamless transition from the exterior to the interior of the apartment©Ricardo de la Concha
木作以浅色木材为主,部分单元采用多功能家具设计,例如兼具衣柜与电视柜功能的一体化构件,并辅以局部色彩点缀,丰富空间氛围。建筑外部的清水混凝土与绿色铁艺栏杆相互映衬,与立面前方的大树自然融合。立面采用可完全开启的窗框系统,实现室内外空间的无缝衔接。
The woodwork features light wood, with several unit typologies incorporating multifunctional furniture—such as a closet that also serves as a TV stand. Each unit is accented with color details.
Externally, the exposed concrete is complemented by green ironwork railings, that blends harmoniously with the large tree framing the main facade. The facade is complemented by a window frame system that allows for full opening, providing a seamless transition from the exterior to the interior of the apartment.
▼兼具衣柜与电视柜功能的一体化构件,a closet that also serves as a TV stand©Ricardo de la Concha
▼辅以局部色彩点缀,each unit is accented with color details©Ricardo de la Concha
建筑通过开放的阳台与宽敞的露台积极参与城市生活,仿佛沉浸在城市之中。街道繁茂的植被延伸至建筑内外,沿“改革大道”望去,城市中最高、最具标志性的建筑尽收眼底,为该项目增添独特价值与景观体验。
The building feels immersed in the city through its attractive balconies and spacious terraces. The surrounding context enriches the project in every sense, from the dense vegetation flowing in from the street to the privileged views of the urban landscape along “Avenida Paseo de la Reforma”, where Mexico City’s tallest and most iconic buildings can be seen.
▼开放的阳台与宽敞的露台,attractive balconies and spacious terraces©Ricardo de la Concha
▼一层平面,ground floor plan©CCA +IP STUDIO
▼二层平面,first floor plan©CCA +IP STUDIO
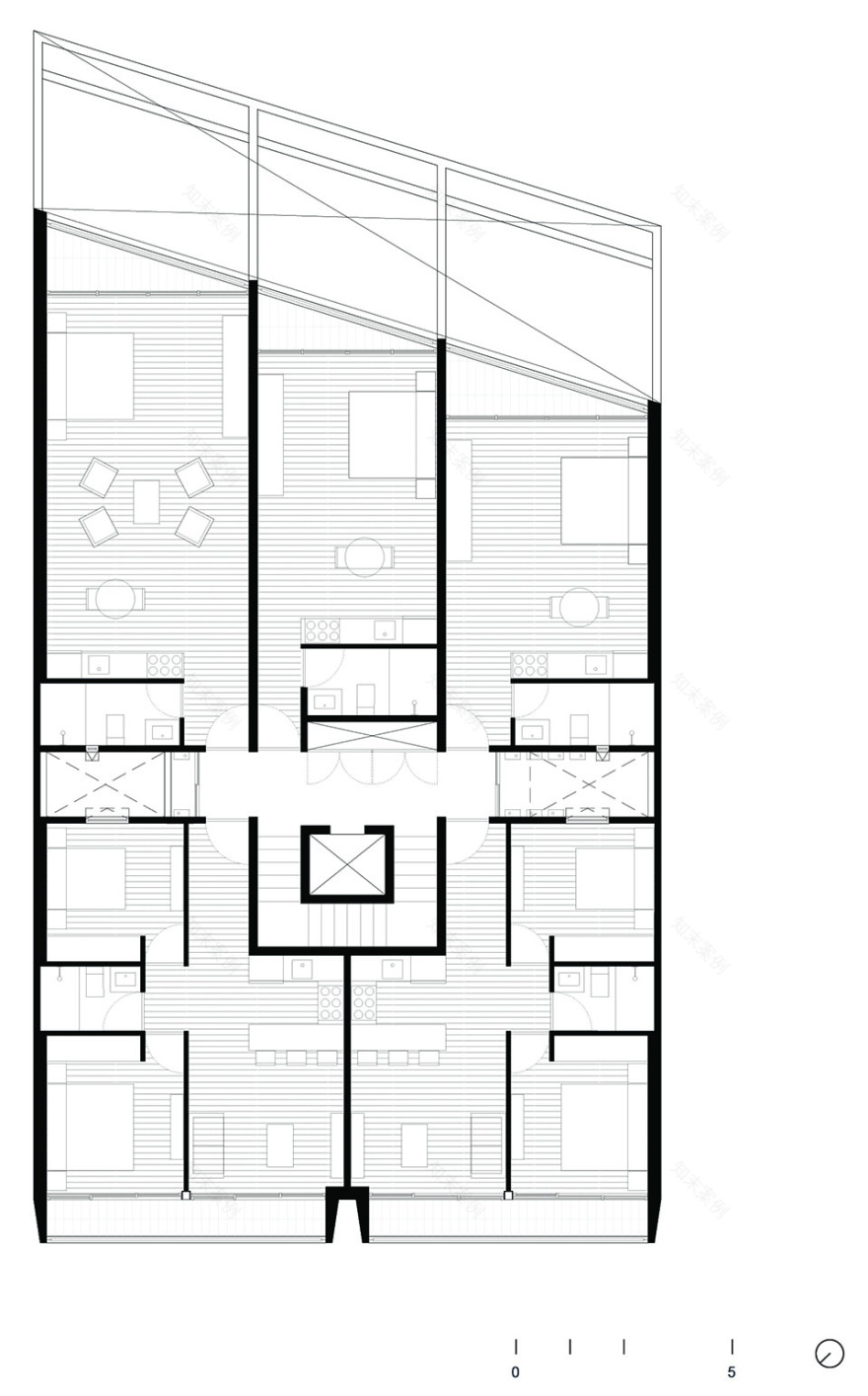
▼五层平面,fifth floor plan©CCA +IP STUDIO
▼六层平面,sixth floor plan©CCA +IP STUDIO
▼屋顶平面,roof plan©CCA +IP STUDIO
▼立面,elevation©CCA +IP STUDIO
▼剖面,section©CCA +IP STUDIO
Name:Oaxaca 88
Use:Mixed Use
Area:2,444 m²
Location:Mexico City, México
Status:Built
Year:2024
Office:CCA | Bernardo Quinzaños in collaboration with IP STUDIO / Ivanka V Pichardo
Architects:Bernardo Quinzaños, Ivanka V Pichardo
Team:Victor Zúñiga, Keren Espinoza
Client:Grupo Blackloft
Constructor:Abisal Construcciones
Photographer:Ricardo de la Concha
客服
消息
收藏
下载
最近





























