查看完整案例

收藏

下载
太平里,位于驿州,是一个曾经让赴汉阳应试的学者在旅途中歇脚休息的村落。这里宁静祥和,气韵沉静,正如其名字“太平”所寓意的那般安详平和。
Taepyeong-ri in Yeoju is a village where, in the past, scholars traveling to Hanyang for the national civil service examination would pause to rest from their arduous journey. It is a place imbued with calm and peaceful energy—true to its name, which means “great peace.”
▼项目概览,Overall view © Park Dahae
从远处望去,一道悠长、静默而庄严的高墙赫然映入眼帘。走近仰望,这面墙如同一座大宅的外墙,材质坚实、风格克制。两墙之间露出的天光,如同一幅自然绘就的画布,湛蓝的天空、流动的云朵与柔和的光线构成一幅唯美画面。
There, a long, quiet, and majestic wall can be seen from afar. As one approaches and looks up, the wall resembles that of a stately mansion—firm and restrained in its material character. The sky that emerges between the walls frames a canvas of blue skies, drifting clouds, and light, as if painted by nature itself.
▼外侧的外墙,Exterior wall © Park Dahae
▼入口台阶,Entrance stairs © Park Dahae
沿着这道高墙延伸的小径尽头,伫立着一棵名为“Owolyi”的雪松树,它是 MAYDAY 咖啡馆象征性的核心,亦是其建筑形态与精神内涵的起点。这棵树自一根主干向上分出两枝,宛如张开双臂拥抱天空。受其形态启发,也回应业主希望创造一个“彻底休息之所”的初衷,建筑以此为原型展开设计。在村庄的至高点,这片空间邀请来访者眺望自然、与风景重新建立联系。
At the end of the path that runs along this tall wall stands a cedar tree named Owolyi, a symbolic centerpiece that encapsulates the form and meaning of Cafe MAYDAY. With two branches extending skyward from a single trunk, the tree appears to embrace the sky. Inspired by this form—and the client’s wish to offer a space of complete rest—the architecture was designed to echo its shape. Positioned at the highest point of the village, the space invites visitors to look out over nature and reconnect with the…
▼建筑立面,Facade © Park Dahae
▼名为“Owolyi”的雪松树,A cedar tree named Owolyi © Park Dahae
▼雪松树是咖啡厅的核心,The cedar tree is the centerpiece of the cafe © Park Dahae
场地位于大明山步道的起点附近,因过往开发造成地形破碎不整。为了遮蔽裸露的挡土层,A栋建筑被设置为厨房与员工区域;而B栋则在四面开窗,面向山脊展开,尽可能引入自然景色。室内采用石材与木材作为主要材质,象征对这片曾被自然覆盖土地的致意与怀念。
The site sits near the trailhead of Daemyeongsan Mountain and bears marks of disrupted topography from development. To conceal the contrasting retaining soil, Building A was arranged to house the kitchen and staff areas, while Building B—with windows on all four sides—opens up to the ridgeline of the mountain, offering generous views. The interiors are finished with stone and wood, materials once native to the land, as a gesture of homage to the lost nature of the site.
▼两栋建筑中间的小路,A path between two buildings © Park Dahae
▼入口吧台,Bar at the entrance © Park Dahae
▼主要室内空间,Main interior space © Park Dahae
建筑两侧设置了静谧的水池,池面映照出不断变化的天空,风的轨迹与时间的色彩在水面缓缓流转。大屋檐下的一面巨窗完整框出太平里的天空与风景,而下方的侧窗则将自然光引入室内,光线随着季节变化而转换。木材的温润质感与白色空间的留白交织出宁静安然的氛围。
Tranquil pools of water placed on either side of the building reflect the ever-changing sky, capturing the shifting colors of time and wind across their surface. A large window beneath the grand roof fully frames the sky and scenery of Taepyeong-ri, while lower side windows bring in natural light that transforms with the seasons. The soft warmth of wood, combined with white spatial voids, creates a soothing and serene atmosphere.
▼将自然光引入室内,Bringing natural light into homes © Park Dahae
▼客座区绝佳的视野,Excellent view from the seating area © Park Dahae
▼家具近景,Furniture details © Park Dahae
“Mayday”这一名称蕴含多重意义:它既代表五月春日的柔和阳光,也象征“劳动节”所代表的休息时光,亦是法语呼救信号“M’aider”(意为“请帮助我”)的音译。MAYDAY 咖啡馆正是将这些层层意涵与太平里的在地气质、品牌对“休憩庇护所”这一定位交织在一起,赋予空间以多重情感维度。
The name “Mayday” carries multiple meanings: the gentle warmth of a spring day in May; Labor Day, a symbol of rest; and the French distress call M’aider, meaning “Help me.” Cafe MAYDAY weaves these layers of meaning together—the symbolic essence of the word, the contextual nature of Taepyeong-ri, and the brand’s identity as a haven for peace and repose.
▼夜览,Night view © Park Dahae
窗外是树影、阳光与天空,咖啡馆仿佛一处隐匿林间的小小疗愈所。我们希望每一位来访者都能在这里暂别城市的喧嚣与节奏,感受这片空间中缓慢、宁静的时光节奏,重新获得内心的平衡与更新。
With trees, sunlight, and sky just beyond the window, the cafe evokes the feeling of a small retreat in the forest. It is our hope that all who visit will step away from the noise and rush of urban life and find renewal in the quiet, slow rhythm of this space.
▼总平面图,masterplan © SPACE DOT
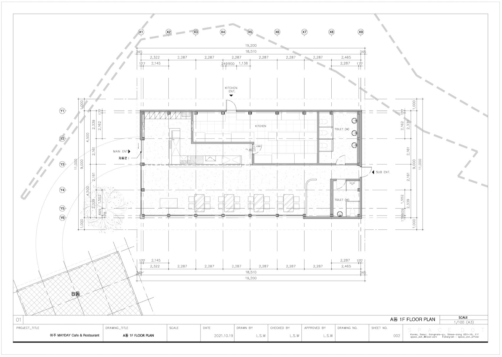
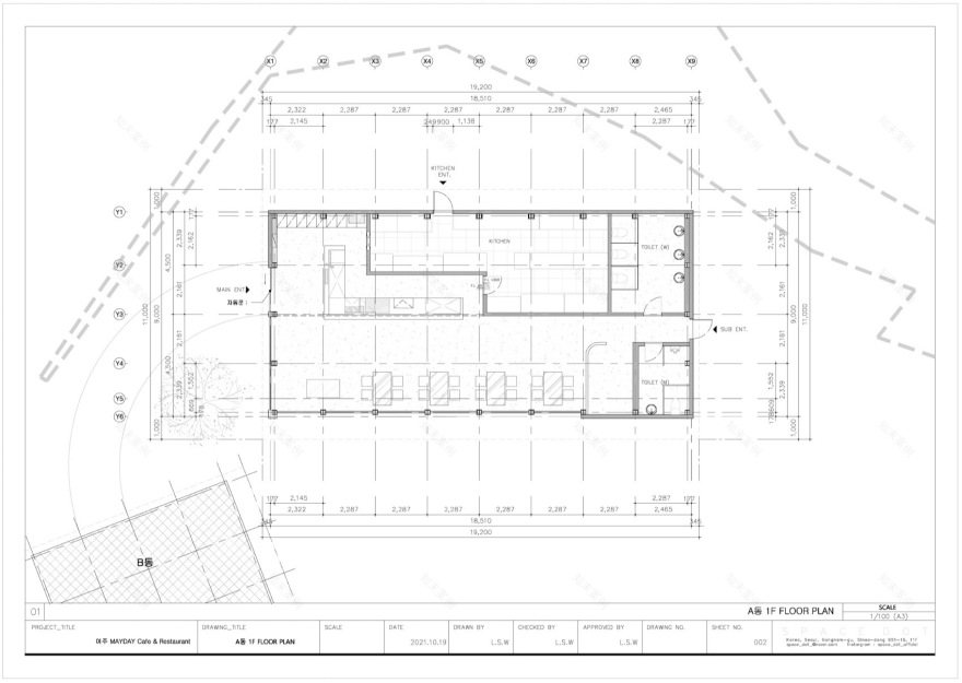
▼A栋平面图,A floor plan © SPACE DOT
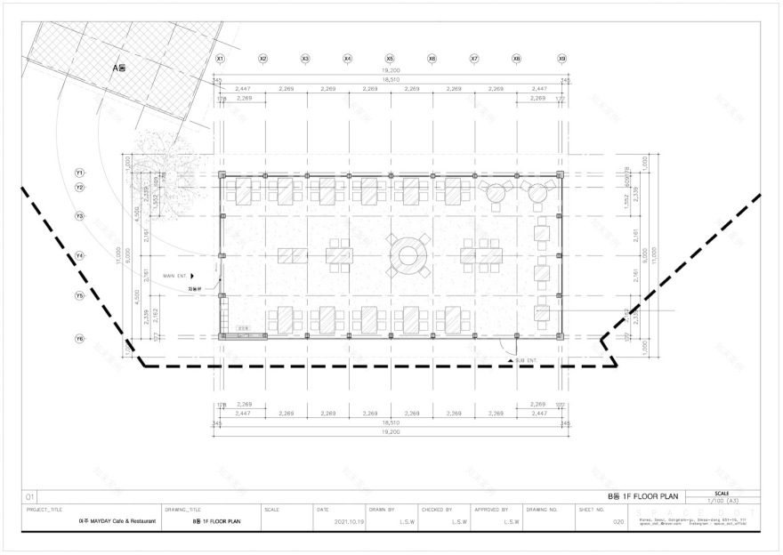
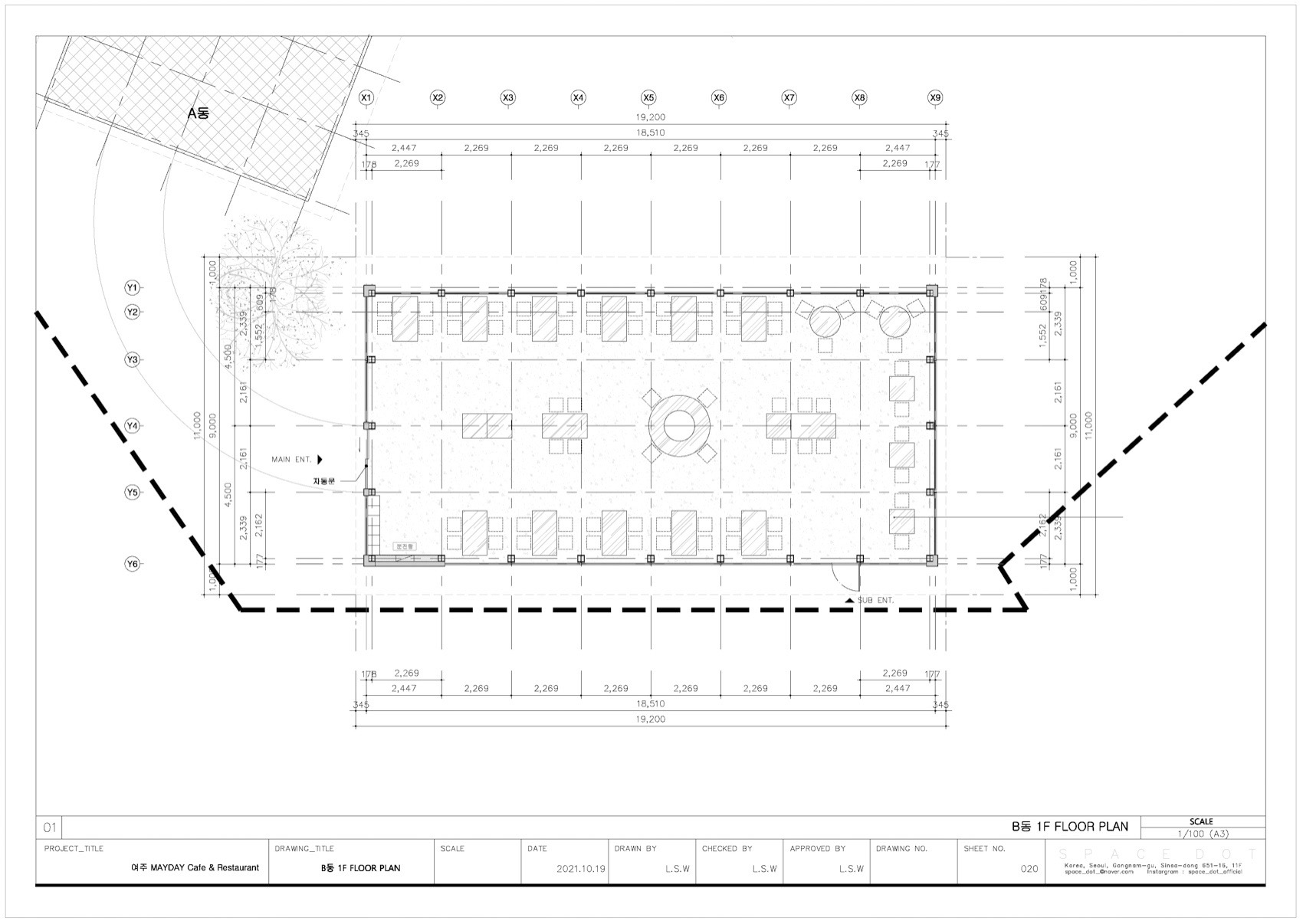
▼B栋平面图,B floor plan © SPACE DOT
ARCHITECTURE: SPACE DOT
DESIGN: SPACE DOT
PHOTOGRAPH: Park Dahae
SITE: 351-4, Taepyeong-ri, Yeoju-si, Gyeonggi-do, Republic of Korea
YEAR: 2022
USAGE: Café , Restaurant
AREA: EX 2,695㎡ / 300㎡
客服
消息
收藏
下载
最近


































