查看完整案例

收藏

下载
L'Alqueria del Basket解决了需要创造一个空间,为瓦伦西亚篮球队的学院提供庇护。在最好的条件下,新一代的人可以在很大的范围内进行体育活动,这是必要的。
毕竟,主要的目标是创造一个空间,让孩子们有最好的条件去玩耍和学习。
这些空间都有自然的照明和交叉的景观,这都要归功于一个病人的继承设计。在项目的建造过程中,使用混凝土、钢材、木材和聚碳酸酯等合适材料,从一开始就将耐久性、舒适性和照明的概念优先考虑。
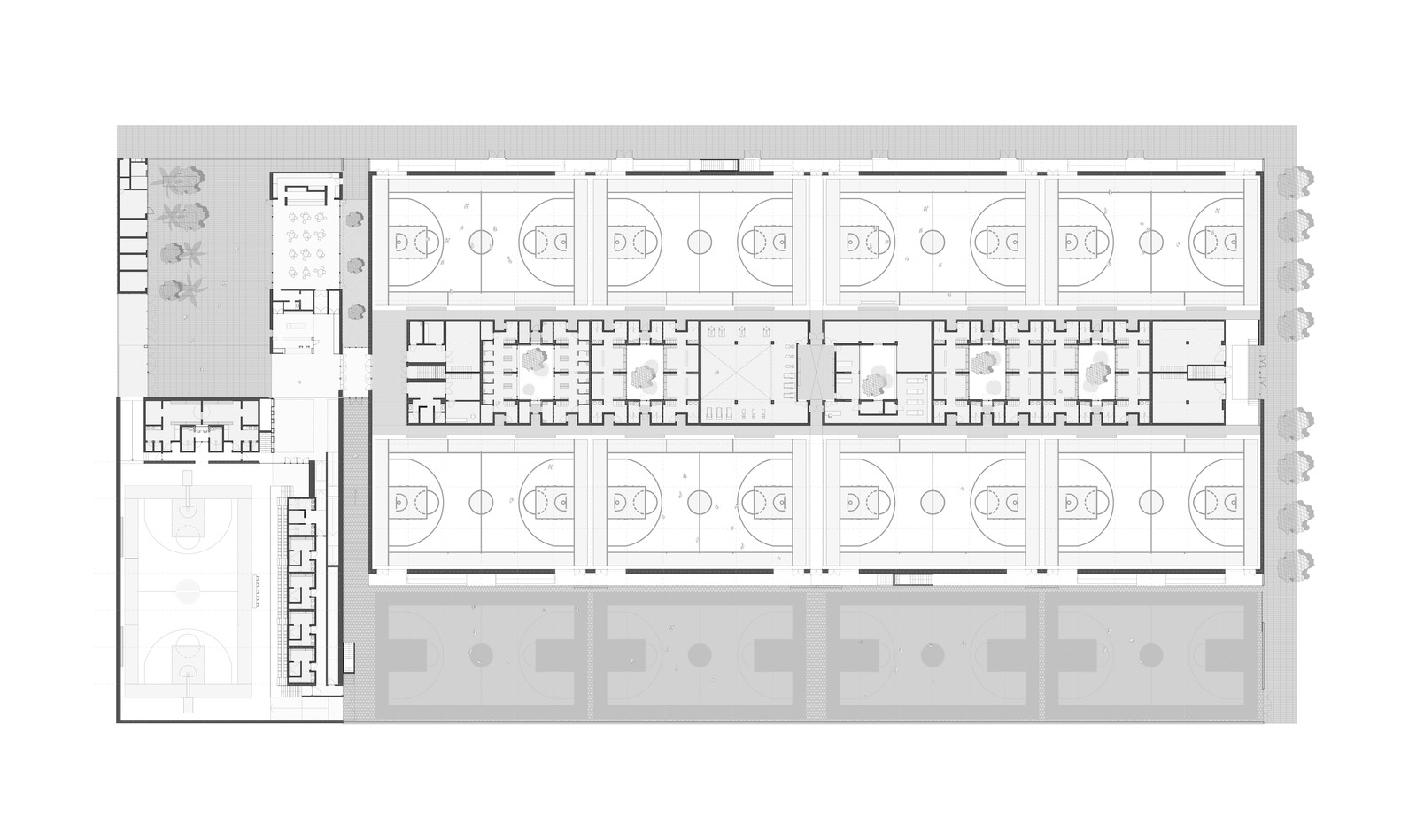
篮球场分布在中轴线上,中轴线有两个层次:
-较低水平的房屋服务,如每间球场、健身房、护理区及理疗室的更衣室。
-上层致力于教学,但也包含为想要享受孩子游戏的家庭成员设计的区域。
该项目位于圣路易市(La Fuente de San Luis)附近,该俱乐部目前的球场面积约为1.5万平方米。该项目分为两卷,由13个法院组成:9个室内和4个室外。
第一卷包含主要比赛场地和训练课程。第二项包括8个为训练目的而设计的法庭。这些法庭可以同时使用,并由自动的窗帘系统独立。
客服
消息
收藏
下载
最近





















