查看完整案例

收藏

下载
项目名称:吴太医药集团办公总部
位置:长春
设计单位:Ippolito Fleitz Group
图片数量:24张
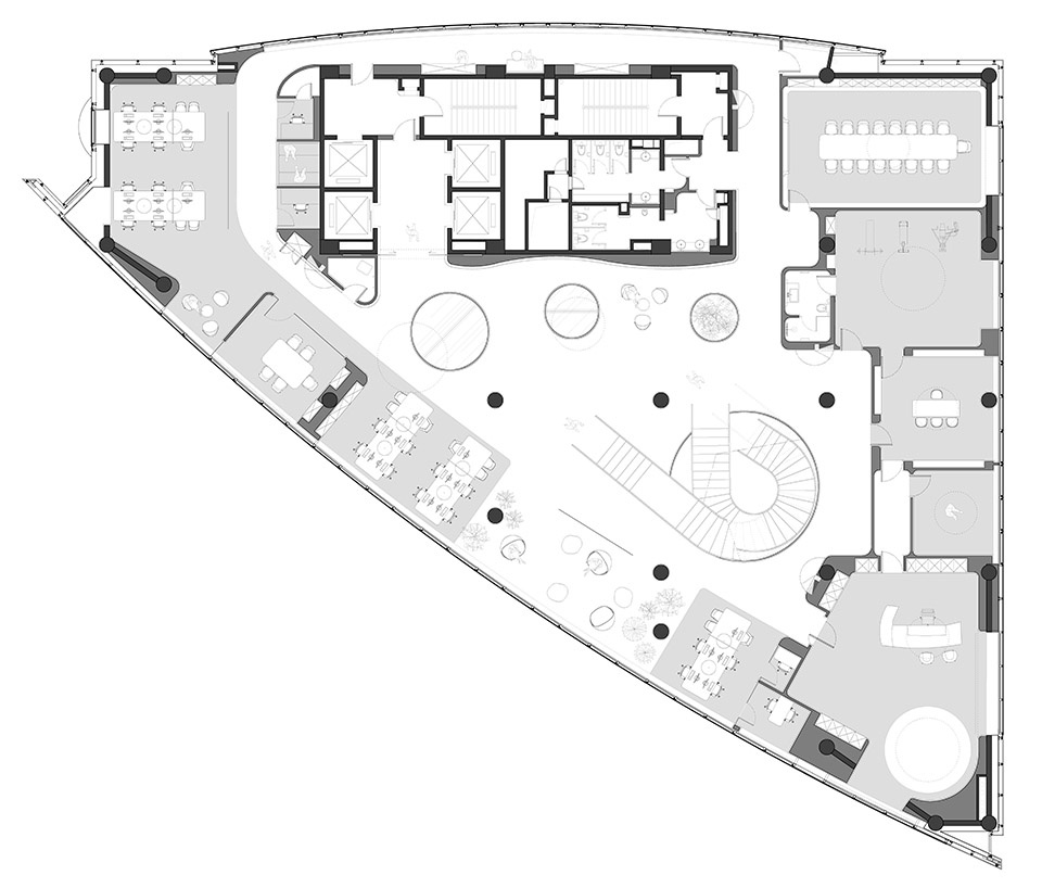
对吴太医药集团而言,关爱不仅是一种企业的价值观,更是其企业理念的基础。除了对质量和市场领导地位的自信,吴太集团还高度重视客户和员工的福祉。长春新总部位于吴太商业中心三层,占地2700平方米,正是这一理念的体现。它提供了一个以人为本、充满活力的工作环境,散发敏锐与关怀的气息,同时也为公司的进一步发展提供了一个鼓舞人心的舞台。
机遇的空间通过形式、材料和空间体验的完美结合,吴太集团的新总部将自己定位为一个充满机遇的空间。以白色为主体的室内装饰为员工活动和互动提供画布,而流畅的建筑线条则创造一个与用户相宜的动态环境。联通各层的敞口结构建立视觉和空间上的通透,促进了开放感、归属感和交流感。无限的空间是思考、发现和保持身心敏捷的一封展开的邀请函。
单纯的材料质感强调了一个不断变化的无限空间的生命有机体的概念。水磨石地面的深度质感为室内环境提供必要的平台,而雕塑般的金属楼梯则成为引人注目的视觉焦点和一条促成偶遇的纵轴。从楼梯上望去,办公室的新视角从不同角度打开,激发探索欲望。柔和而精确的照明加强了有机的流动性,吸音的墙壁则提供舒适的空间音效,营造出一个充满活力而又宁静的工作环境。
集体的空间访客步入公司大门,映入眼帘的是一个三层高的充满雕塑感的空间。楼层间的敞口强调出空间的动感,并令天光泄入。水滴形的前台与墙壁的动态几何形状相得益彰,金属窗帘和隔音织物使空间更有深度和动感。门口的大堂为一楼的布局提供了一个灵活的中心区,促进了互动和适应性。灵活的桌子、阶梯座位、悬挂式摇椅和自助咖啡厅创造出一个活跃的环境,鼓励自发交流,保持创造力和对话的活力。环绕四周的工作区好似邻里,不同的部门既有自己的区域,又始终是整体当中的一部分。
运动的空间运动不仅是企业文化到空间的形式转化,也是一种直接的邀请,就像体育场上的跑道,一条蜿蜒的路径嵌在地板上引导方向,它联系各区,并将传统的走廊变为一个充满活力的互动交流场所。从体育联想开来,它旨在增加员工日常的运动量,鼓励“边走边聊”,让人们不忘吴太的使命,将健康的生活方式融入日常工作与生活。
专注与交流的空间楼上安置有各种功能区,包括首席执行官的办公区、灵活办公区、多功能区和高度现代化的档案室。首席执行官办公室的设计采用柔和的几何图形和沉稳的材料组合,打造出一个强调专注与僻静的去处。除经典的办公室和会议室外,首席执行官办公区还包含一个适于私密谈话的茶室,以及一个适宜独处和专注工作的私人冥想室。
我们将楼层的外缘用来安置灵活办公区和会议室。员工可选择最适合其完成工作任务的环境。茶水间附近的座位和休息室等非正式的会议区鼓励员工自发交流,因为最好的创意往往来自于不期而遇。
历史与未来的空间顶层的设计中包含一个多功能厅,为演讲、展览和活动提供开放的舞台。互动式的品牌展示让访客身临其境地了解公司的历史,展现公司的发展历程。与此相临的是一个博物馆式的大型档案室。公司的历史可靠保存在一个个滚筒柜中。用令人肃然起敬的方式提醒人们铭记公司历史的珍贵与价值,供以研究,并为未来创新提供源泉。
吴太医药集团的新总部不仅是一个办公场所,更是公司价值观的生动化身。流畅的建筑形态、灵活的平面布局以及以健康为本的设计理念,都体现出公司对关爱、创新和卓越的承诺。在这一环境中,员工和创意蓬勃发展,公司也将满怀信心和自豪地向前迈进。
以人为本、充满活力的工作环境
以白色为主体的室内装饰
凸显空间有机的流动性
充满雕塑感的空间
环绕四周的工作区
鼓励“边走边聊”的走廊
适于私密谈话的茶室
十九层平面
二十层平面
二十一层平面
客服
消息
收藏
下载
最近













