查看完整案例

收藏

下载

翻译
Architects:Gogyeol Architects
Area:122m²
Year:2023
Photographs:Kim Gihoe
Lead Architects:Jawon Koo
Construction:Gawon Housing
Structural Engineer:Structure & Design Laboratory
Landscape:Garden Works
Category:Lodging,Renovation
Design Team:Daewan Kim, Dongsub Lee
City:Mungyeong-si
Country:South Korea
From Abandoned Blacksmith Shop to Cultural Stay: Gogyeol – Communities worldwide face regional decline due to industrial restructuring and urban migration. Gaeun-eup in Mungyeong City, South Korea, exemplifies this phenomenon. Once a thriving coal mining town with 20,000 residents in the 1960s-80s, it has transformed into a quiet village of 3,000 following mine closures in the 1990s. Local blacksmith shops, once vital community centers crafting daily tools, remained abandoned for over 20 years.
Architectural Regeneration Through Regional Culture – Gogyeol regenerated one such abandoned blacksmith shop into a boutique guest house, demonstrating how architecture can revitalize declining regions. Located in Gaeun, meaning "adding grace," this project extends beyond spatial renovation to fully embrace local culture through collaboration with over 20 regional artisans, artists, and brands.
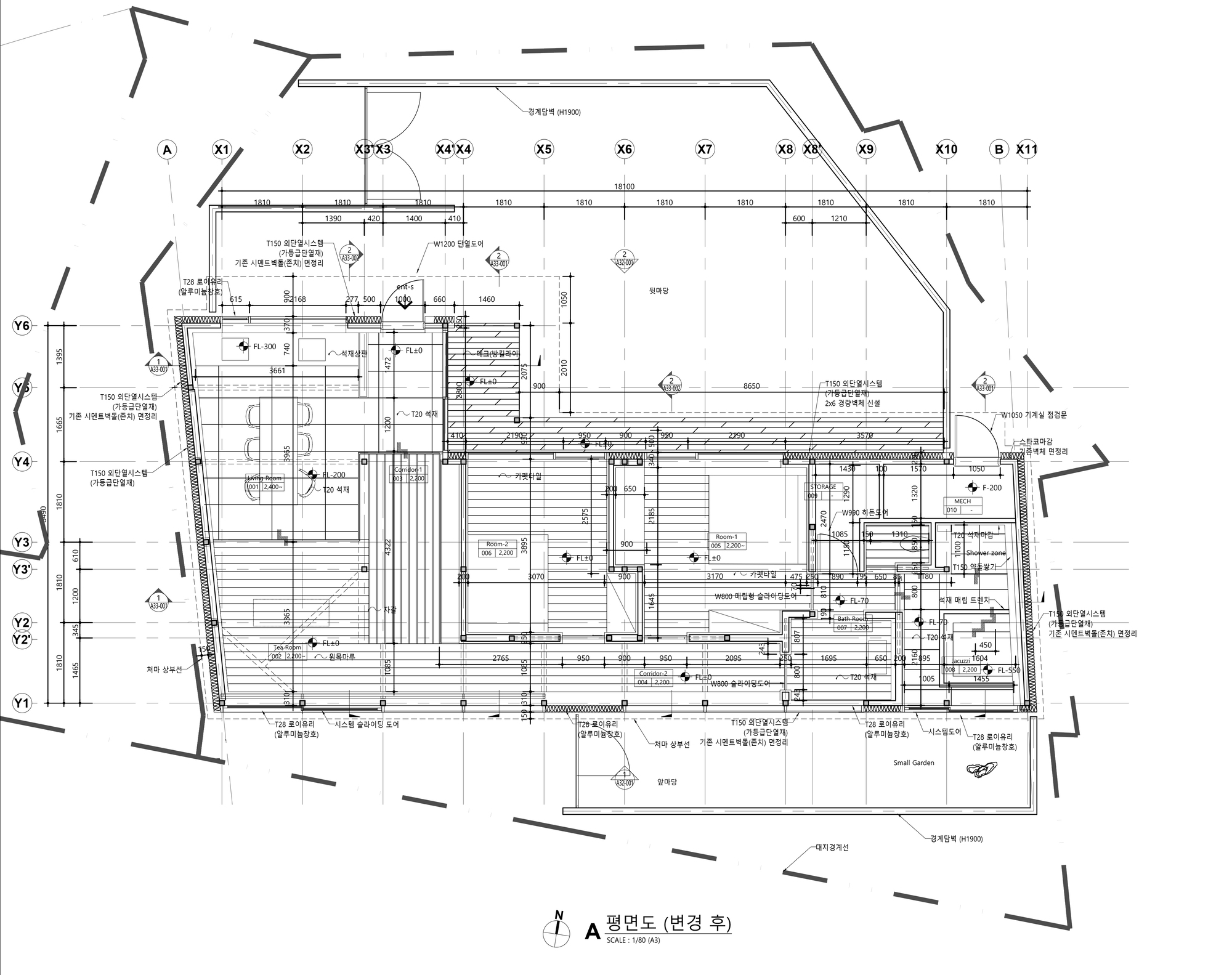
Contemporary Succession of Regional Architectural Language – The project's core was preserving and contemporarily reinterpreting the 1960s blacksmith shop's unique architectural character. The main beams, rafters, and wooden floors that retained their warm spirit beneath dust layers were not merely structural elements but components embodying regional architectural identity. These existing spatial characteristics—scale, light variations, and relationship with nature—were fully preserved while harmonizing with contemporary functions.
Regional Materials as Architectural Language – Traditional 'hanji' (Korean traditional paper) produced locally became a core architectural component rather than mere decoration. From window frames to lighting and furniture, hanji's warm, soft light determined the spatial atmosphere. Local ceramics were integrated throughout, creating an environment infused with regional craftsmanship where guests experience traditional pottery in daily life rather than just viewing it in museums.
Spatial Reinterpretation – The former blacksmith shop's hierarchy of work and living spaces, centered around the communal forge, was reinterpreted for contemporary boutique guest house functions. Common lounges and individual guest rooms applied traditional spatial organization principles to modern uses.
Regional Garden Design – The garden actively utilized field stone walls, commonly seen in rural villages as major design elements. These natural stone walls, reinterpreted as architectural features embodying everyday regional landscape, were combined with native plants and pine trees once used as blacksmith shop rafters, creating an authentic garden rooted in local character.
Local Partnership and Cultural Integration – The project collaborated with National Intangible Cultural Heritage hanji artisans, local ceramic masters, natural dyeing specialists, and regional painters. Their works and products are available for purchase, creating a sustainable ecosystem supporting continuous creative activities rather than simple tourism commercialization. Prior to construction, a three-day pop-up exhibition themed "bidding farewell to the old blacksmith shop and welcoming new birth" attracted over 300 visitors despite COVID-19, confirming community interest and affection.
A New Model for Regional Architecture – Gogyeol presents an architectural solution to global regional decline by discovering unique cultural DNA and reinterpreting it contemporarily. The project demonstrates how neglected regional buildings' structural and spatial beauty can be rediscovered and combined with contemporary functions, creating integrated experiences where cultural and spatial experiences merge. Just as the blacksmith shop once served as the town's vitality source, Gogyeol breathes new life into the village through Mungyeong's regional culture, establishing a methodology for architectural regional regeneration that creates new landscapes while respecting historical memory.
Project gallery
客服
消息
收藏
下载
最近






























